“每一个新项目对于我来说都像一张崭新的白纸,只有这样才有可能消除刻板印象与主观评价。只有这样,你才能创造出新的、纯粹的、华丽的东西。
——Vasilkova Darias
Vasilkova Darias,Art Group工作室创始人;同时还是一名设计师与建筑师。尤为擅长大胆应用色彩,把当代艺术与复古风格融入室内,一系列对比来创造一种欢乐和温暖的氛围。可谓是名副其实的“空间色彩探索者”。本期内容为Vasilkova Darias 2019年完成的两个作品:
A YOUNG ARTIST.ZERO-WASTE CONCEPT
坐标:俄罗斯·莫斯科市
年份:2019 / 面积:79m²
本案是一间年轻女士空间,这家女主人一直在寻找与众不同的空间,设计师根据她的审美偏好中,在色彩方案上以灰色与灰粉色结合作为背景基底,混凝土肌纹融合柔和精致的粉色浪漫,墙面用特殊的防潮成分进行处理,使其免遭受到破坏。
在客厅家具的选择上,依旧选择了由团队原创设计的组合式沙发。沙发由蓬松的绒毛组成,可拆卸的沙发布料是来自用旧的李维斯牛仔裤缝制而成,再以皮带的形式固定外形,展现鲜明的个性。
一扇滑动门连接厨房与客厅,私密而又开放。
厨房里靠窗的一块小地被抬升了20厘米,铺上赤色瓷砖,摆上两椅一桌即可化身为阅读聊天的惬意小空间。
瓷砖马赛克从其他项目瓷片材料留下的碎片拼接而成的,这件瓷砖艺术品是来自团队的创意设计,独特性的外形还被运用到了玄关走廊。
卧室延续了客厅的明快色彩魅力。
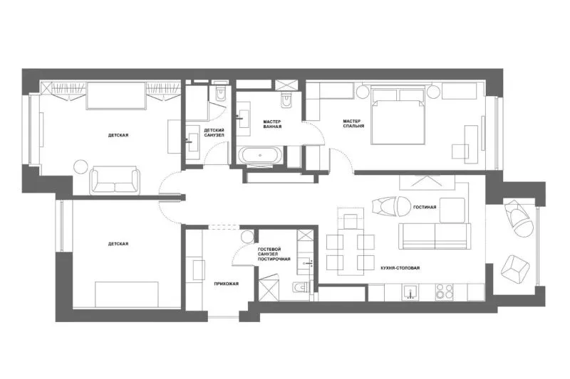
APARTMENT IN RED SIDE
坐标:俄罗斯·莫斯科市
年份:2019 / 面积:117m²
本案的空间是为一个年轻家庭设计的,业主是一个带有孩子的家庭,生活里喜欢到世界各地旅行,把旅行的回忆记录珍藏在相册中,丰富的旅居经验让女主人想拥有一间法式风格的生活空间。
在布局上希望拥有一个客厅,三间卧室,以及三个浴室。
基于业主的愿景,室内采用柔和的色调统领整个空间,明亮的家具简约而神圣,大胆明艳的装饰与艺术元素强调呼应主题基调。
明亮轻松的色彩结合当代设计艺术,冷静理性的氛围诠释一个平静而轻松的法式之居。
主卧室醒目的红绿对比强调活力的氛围,床头柜上的画作均是来自于孩子们的想像。
粉色的儿童书房加入了不少抽象又不失童真的意象元素,增加了想象的空间,蓝绿冷调从中平衡提升层次感。
来自意大利南部带有典型印花的瓷砖在空间设计中发挥了重要的装饰作用,将其运用在不同的空间,尤其是在三间浴室明亮趣致的装饰花纹呈现一种复古的精致感,又不失清新干爽。

