来自KWSD境物建筑事务所
去一家茶饮店里浪费时光吧
与朋友一起畅谈人生理想
越发多样的活力在茶饮店里铺开
瞬间吸引你的元素会是什么呢
将会给你不一样的惊喜答案
▲门店实景图摄影© 郑焰
这家奈雪的茶新店位于上海宝山区
它有一个不同于一般网红茶饮店的主题特色
▲方案概念图 © KWSD境物建筑事务所
一座厚重的“茶山”屹立在店内中心
无论是店内还是店外的游客
都会不自觉地被它的梯田形态所吸引
▲茶饮操作台摄影© 郑焰
▲休息等候区摄影© 郑焰
“茶山”元素甚至延伸到了休息区
它将整个一层店面严实地包裹了起来
就能感受到茶山层叠不绝的唯美意境
▲二层酒屋摄影© 郑焰
与首层白色轻盈的氛围不同
二层将带你进入迷幻的酒屋世界
红色霓虹灯和暖色神秘光带
似乎将《银翼杀手2049》的赛博朋克场景
▲酒屋吧台摄影© 郑焰
你会发现酒屋的玻璃背景墙上
会时不时透露出朦胧的模糊景象
奈雪的茶推出了酒屋“BlaBlaBar”系列
开始了茶饮与酒屋的跨界融合之路
就是其跨界融合的产物之一
设计师希望能通过一套完整的设计策略
和欧包等丰富业态巧妙结合
打造一个集合年轻女性体验、社交
和传达生活方式的品牌新空间
▲首层入口摄影© 郑焰
茶饮空间与酒屋既需要有所连接
又需要各自具有一定的独立性
并且它们大部分的营业时间并不重合
设计师基于时间、空间属性
用设计创造除了适合不同时段的空间体验方式
▲方案效果图© KWSD境物建筑事务所
打造了流动性极强的空间
专为短暂停留的顾客服务
形成以软欧包、茶、冷萃的选品区
提供给能长时间停留的人们
在这舒适的社交空间中谈天说地
通过一二层的动静分区设计
得以分开保持各自不同氛围环境
发现了“茶山”灵感意向
一座“茶山”从一层拔地而起
当山体延伸至二层时的形态
则变成了半透明的玻璃幕墙
都能在这“茶山”中寻到解答
布置着一个两层通高的红色文字装置
它既充当了上下层的视觉联系元素
又能让两层空间保持各自的独立性
店铺位于商场主入口一侧
均有连接户外广场、连廊
和商场内部的多个出入口
▲室内剪刀梯 © KWSD境物建筑事务所
设计师用一个“茶山”剪刀梯
创造了一条循环的完整人流动线
让从不同入口进来的人们
都能体验完整个玩味空间
▲人流动线 © KWSD境物建筑事务所
随后经过茶饮前台购买茶饮
再往前走就到达了休息等候区
人们可以顺着剪刀梯向上
而当你在二层剪刀梯的另一端向下步行时
又会再次回到最初的欧包区
环形人流动线一方面能有效避免
另一方面可连接直通户外的入口和商场内的入口
一层茶饮营业时间为上午10点至晚上10点
二层酒屋的则为下午3点至凌晨3点
为了照顾到茶饮空间与酒屋的不同时段运营
设计师采用了全时段经营模式
店内是以茶饮空间为主的消费模式
有霓虹灯的酒屋逆袭成为主角
从“茶山”的柔和穿越到酒廊的硬朗
从下午茶等待到夜间酒吧
定义了由“茶”到“酒”的场景变化
收获一场因时间而来的邂逅
▲室内剪刀梯 摄影© 郑焰
这家新店不光在策略上标新立异
在设计细节上也有魔鬼般的认真
▲一二层醒目标识 摄影© 郑焰
它们也能牢牢抓住他的注意力
▲休息等候区摄影© 郑焰
它让人在窄小的空间中也不觉压抑
▲地面石材装饰摄影© 郑焰
欧式经典的地面石材装饰
▲酒屋吊灯摄影© 郑焰
▲酒屋吊灯摄影© 郑焰
横穿酒屋的参数化长条吊灯
藏着无数个黑白相映的三角形光源
给酒吧增添了一丝未来色彩
你能体验到从未有过的沉浸式感受
跨界的茶饮与酒屋混搭空间
或许将会成为未来的新商业类型
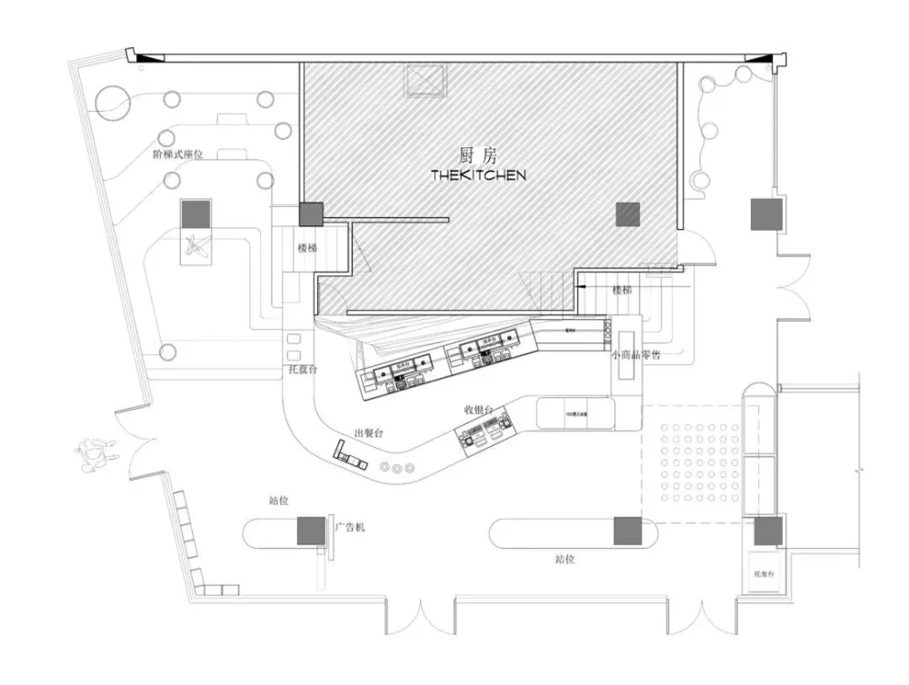
▲首层平面 © KWSD境物建筑事务所
▲二层平面 © KWSD境物建筑事务所
项目设计时间:2019.08-2019.10
项目完工时间:2019.12
设计主案:Eric Tsui(徐晓东)
设计团队:刘雷、施洁莹、廖秋娟、王帅、郭鹤林(实习)
主要材料:人造石,穿孔铝板,不锈钢等

