餐厅紧邻花园 © Simone Bossi
该项目始于三年前,它迷失在城市之中,堪比著名影片《荒岛余生》的反向隐喻。房屋位于巴黎边缘,坐落在拉德芳斯商业区的超高层建筑群脚下,放眼望去,它消失在尽端高楼林立的小巷之中。基地环境严峻,一边是高密度的现代主义乌托邦,另一边是略显浮夸的19世纪建筑群,如同小型的拉德芳斯商业区。使该住宅仿佛没有壳的牡蛎,迷失在城市的海洋之中。幸运的是,它周围有一个异国情调的庭院,设计团队初次到访就决定将这座房子与外界隔离,使房屋后部面向街道,在房屋内只看得到自身的花园和待开发的品质。
▼空间概览 © Simone Bossi
当日常的琐碎变成了自然元素,这是多么美妙的时刻:当灰绿色瓷砖地面变成一汪浅水;当长长的水泥座椅变成沙滩,水在双脚之间流淌;当巨大的橡树桌变成一棵大树,一家人相聚于此;当暗黑的厨房变成在烧毁的森林里找到的木炭;当高耸的书房变成每天攀爬的悬崖、书籍成为垫脚石;当巨型窗帘变成瀑布、变成风;当白色的混凝土曲面连廊变成一朵云,一朵低矮的云,静静地从头顶掠过;当一扇巨大的飘窗变成天空,伴有日落与日出;当木制楼梯从浅水中冒出来,成为通往其他地方的路,直至山顶、云端之上。
▼从门厅望向庭院 © Simone Bossi
▼餐厅紧邻花园 © Simone Bossi
▼弧形的通高空间 © Simone Bossi
▼楼梯一旁的起居空间 © Simone Bossi
▼具有几何元素的楼梯间 © Simone Bossi
▼细部 © Simone Bossi
▼二层平台 © Simone Bossi
▼弧形走廊 © Simone Bossi
然后你看见,那是你的岛屿,拥有一切。然后你可以合上书本,放回书架,在真正的公园漫步。
▼厨房 © Simone Bossi
▼从厨房望向庭院 © Simone Bossi
▼庭园视角 © Simone Bossi
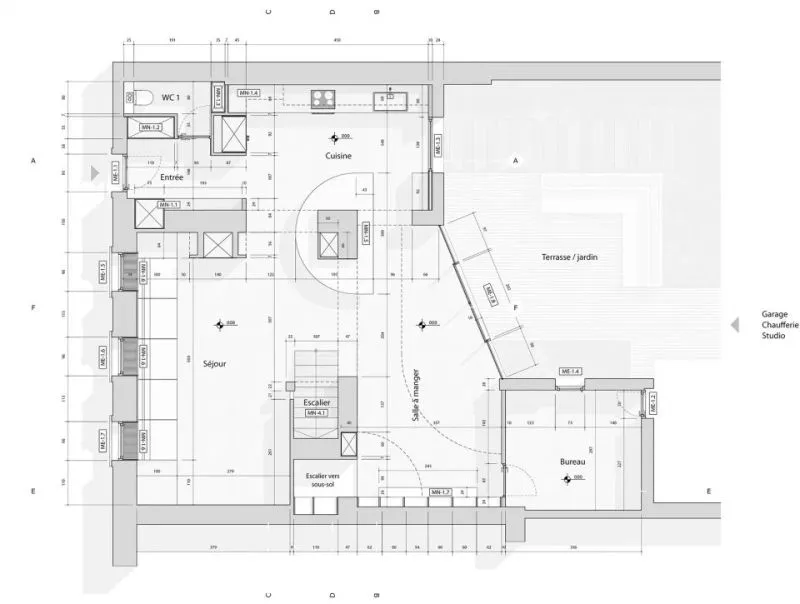
▼一层平面图 © Clément Lesnoff-Rocard Gil Percal Architect
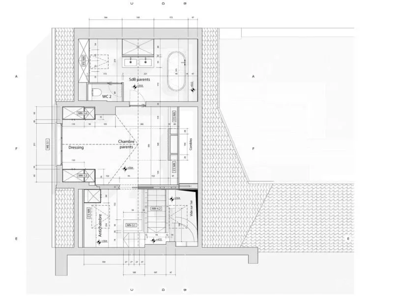
▼二层平面图 © Clément Lesnoff-Rocard Gil Percal Architect
▼三层平面图 © Clément Lesnoff-Rocard Gil Percal Architect
Floor Area : 300 sqm City : La Défense, Courbevoie, Paris Project duration : 2 years Finished in October 2020

