地点:泰国暖武里府 类型:建筑设计 课程:住宅 客户:未公开
用地面积:1,115平方米。
建筑面积:1,545平方米。
设计:2016-7 竣工:2019 建筑成本:4500万泰铢
Stu / D / O团队: Apichart Srirojanapinyo Chanasit Cholasuek Panfan Laksanahut 赢得Rojanastien
照明设计师:对比设计工作室 结构工程师:Ittipon Konjaisue 机械工程师:MEE顾问 顾问:Engineering Plus 承包商:D-Innova
照片:Stu / D / O,Sofography,天空|地面
Casa de Alisa是位于泰国暖武里(Nonthaburi)的两层楼住宅。在材料和结构方面,混凝土是该项目的创立理念。内部空间仅由框架结构的混凝土墙构想并包含内部空间。这些飞机形成了一个建筑,将居住空间与周围环境隔离开来,同时构筑了“选择的”性质并在其中包含了隐私。在内部,这些平面将混凝土,下方的水和花园以及上方的天空粘合在一起,从而增强了节俭的感觉。
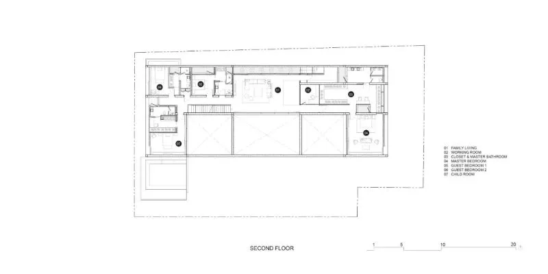
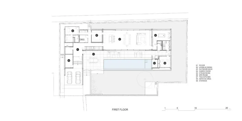
在提供对周围社区的视觉障碍的同时,混凝土浇铸飞机还充当了缓冲区的角色,为与该站点直接相邻的公共道路提供了声障。一楼的半公共居住区分为两个层级,由各种门槛组成,模糊了花园水池生活与内部和外部空间之间的界限,而上层则由居民专用区组成。这些飞机通过表达内部程序和功能,划分了每个居住区,以维护隐私并区分每个有限的空间。相反,37 m。二楼的大跨度悬臂平面不仅充当了住宅的主立面,而且还成为了将每个季度联系在一起的一致的“背景”。
裸露的混凝土的重要性在各个方面都得到了利用:木构架在混凝土上留下了其纹理的印记,这永久性地提醒了施工过程,而光井和天窗则增强了其质地。在现场铸造后,进行了各种模板和纹理实验,以建立住所的基本材料和特征。地面上的混凝土平面垂直于该地点,而第二层的墙壁在相反的轴线处相交。这两个相对平面之间的交点为整个项目提供了主要的结构系统。这种简单的结构组成可以将体系结构减少到绝对的最低限度,同时提供有效的构造和组装时间。


?