Escape From Sofa是在伊斯坦布尔创立于2009年的设计工作室,专注于室内设计和产品设计。
Escape From Sofa是一个年轻而创新的设计团队,由伊斯坦布 尔由室内建筑师KeremErçin和工业设计师Mahmut Kefeli创立。
ManDarin Oriental 02
Escape From Sofa完成了位于土耳其Bodrum的一个酒店项目,这个项目是著名的文华东方酒店。
Hilton Dalaman
Escape From Sofa完成了位于土耳其Dalaman一座舒适别致的希尔顿别墅。
Zekeriyakoy House
这座600平方米的独立别墅位于伊斯坦布尔北部森林中的Zekeriyaköy。在这个项目中,除了设计、实施和检验服务外,Escape From Sofa还为客户购买、生产和交付了房屋的所有配件和要求。
Escape From Sofa规划将客厅、厨房和通向花园的冬季花园部分,与同一楼层中所有家庭成员的互动结合在一起。地板上的单独空间处于相同的温暖气氛中,然后将一楼计划用作儿童和客人的娱乐场所。
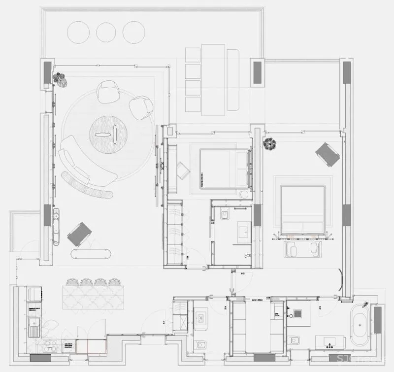
Mandarin Oriental
这个240平方米的公寓位于土耳其博德鲁姆文华东方的高端地区,Escape From Sofa的首要任务是营造一种具有当代美学的时尚氛围。
在整个空间中,Escape From Sofa设计了流畅的外观,在墙壁和天花板上使用了各种木板,然而每个房间都有属于自己的风格。他们采用不同的工匠技术,质地和颜色进行设计,并为每个用户提供定制家具。
Aksa Acrylic
这座绿色环保认证建筑,已在设计团队的Escape Form Sofa监督下完工。他们为公司提供了概念,建筑和室内设计服务。
侧面建筑物的实心和立方体外观与玻璃入口大厅形成了平衡的对比。
主入口和接待区位于中层玻璃结构中,这是包括电梯和钢制楼梯的主要入口。玻璃结构允许两面立面都采光,并营造出宽敞,透明的氛围。

