 
 
Artem Babayants是一家位于莫斯科的设计工作室,旨在改善现代生活的形式。努力创造一个现代人的生活环境,满足建筑和设计领域的所有现代潮流,个性化关注客户的舒适性,合理性,质量和愿望。创始人Artem Babayants毕业于别尔哥罗德理工大学,专攻建筑。
 
 
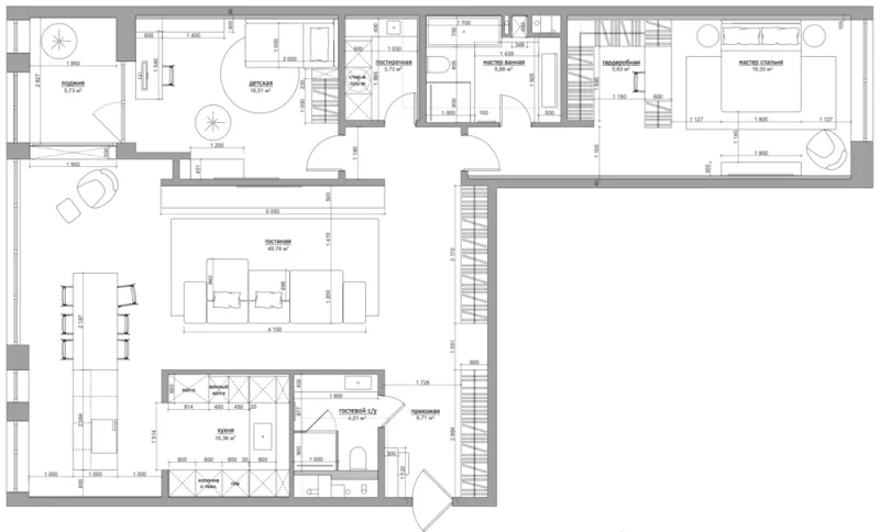
这是Artem Babayants设计位于俄罗斯莫斯科135平方的家庭公寓项目。其中感受绚烂高雅的空间气质,仅以简单而不失质感的空间设计,就给人带来一种宁静高贵的视觉感受。客厅整个空间不多矫饰,以现代主义的高度理性,减少陈设的构成元素,色彩的冷静气质,于现代极简主义中流露出写意之美,简雅而素淡。客厅搭配精致的家具、利落的线条,开阔的空间为整个设计带来极致舒适的感觉,除了要满足正常的生活需求外,也要将对艺术的审美得到展现。
 
 
 
 
 
 
 
 
 
 
 
 
 
 
 
 
 
 
 
 
 
 
 
 
 
 
 
 
 
 
 
 
 
 
 
 
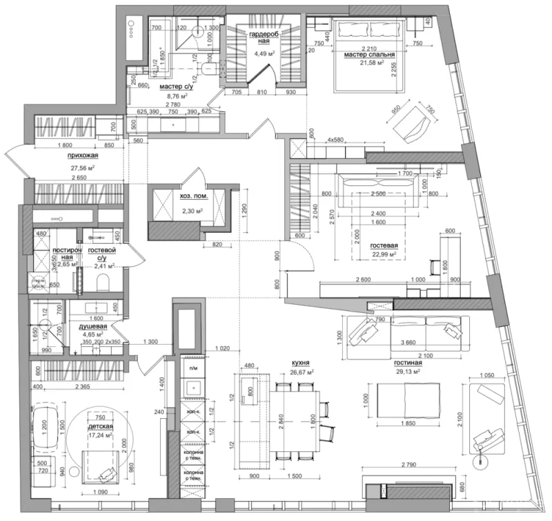
这是Artem Babayants设计位于俄罗斯莫斯科170平方的家庭公寓项目。设计师用简约却不简单的细节,打造了一个呈现灵性的住宅空间。室内有条不紊的纹理细节得到完美的呈现,结合内饰的点缀,整体有了趋向完美的比例感,材质赋予了整个空间高级质感的体现。客厅搭配精致的家具、利落的线条,开阔的空间为整个设计带来极致舒适的感觉,除了要满足正常的生活需求外,也要将对艺术的审美得到展现。
 
 
 
 
 
 
 
 
 
 
 
 
 
 
 
 
 
 
 
 
 
 
 
 
 
 
 
 
 
 
 
 
 
 
 
 
 
 
 
 
 
 
 
 
 
 
 
 
 
 
 
 
 
 
 
 
 
 
 
 
 
 
 
 
 
 
 
 


