Studiofour是一家位于澳大利亚墨尔本的设计公司。凭借超过30年的行业经验与卓越的设计实力,该公司在澳洲乃至全世界享有较好的声誉。安娜贝拉曾在Metier3担任设计总监,后来又在Carr design担任总监,这段经历帮助她形成了开办一个融合了艺术、建筑、景观和室内设计的工作室的愿望。这种设计的愿景被视为一个整体的解决方案,而不是一个分区,是studiofour哲学的核心。
Studiofour is a design company located in Melbourne, Australia. With more than 30 years of industry experience and excellent design capability, the company in Australia and around the world enjoy a good reputation. Annabelle worked as design director at Metier3, then in Carr design as district governor, the experience to help her create a fusion of art, architecture, landscape and interior design studio. This design vision is seen as a whole solution, rather than a partition, is the core of studiofour philosophy.
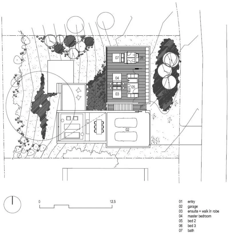
Ridge Road Residence
一个简单的设计要求,与一个有意思的特点是一个陡峭的斜坡和一个茶树,使设计成为一个探索封闭家庭生活的基本仪式在克制建筑形式…建筑的形式变成由客户驱动的愿望独立住宅的公共和私人区域。
周围的房屋形成鲜明对比,试图抵消倾斜地形通过创建一个平台层的室外区域坐暴露高地面水平,我们设计这个房子采用温和的策略,以建筑形式洒下斜坡终止在一系列的甲板。
这些低洼甲板旨在提供隐私从下面的高尔夫球场,同时周围的原生景观将庇护的室外区域严酷的盛行风。
A simple brief and programming requirements, teamed with a dramatic site characterised by a steep slope and a single tea tree, enabled the design to become an exploration into enclosing the basic rituals of domestic life within restrained building forms…the form of the building becomes driven by the clients desire to separate the public and private zones of the residence.
In stark contrast to the surrounding houses, which attempt to cancel out the sloping topography by creating a podium level at which the outdoor areas sit exposed high above ground level, our design for this house adopts a gentler strategy, with the building form spilling down the slope to terminate in a series of terraced decks.
These low lying decks aim to provide privacy from the golf course below, whilst the surrounding native landscape will shelter the outdoor areas from the harsh pvailing winds.
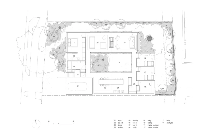
ruxton rise residence
Ruxton Rise Residence不关注外在表现,而是着重于内心,含蓄的和可持续的。短暂的是创造一个家的地方表示在一系列的亲密关系与周围的景观。
设计呈现是一个简单,隐私,温暖,干净的空气和充足的自然光线。公共和私人区创建提供缓慢的背景下,简单的生活。
Ruxton Rise Residence isn’t over-scaled or ostentatious, but instead focuses on the private, unptentious and sustainable. The brief was to create a home where the sense of place is expssed in a series of intimate relationships with the surrounding landscape.
The result is an uncomplicated design that embraces privacy, warmth, clean air and an abundance of natural light. Public and private zones are created to provide a backdrop for slow, simple living.
alfred street residence
这个维多利亚阶地的现有布局是由一系列区域化的空间,有空间托管功能。
两个新的庭院的插入整个房子,两个详细的削减和物质性,结果是一系列的家庭生活背景和对象。
两个inter-dispersed定义的内部和外部空间景观,和它所提供的运动和阴影。
The existing layout of this Victorian Terrace was comprised of a series of compartmentalised spaces, with some spaces hosting a number of functions,
With the insertion of two new courtyards throughout the house, and the paring back of both detailing and materiality, the outcome is a series of backdrops for domestic life and objects. Both interior and exterior spaces are defined by the inter-dispersed landscape, and the movement and shadows it prov
质朴自然的实用主义 | Rachcoff Vella新作
线条赋予空间的美感 | Ann Kaznoha新作
低奢大平层 | 唐忠汉


😊