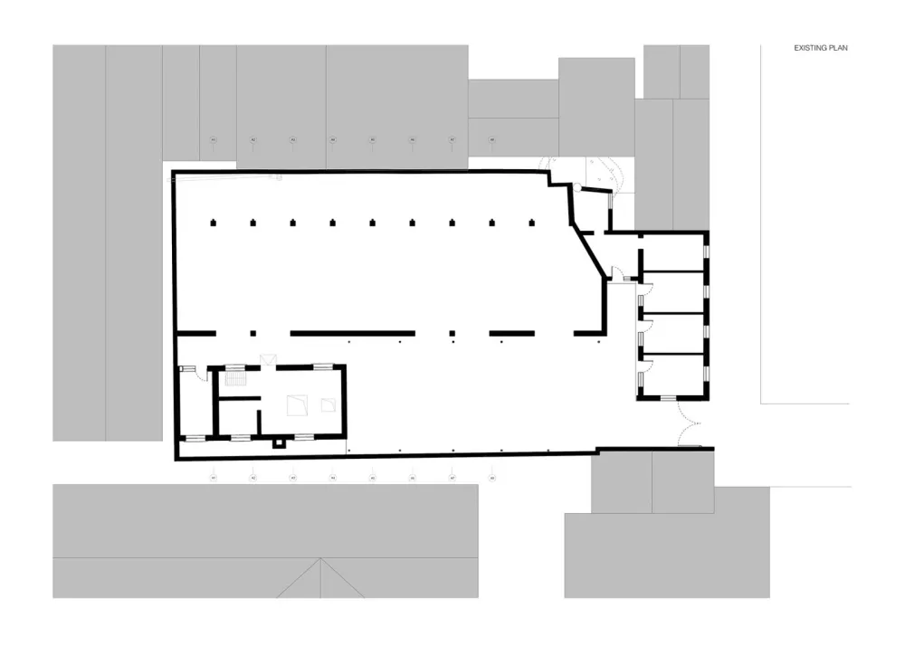
项目场地隐匿在北京西城区宣武门历史街区内一条安静的胡同里。场地东南边紧靠小学,西侧则是著名的宣武门天主教堂,场地区位因此非常敏感。这里曾经是一处为片区内胡同居民供煤的工厂,被弃用后一直闲置至今。
The project is located in the historic neighborhood of Xuanwumen, Beijing. Hidden in a small quiet alley and flanked by a primary school on the Southeast side and an important Roman Catholic Church on the West side, the plot was formerly occupied by a coal factory that was decommissioned ten years ago and left abandoned ever since.
▼庭院,the yard ©夏至
几十年的煤灰在场地内的三栋建筑上沉积了一层厚厚的黑色粉尘。光束透过残缺顶棚的缝隙,凸显出场地内各种材料尘封的质感。场地内的这三栋体现出不同时代特征的建筑。其中一栋是北侧紧临胡同的传统坡顶灰砖房,它是胡同肌理的残存。另一栋是紧靠西侧界墙横贯场地南北的开敞煤仓,青砖柱列和木桁架突出了它的秩序和纵深感,像是一处凋敝的大教堂。场地东南角还有一栋带地下室的一层红砖平房。
Underneath a thick coat of black dust inherited from the years of the ash-spitting furnaces, ptty much the totality of the plot area was covered, leaving just narrow gaps between the metallic roofs to cast a blade of light to the interiors. After freeing up the central yard from a metallic roof structure, three buildings with very different typologies stood around it: on the North side a traditional pitched-roof grey-brick house guarded the entrance, as the last remain of the original hutong fabric; in the West, a warehouse shed with a long sequence of wooden trusses transformed the deep space into a crumbling basilica filled with coal; finally, at the Southern end, a red brick boxy building hid in its deep basement the noisy industrial production.
▼改造前后对比,before and after renovation ©夏至
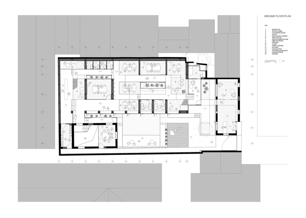
我们的客户希望将这800平方米的场地改造成一处出租给年轻团队的灵活办公场所,能为他们提供从办公隔间到开放工作、会议室、餐厨和活动场地等一系列不同的功能空间。
在北京严格的旧城改造控制条件下,三栋建筑的体型无法做出重大的改变。因此,设计策略强调保留建筑原有的砖结构体量,并对其内部进行重新定义。
Due to the strict pservation guidelines of Beijing historical city center, the renovation had to maintain intact the volumetry of the courtyard so our intervention focuses on a new interface with the garden and redefines the interior spaces, pserving all the columns perimetral brick walls and reconstructing the industrial pitched roof without trusses, in order to maximize the headroom.
▼原有的砖结构体量得到保留,the perimeter brick walls were pserved ©夏至
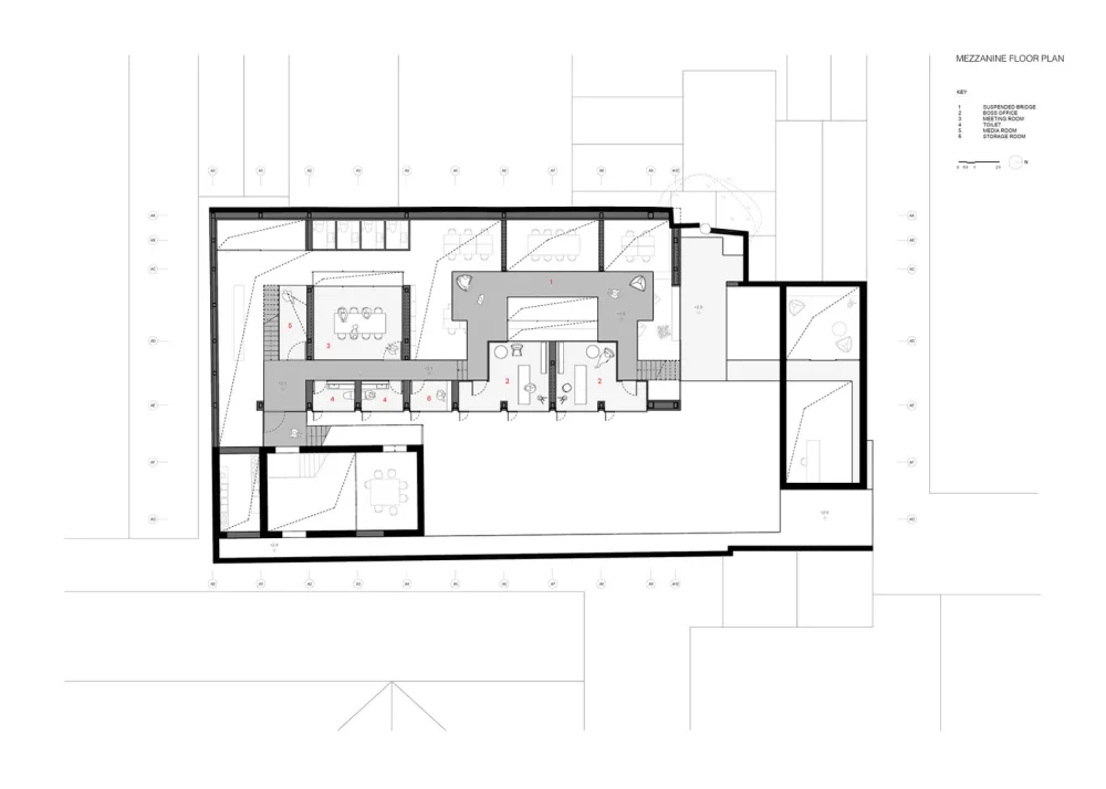
为满足项目的需求,我们把一系列“功能盒”植入曾经的煤仓中。并根据它们的使用功能,隐私程度,以及原柱网形成的空间节奏来调整它们的尺度和位置。它们在原有的仓棚围合中形成一组功能完备的口袋办公室,中型讨论室和大会型议室。“功能盒”之外的剩余区域,即“负空间”,是未被完全定义的灵活工作区域,可用于举办各种活动。由此,原先空旷而均质的空间中产生了体验丰富,层次错落的空间序列。序列中压缩的夹层与释放到三层的通高空间有序地叠替,为使用者营造出一种呼吸般的空间节奏。
确定了这个新的空间序列后,煤仓屋顶在不同的位置被打开以形成采光井庭院 ,让充足的光线可以扩散到不同的办公区域中。同理,我们将东立面的采光最大化,把它处理成一系列的带有落地窗的盒子,让光线能深入主层和夹层空间。玻璃采光井庭院不仅为室内提供了必要的采光,也让间隙中的自然成为漫步空间时的驻足之处。采光井在屋顶的开口将周围场地的标志物框入成景,或是呈现出蓝天映衬着的浓荫老槐树,或是聚焦在阳光点亮的教堂十字架。玻璃中庭通过一系列镜面反射将空间的感知尺度放大,同时也营造出空间之间微妙的界限。
▼玻璃采光井庭院,the new glazed atrium ©夏至
最后,一条由深色钢板构成的连续纽带将三栋建筑整合在一起。它通过折叠拉伸形成接待入口、灰空间廊道、悬挑的夹层和通向屋顶露台的楼梯。这条钢带连接了三座建筑,它不仅暗示出使用者的日常动线,也体现出这里曾经的工业印记。
Finally, a continuous dark steel ribbon meanders across the whole project to navigate through and connect across the three buildings, taking multiple configurations: a reception entrance, a covered hallway, a mezzanine suspended in the central space or a staircase leading to the rooftop terrace. This band of steel is the physical materialization of the new circulation as well as a memory of the industrial past of the buildings.
▼伸向屋顶平台的楼梯,the stair to the roof terrace ©夏至
▼狭长的竹院,interior bamboo garden ©夏至
项目: 煤院新生
年份: 2019
地点: 中国,北京
状态: 建成
类型: 改造
功能: 办公空间
规模: 建筑 680 平米,景观 250 平米
业主: 私人
照明设计:开合工作室
结构顾问:纪立新
家具赞助:本土营造,Hay
照片版权:夏至


来学习了