家不只是倦鸟归来的巢,还是安放灵魂、洗涤尘世的纷扰的精神居所。运用简洁质朴的设计语言,营造了温暖舒适并且充满诗意的家居空间。MART Architects
对品质与创新的追求,始终保持创新的技术与美学融合。
PROJECT TEAM
MART Architects自2014年以来,一直在开发建筑,室内设计的项目,团队由最优秀的专家组成,他们专业地致力于人体工程学,美学和物体质量的创造。
MART Architects新作,面积50㎡的小公寓,以该空间展示了包豪斯风格,不仅是精心挑选的视觉解决方案,而且还兼具舒适性,舒适性和最大功能性。
按照人体工程学形成空间,并为舒适的生活创造了条件。
客厅通过滑动隔板与走廊隔开,
当隔断关闭时,该空间将变成私人空间并完全隔离,当打开时,它可能会成为客厅的一部分。
入口区域与公共区域完全隔离,
这会产生从公寓中心的角度将门遮蔽的效果。
从外观上看,浴室分为卫生间和淋浴室。墙壁上采用意大利花岗岩,
该空间采用严格的色彩设计,并与黑色的金属型材完美结合。
白色的墙壁在卧室中营造出宁静与和谐,
黑色图形玻璃隔板的使用增加了几何形状和样式。
床头板后面的纺织面板具有两个功能:
相邻公寓的隔音功能和良好的设计元素。
70㎡的小公寓,天然材料的装饰纹理的使用,丰富的重音轴和功能区域的组合使简单的几何形状,纯净的色调和对比鲜明的调色板成为一种对话。
功能区的相对位置取决于无效空间的最小化及其使用的人体工程学。
公共区域是带大窗户的明亮客厅-通往书房的通道和舒适的厨房餐厅。
光线的几何形状和纹理的接缝,材料的接缝会使表面饱和,使表面变得复杂。
从走廊到公寓公用部分的过渡的中心元素包括厨房和迎宾区的功能,
它无需使用墙壁即可实现,这是对内置家具的新诠释。
阳台已变成一个宽敞明亮的办公室,并设有一个额外的休息区和一个僻静的工作区。
客用卫生间由于镜子而虚幻地扩大了,并且由于瓷砖的木质纹理而非常舒适。
这些感觉与淡淡的色调和天然的榆木台面相得益彰。
洗手间结合了混凝土和木质纹理。与其他场所相比,这里的墙壁塑料很安静。故意从材料中产生触觉和对比效果。
卧室采用丰富的色彩设计,与白色形成对比,并使用织物,镜子,门和橱柜的整合方法,从而使空间“更清洁”。
儿童房的设计考虑了蒙特梭利技术,
早期的人类发展方法已整合到处理儿童房空间,内部,纹理和创意区域的技术中。
after ICE: warm interior
这个空间很舒适,面积135㎡,充满了淡淡的几何装饰,古董砖错综复杂的质感,以及天然木材和黄铜的许多元素的温暖。
公共区域是一个宽敞的客厅,
厨房则不是标准意义上的经典厨房。
同时,客厅区域通过滑动的半透明隔断系统与办公室图书馆相结合,从而最大化了公寓
入口区域与公共区域隔离开来,在门口就以有趣的视觉技术,塑料墙和别致的饰面材料。这样就产生了从公寓中心的角度对门进行遮光的效果。
浴室中的天然石材色调与木质纹理和谐地结合在一起,而铜板具有浅铜绿和高贵的金属光泽,使灯在明亮的表面上产生温暖氛围,考虑了浴室的所有功能细节。
在主卧室,白色的墙壁营造出宁静与和谐,
黑色图形玻璃隔板的使用增加了几何形状。
私人空间被更衣室区域划分,该区域通过半透明结构发展成卧室,并发展成为公寓所有者的主浴室。
主浴室在视觉上分为洗手间和相当宽敞的淋浴间,该空间采用白色大理石的严峻色调设计,与木质装饰物完美地结合在一起。
儿童房的设计注重运动和创造力,梦想和旅行记忆,并具有发展和改造空间的巨大潜力。
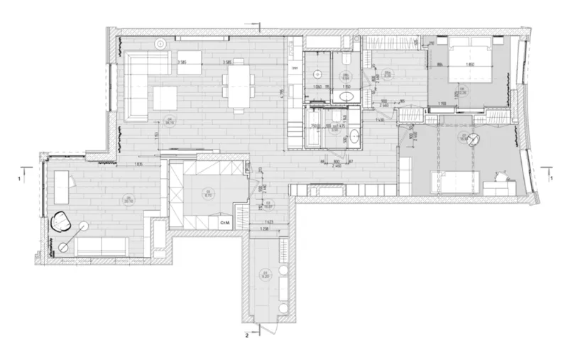
SPB: russian house
MART Architects设计的120㎡家庭住宅,空间的风格和形成方式与圣彼得堡必不可少的天然木材和黄铜的暖色调紧密地交织在一起。
宽敞的起居室由开放式厨房区域形成,不仅相对于起居室都具有严格的对称性,而且还作为从餐厅到私人区域的围墙,强调了庄重起居室的几何形状。
入口区域与公共区域隔离,以有趣的视觉技巧展开,同时在不同区域保持物体的总体风格,但在功能上将公共空间和私人空间分隔开。
它符合人体工程学,将空间分为公共区域和私人区域,为组织舒适的生活,娱乐和接待客人创造了所有条件。
镜面插入物,宽阔的门入口以及轻巧的装饰,使室内装饰无论从哪个角度都变得有趣。
饭厅位于单独的房间中,但是由于宽阔的门具有将空间完全连接的潜力,因此饭厅不是封
闭的,而是向公共区域开放。
在主卧室,温暖的墙壁色调和经典的面料营造出宁静与和谐。
浴室中的天然石材色调与雪白元素和谐地结合在一起,而高贵的大理石产品镶嵌物强调了这种成分,从而在其质地上收集了温暖的灯光反射。
儿童房的设计注重创造力,梦想和对知识的渴望,并具有发展和改造空间的巨大潜力。

