项目名称 | 三亚保利浅海时光里
项目地点 | 海南省三亚市崖城区崖州湾
建成时间 | 2020年
业主单位 | 保利(海南)旅游发展有限公司
设计单位 | 联创设计集团
建筑团队 | 上海联创建筑设计二院
景观设计 | GVL怡境国际设计集团
室内设计 | 广州燕语堂装饰设计有限公司
幕墙设计 | 广东金圣装饰工程有限公司
灯光设计 | 海南银河之光照明工程有限公司
施工图纸 | 广东省建筑设计研究院
建筑中往往包含一种神话般的、精神性的(mythological and spiritual)品质。
在这个中国大陆最南端,面对广袤南中国海,有着最美夕阳的场地里,设计师捕捉自然中最重要的元素:大海、天空、夕阳,加入三角形和圆形两个强有力的人工元素。
简洁有力的三角形,犹如矗立海天之间永恒的纪念碑,刺向天空的形态带着强烈的精神性。
而旋转的装置,可追随四季落日的位置,生动地诠释了此时、此刻、此生,“刹那即永恒”的含意。
01 项目背景 Project Background
崖州湾,悬于琼岛南之一隅。虽不如亚龙湾、三亚湾以及海棠湾的名气大。
项目以其民俗风情与地域特色,区别于其他三亚海滨项目,打造 “崖州志传,浪漫天涯”文化品牌。
崖州湾海滩有着浅海夕阳、天空之镜、粉红浪漫的自然意境。
结合人文因素和卓越的自然景观资源,设计将浪漫婚恋融合到整个展示场景之中,通过“初遇”、“热恋”、“誓言”等主题将空间串联起来,形成“蒂夕思礼堂”、“南国之恋”、“青梅驿”、“花间集”等一系列动人场景。 而“蒂夕思“追光礼堂无疑是这一系列空间的中心,统领全局的灵魂空间。
02 追光礼堂空间设计 Auditorium Space Design
三角形尖锐的形象打破了圆形的圆满、柔和。
偏离圆心的一条直线将圆形一分为二,形成两个高度不一的水池。分割处形成一道水幕。
由两道高墙和庭院里的坡道界定了内外两条游走路线。
沿两侧弧形坡道向上游走,通过水院的缺口看向天空和大海。
礼堂的设计运用了古典的轴线布局,以强调仪式感。
▲通过重楼的拱顶看礼堂
礼堂的窗框设计成了一个T字形,弧墙和二层挑出的楼板也形成了一个抽象的T字形。
03 追逐夕阳之光 Chasing The Sunset
在最开始的设计中,经过计算,礼堂正对每年2月14日情人节的日落方向,也就是说每年只有这天的落日能与礼堂的缝隙重合,寓意唯一。
然而,每一时刻均不同于其他时刻,每一时刻都弥足珍贵,每一天对每一个人都是特殊的。
于是,最终设计加入了旋转舞台的方法,将礼堂改进为可根据太阳的方位旋转。
从平台到礼堂的连桥也设计成可伸缩、移动的模式。在举行婚礼的时候,连桥缓缓伸出,象征着幸福的道路从神圣之所缓缓铺设而来。
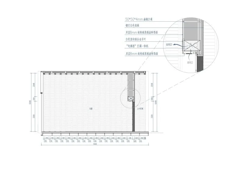
▲蒂夕思礼堂空调结构大样
▲追光礼堂伸缩桥结构大样
04 结语Epilogue
精心布置的古典轴线序列,拾阶而上的狭窄通道,潺潺的水幕,静谧的水池,高耸的钟楼,神秘的所指,炫目的光影和广阔的大海,微湿的海风,灿烂的夕阳,漫天的晚霞一起,是设计师对人们最真挚的祝福。
联创设计是一家全方位、多元化、国际化的设计集团,拥有建筑工程甲级资质、城乡规划甲级资质、风景园林乙级资质。集团总部位于上海,并在北京、南京、成都、青岛、重庆、沈阳、武汉、宁波、郑州、西安、深圳、新疆、南昌和三亚等地设立23家分子公司,专业设计团队近4000人组成,其中包括国内外知名设计公司的建筑师、工程师、规划师、园林建筑师、室内设计师、建筑施工管理专家等。联创设计追求独特的创意与风格,并以博取众长,专业专注的设计态度为客户寻求最圆满的解决方案。集团以“发现客户需求、用设计创造价值”为宗旨,引用国内外前沿设计理念与先进建筑技术,重塑城市建筑的理想与高度。通过“大设计”发展战略,提供规划、建筑、室内、景观、家具设计以及产品的系统化解决方案。在商业板块、PC板块、长租房公寓领域不断探索;在传统业务领域深入发展分公司业务,积极支持本土市场开拓,实现不断突破。联创设计始终以创新为发展动力,前瞻性的设计理念打造多样优质项目,致力为建筑行业领域创造更多有价值的作品。


点点赞赏,手留余香