© Fernando Guerra | FG + SG
 
 
这一作品反映出使现存设施适应保时捷品牌新的企业形象标准的需求。里斯本保时捷中心位于 Olivais 的 Entreposto 大厦,是里斯本一座地标性建筑。
© Fernando Guerra | FG + SG
 
 
© Fernando Guerra | FG + SG
 
 
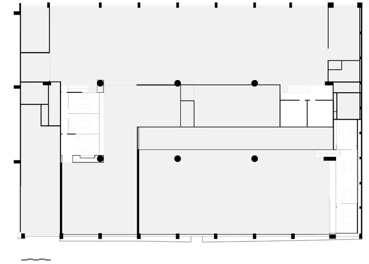
另一个重要的设计前提就是对两个区域的提升:销售和展览区;以及售后,车间和服务区。为了达到这一目标,必须将使用空间水平向扩展到另一个立面,同时通过设置夹层,充分利用现有的空间高度。
© Fernando Guerra | FG + SG
 
 
这样,现有建筑被分成三个主要区域:位于主要立面的展览和销售区;位于背后的车间;和车辆接收停放区将前面两个区域连接起来。
© Fernando Guerra | FG + SG
 
 
© Fernando Guerra | FG + SG
 
 
展览位于主要区域,可以有更多永久性展示的车辆,也能对服务区加以调整供新加入的人力资源使用。保时捷中心减少了玻璃立面的使用,以此来增加有目的的室内照明,对展览车更加强调,就好像一座博物馆。
 
 
 
 
夹层出现在后面,几乎通过轻盈的金属构件悬浮,使其有了几分优雅,同时也能容纳销售办公室,等候区和会议室。
© Fernando Guerra | FG + SG
 
 
© Fernando Guerra | FG + SG
 
 
室内停车区对这种建筑至关重要,将车辆流线直接引导到展厅供人们观赏,也方便车间加工。同时也在这里设置夹层,安排了几间办公室用来支持售后区域。这些上层部分使用玻璃表面,增强了各个方向的可见性。
© Fernando Guerra | FG + SG
 
 
为车间服务设置的空间,既占据了空间,也拥有自然光和通风条件,通过使用整个背后立面的长度,使其成为更舒适的工作空间,也减少电力的消耗带来的花费。再一次出现的夹层布置了用于维修服务的附加空间。
© Fernando Guerra | FG + SG
 
 
© Fernando Guerra | FG + SG
 
 
除了保时捷独有的材料和展品,你也可以在这个项目里找到与 OW 建筑事务所相关的特征,细微的设计十分优雅,在实现功能的同时也达到了品牌的要求。
© Fernando Guerra | FG + SG
 
 
在 Entreposto 大厦立面上用于品牌标志的位置,放置了一个金属包裹的字母标志,与保时捷的设计思想保持统一。
© Fernando Guerra | FG + SG
 
 
 
 
建筑师 OW arquitectos
地址 葡萄牙,里斯本
主持建筑师 Patrícia Esteves Vicente
设计团队 Sofia Gonçalves Cabrita, Susana Cruse Maio, Sónia Carvalho Cabaça, Ana Cartaxo Silva
建筑面积 2322.48 m2
项目年份 2016
Category 零售建筑
厂家 加载中……



?