三层居住空间 © Akinobu Kawabe
该项目所在的场地位于东京目黑区的火车站附近,东侧设有高架铁路,西侧坐落着一栋相邻的建筑。场地北侧的道路对面是一片森林,仅从车站附近可以看到。森林的另一端是涉谷区,再往前是新宿。
▼建筑外观 © Akinobu Kawabe
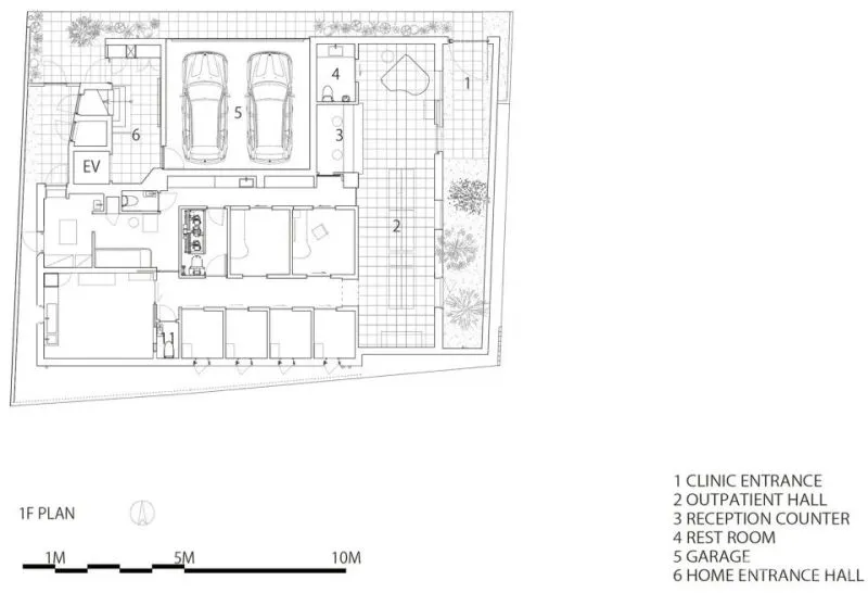
这栋双户住宅的底层是一间诊所,两户家庭分别位于上方的两个楼层――设计团队希望为此设计三种不同风格的庭院空间。
▼一层平面图 © IKAWAYA Architects
在进入一层诊所的大门后,来访者将首先置身于一个以板石铺设、种有落叶乔木的庭院。树冠将周围的环境巧妙地遮挡起来,让人在抬头时只能看见晴朗的天空。这座庭院为客人营造了一种轻松的氛围,使其免于在就诊前感到压力。
▼首层诊所庭院 © Akinobu Kawabe
▼入口 © Akinobu Kawabe
▼诊所等待区 © Akinobu Kawabe
二层的居住空间是为业主的祖母而准备的。为了阻隔火车的噪音和来自附近建筑的视线,住宅空间朝向被6米高墙围绕的南侧庭院。这些墙体的外侧以油漆或木板装饰,可以起到反射和分散噪音的作用,从而实现一定程度上的静谧性。
▼二层庭院 © Akinobu Kawabe
▼二层起居室 © Akinobu Kawabe
▼从室内望向庭院 © Akinobu Kawabe
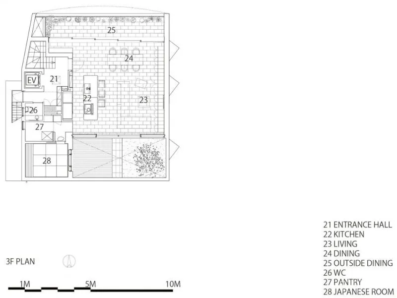
三层的居住空间供年轻的家庭使用。考虑到场地北面是一片森林,且能够眺望到远处涩谷和新宿的景象,立面上设置了一面宽阔的窗户和面向森林的露台。同时,为了阻隔噪音和来自周围的视线,露台采用了隔墙和纵深的屋檐,形成一个围合的空间。相反,如果采用向外加长屋檐和修筑新墙的做法,会对附近的森林造成阻碍和影响。
▼三层居住空间 © Akinobu Kawabe
为了让阳光能够直接照进森林,设计团队将屋顶打造成了一个拱形的空间,使住宅内部呈现出一种类似于洞穴的氛围――它将居住者包围起来,给人以安全的感觉。从技术角度来看,圆角造型扩大了朝向天空的视野,进一步降低了建筑给前方道路带来的压迫感。
▼拱形的空间使住宅内部呈现出一种类似于洞穴的氛围 © Akinobu Kawabe
▼三层客厅、厨房和餐厅 © Akinobu Kawabe
▼露台细部 © Akinobu Kawabe
▼和室 © Akinobu Kawabe
▼住宅夜景 © Akinobu Kawabe
▼场地阴影分析 © IKAWAYA Architects
▼二层平面图 © IKAWAYA Architects
▼三层平面图 © IKAWAYA Architects
Name : Sky Cave location : Tokyo , Japan program : house – clinic architect : IKAWAYA Architects project team : Atsushi Ikawa , Jin Kitazawa , Yuki Imada structural engineer : yAt Structural Design Office mechanical engineers : Zo Consulting Engineers garden design -construction : SOLSO construction : EIKO CONSTRUCTION site area:310sqm floor area: 452sqm completion: May2020 photography: Akinobu Kawabe

