Casper Mueller Kneer建筑事务所为伦敦梅菲尔的Self Portrait设计了第一家独立商店,这是该时尚品牌首次在当地单独开业。这一概念也为未来的商店设定了设计方向。
Casper Mueller Kneer Architects have designed the first standalone store for Self Portrait in London’s Mayfair, giving the fashion brand it’s first on-ground solo presence. The concept also sets the design direction for further stores to come.
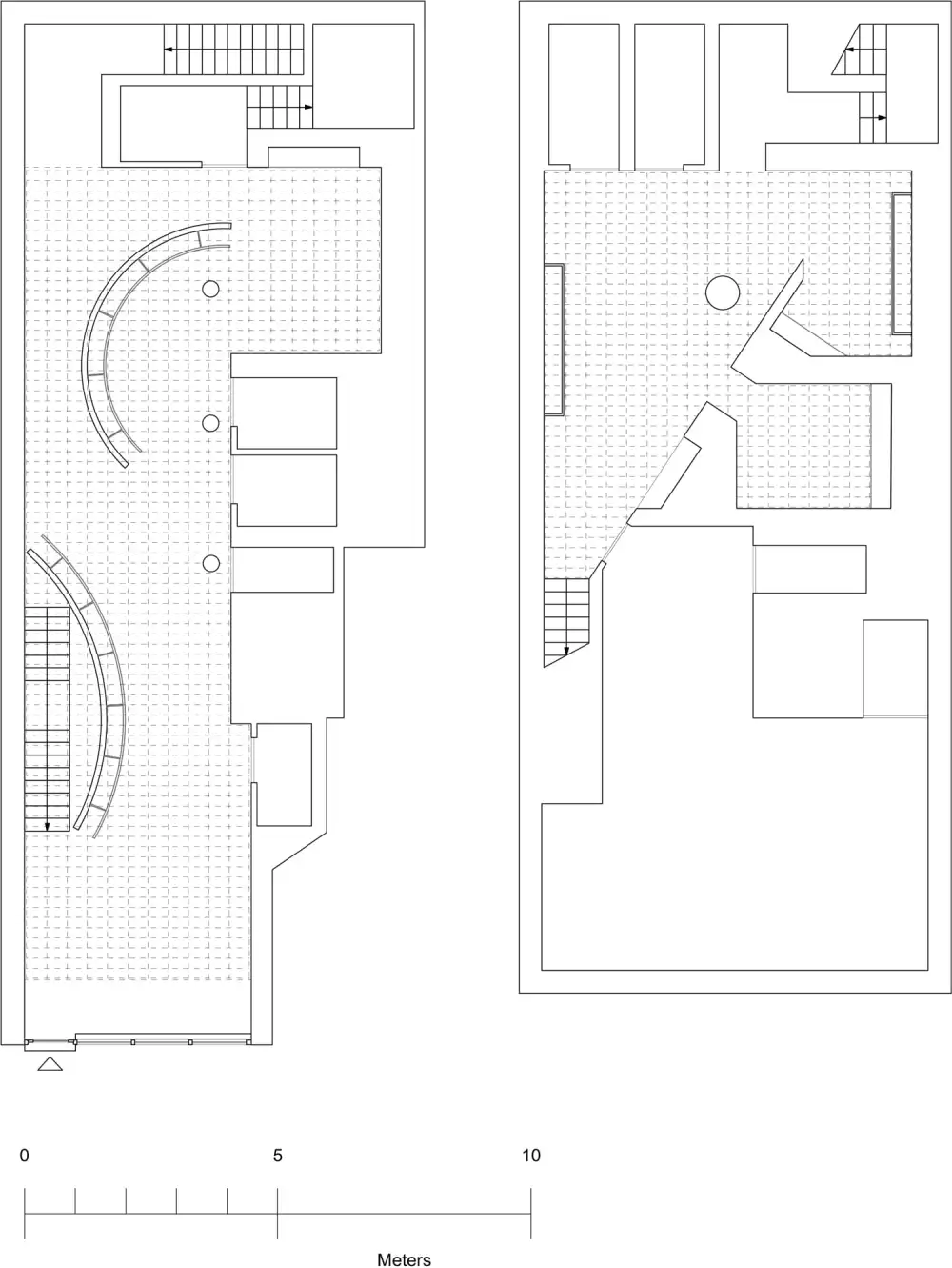
商店内部的地面和底层地面占地223平方米,并用不同的空间和材质定义不同的区域。设计团队使用了三个主要的设计元素来定义空间。
The Self Portrait store interior is set over 223sqm of ground and lower-ground floors, defining different zones with distinct spatial and material qualities. The architects employed three primary design elements that define the space.


带有粉红色和白色大理石镶嵌的定制水磨石地板为空间增添了质感,图案和微妙的女性气质。由Lichtvision设计的带有照明的开放式网格天花板在车间上方创造了一个连续的、明亮的边界。最后,深色和沉重的康沃尔矿物粘土渲染应用于所有的墙壁和天花板表面。
Custom terrazzo flooring with pink and white marble insets adds texture, pattern and subtle femininity. An open grid ceiling with lighting design by Lichtvision creates a continuous, luminous horizon above the shop floor. Finally, dark and heavy Cornish mineral clay render is applied to all wall and ceiling surfaces.
简单的几何形式被用来创建结构在两个楼层。在地面上,两个带有彩色铝镶嵌物的半圆形金属筛网在开放的线性空间中为衣服提供了悬挂导轨。在较低的地面上,建筑师使用倾斜的墙壁和柱子来形成一个三角形的地板空间,周围是较小的角落和凹室,比如一个有彩色大理石座椅和鞋架的区域。两个楼梯在整个室内创造了一个有趣的环形通道。
Simple geometric forms are used to create structure on both floors. At ground level, two semi-circular metal screens with coloured aluminium inlays provide hanging rails for clothes amongst the open, linear space. On the lower-ground, the architects use angled walls and columns to shape a triangular floor space surrounded by smaller nooks and alcoves, such as an area with colourful marble seating options and a shoe stand. Two staircases create a playful looped pathway throughout the interior.
















∇ 平面图

∇ 爆炸分析图

主要项目信息
项目名称:Self Portrait
项目位置:英国伦敦
项目类型:商业空间/时尚空间
完成时间:2019
设计公司:Casper Mueller Kneer Architects
摄影:Paul Riddle

