这是一间建在高尔夫球场内的私人酒店,设计师从一开始做项目对接的时候就对该案非常感兴趣,而实地考察的结果,他们则倍感兴奋。这个带有十足工业风的建筑就像是这片绿地的心脏。人、建筑,以及自然以不同的形象和迥异的特色呈现出三维对立,同时又融为一个整体。
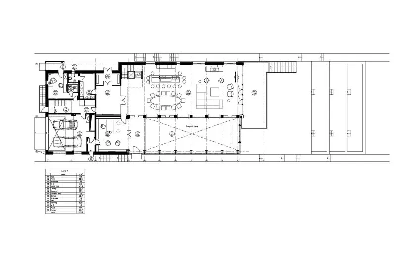
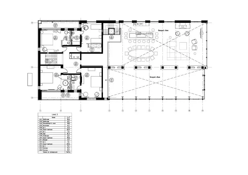
整栋建筑的空间划分简单明晰,卧室空间和开敞的娱乐空间作为两个主要的部分相互独立,又紧密相连。业主希望酒店的室内设计风格能够让人惊艳,为顾客留下深刻印象。于是设计师在娱乐空间陈设了很多雕塑和装饰画,这些噱头十足的设计与空间的主调交相呼应,相得益彰。设计师表示他们在做该案的同时参考了荷兰境内多家艺术设计酒店,例如鹿特丹的纽约酒店和阿姆斯特丹的Winston酒店。
在保护原建筑工业风格的同时,设计师致力于将丰富的材料和高档次的饰面引入到室内设计当中,使之成为空间的特色。别具一格的大理石饰面、浇筑的混凝土墙面、精心铺陈的木地板,表面被氧化处理的铜,以及威尼斯玻璃恰到好处的装点了室内空间。
值得一提的是泳池与室内的隔断,被穆拉诺岛玻璃板装饰的柱子,它们的存在强调了空间的界限,将室内巧妙分隔的同时又起到了很好的装饰作用。
设计师表示,在斯特加诺夫工业学院的工作室里有一个初版手机的玻璃模型,非常漂亮。在日常生活中,设计师们总是一边讨论着一些项目,一边将它握在手中把玩。他们很早就有一个想法,要把这种特殊的玻璃材料运用在自己的设计当中,而现在这个想法终于在本案得以实现。在很快完成了室内效果图的制作之后,设计师们开始了最艰难的部分,那就是找到可以将他们的想法落到实处的人。终于一家来自意大利穆拉诺岛的公司和一些来自捷克的玻璃艺匠也参与到了该项目的建设中,而来自俄罗斯的公司Nickel Collective则承担了将这些玻璃安装并且加固的工作。
竣工之后的NON-standard 酒店,以其极简的设计手法,丰富的用材,独特的用色从众多酒店的设计中脱颖而出。科学的空间分割,流畅的行进路线给予了顾客最充分的自由,让他们得以在此享受片刻的宁静。本案的设计风格粗犷中带着精致,设计手法看似无意实则充满巧思,是当代酒店空间设计中不可多得的佳品。
工程名称:NON-standard 酒店 坐落地点:俄罗斯 莫斯科 设计团队:Margarita Kornienko,Sergey Kurepin,Viktoriya Nagurnaya, Daria Turkina 主要材料:玻璃柱子 金属家具 竣工时间:2019 摄影:Ilya Ivanov

