巴夫洛项目是绿城中国与蓝城集团倾力打造的大型小镇项目,集住宅地产、旅游、农业于一体,国内少有的田园牧歌式生活典范。
GLD绿檀设计结合项目定位与特色,在设计中主要利用充满设计感与丰富色彩的空间,打造现代、休闲、自然的风格。
Bavlo project is a large small town project created by Greentown China and Blue City Group, integrating residential real estate, tourism and agriculture, which is a rare example of idyllic life in China.
Combined with the project positioning and characteristics, GLD green sandalwood design mainly uses the space full of design sense and rich color in the design, to create a modern, leisure, natural style.
奥古斯丁曾经说过:“美是各部分的适当比例,再加一种悦目的颜色。”
将沉静活力的绿意注入到空间之中,打磨生活的精致感,营造宜居的舒适感与放松氛围。将家在理想中的浪漫与现实中的温情结合的淋漓尽致。让现代居住者在忙碌的生活与工作之余能够寻到一处诗意的栖居之所。
Augustine once said, “Beauty is the proper proportion of the parts, with a pleasing color added.”
Pour the quiet and vibrant green into the space, polish the delicate sense of life, and create a livable comfort and relaxed atmosphere. The home is in the romantic in ideal and the tender feeling in reality is united incisively and vividly. So that the modern residents in the busy life and work can find a poetic place to live.
浮躁的都市生活,人们期待回归本真,寻一方心灵归依之处,等一场温暖投契的对话。在流淌着清新绿意的餐厅区域,我们放慢脚步,忘记城市的纷纷扰扰,对话他人,寻找情感的共鸣。
Impetuous urban life, people look forward to return to the real, looking for a place of refuge, such as a warm bond dialogue. In the dining area flowing with fresh green, we slow down, forget the citys troubles, talk to others, and find emotional resonance.
踏入卧室那一刻,就感觉到温软舒适的空间向你敞开怀抱,私享空间的松弛感迎面而来,让人能够更加真实地找到自我心中那块温柔之地。
Step into a bedroom that momently, feel lukewarm soft comfortable space to you open bosom, the slack feeling that enjoys a space privately oncoming, let a person be able to find that piece of gentle place in ego heart more truly.
主卧空间内柔和的灰度铺就优雅内敛的质感,人居美学的率真平和便是如此。软装将空间的柔和气氛延展到灯具、装饰及布艺家居中,融现代化的生活方式与艺术的生活气息于一室。历经繁复的筛选过程,都成为了空间与日常生活的关联之处。
The soft grayscale shop inside the master bedroom space is elegant and introversive texture, the simplicity and peace of human settlement aesthetics is just like this. Soft outfit extends the downy atmosphere of the space to lamps and lanterns, adornment and cloth art live in, the life breath that melts modern life style and art is in one room. After a complicated screening process, it has become the connection between space and daily life.
独立书房,硬朗的金属材质,彰显时尚的质感,理性的线条勾勒出前卫的格调,简约稳重的黑白灰仿佛钢琴的琴键,一杯咖啡,一本书,一片温暖的阳光,奏响悠闲慢生活。
Independent study, hard metal material, highlighting the texture of fashion, rational lines outline the avant-garde style, simple and sedate black and white gray as if the piano keys, a cup of coffee, a book, a warm sunshine, played a leisurely slow life.
儿童房采用烂漫的星空探索主题,蓝色的星空与头顶的星球,都颇具趣味,激发孩子关于宇宙的无限想象力。纯净的童心让关不住的想象力自由翱翔,像小小的宇航员一样飞啦!活泼俏皮的宇航员摆件用不同的姿势展示着探索的乐趣,默默守护着孩子心中的宇宙梦。
Children room uses brilliant sky to explore the theme, the star of blue sky and overhead star, have fun quite, arouse the child to be about the infinite imagination of the universe. The pure childlike innocence lets the imagination which cannot be shut up soar freely and fly like a little astronaut. The playful astronaut poses with different poses to show the fun of exploration, silently guarding the childrens dreams of the universe in their hearts.
公司创始人介绍:
徐帆,GLD绿檀公司创始人,为浙江大学硕士研究生,曾赴英国伦敦作交换留学,有着多国游历经验。毕业后在绿城房产集团任职多年,不但具有丰富的甲方管理经验,而且有优质的乙方设计经验,在设计领域中对国际时尚文化有着极为敏锐和独到的领悟,极具国际设计视野。
浙江绿檀装饰工程设计有限公司为多种类型的项目提供优质的室内设计和软装陈设服务,包括住宅项目,如样板房、售楼处、会所等;私人住宅如公寓及别墅;餐厅、酒店、服务公寓及商场等酒店、餐饮项目。我们秉承设计无界限的理念,通过文化融合、品牌整合、产品及设计师合作等协作方式得以充分体现并进一步加强。同时,通过和美国、欧洲的顶级品牌和设计师多年的紧密合作,将欧美最顶级的品牌引进中国。
ZheJiang lvtan decoration engineering design co. ltd. provides quality interior design and soft furnishings services for various types of projects, including residential projects, such as model houses, sales offices, clubs, etc. Private residences such as apartments and villas; Restaurant hotel service apartments and shopping malls such as the hotel catering project, we uphold the concept of design has no boundaries, brand integration and product designers through cultural fusion and collaborative approaches to cooperate fully embody and further strengthen at the same time, through and the United States, Europes top brands and designers work closely together for many years, will be Europe and the United Statess top brand into China.
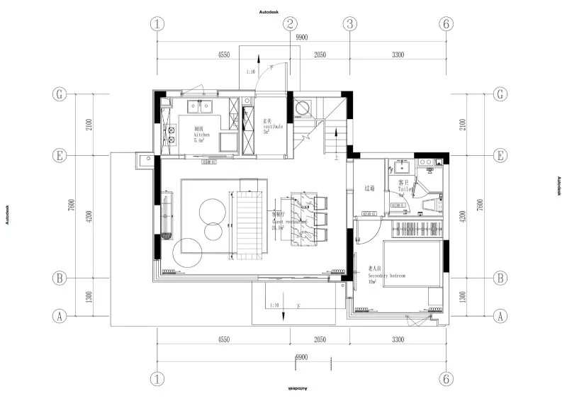
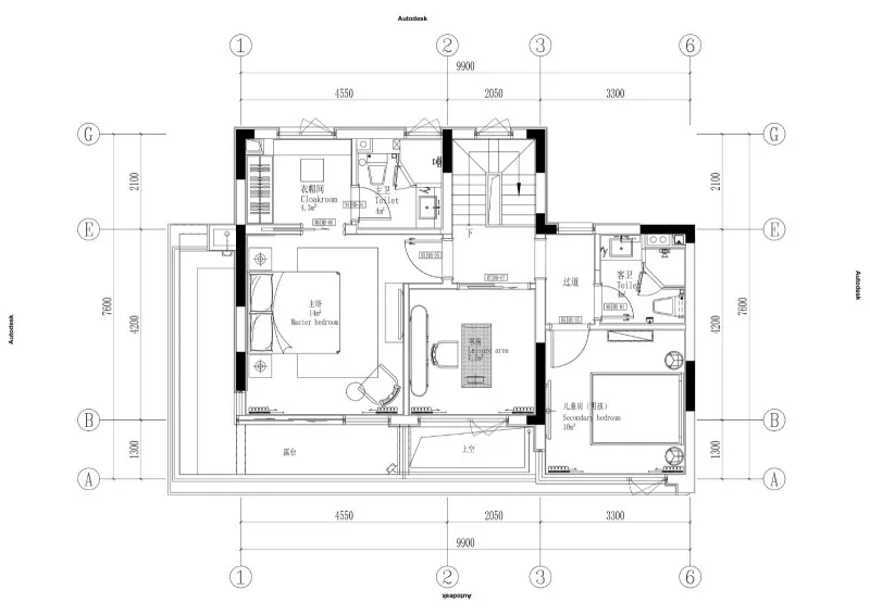
项目名称| 巴夫洛小镇项目下叠样板间
Project | Pile up model rooms under the project of Bavlo Town
项目地点| 江西·宜春
Project location | Yichun, Jiangxi
项目面积| 140㎡
Project area | 140㎡
开发商| 绿城中国、蓝城集团
Developer | Greentown、Blue city group
开发商团队代表| 吴照琦、张雄杰、吴周虹、龚辉、蒋孝波、龚涛、聂赛群
PartyA’steam|Wuzhaoqi、Zhangxiongjie、Wuzhouhong、Gonghui、Jiangxiaobo、Gongtao、Niesaiqun
设计机构| GLD绿檀室内设计与软装
Design studio | zheJiang lvtan decoration engineering design co. ltd.
设计团队| 徐帆、陈小芹、胡晨露
Design team | Xu Fan, Chen Xiaoqin, Hu Chenlu
联系方式| 徐先生 18758569909
Contact Information | Mr.Xu 18758569909

