© Jerome Ricolleau
(杰罗姆·里柯莱)
架构师提供的文本描述。法国大使馆自1975年起在雅加达沿著名的Jalan Thamrin大街建立。新外交园区的项目来自于将在雅加达的所有法国外交和文化服务机构集中在一个单一地点的意愿。
Text description provided by the architects. French Embassy is established in Jakarta since 1975, along the pstigious avenue of Jalan Thamrin. Project of the new diplomatic campus comes from the will to bring together all diplomatic and cultural French services in Jakarta, at a single location.
© Jerome Ricolleau
(杰罗姆·里柯莱)
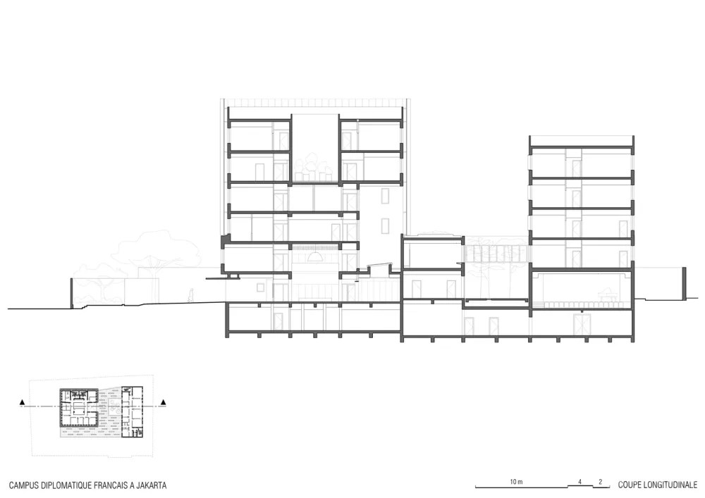
校园位于许多摩天大楼和一条主要公路之间。尽管校园规模较小,是一座五层楼高的建筑,但它正确认自己是一个信号,有两个可识别的体积。在这个混乱的城市环境中,由于其独特的和同质化的重要性,这座建筑正变得与众不同。该项目旨在提供一个简单、清晰、可读的体系结构。
The campus is located between many skyscrapers and a major Highway. Despite its small scale as a five-storey building, the campus is affirming itself as a signal with two recognizable volumes. In this messy urban context, the building is setting apart thanks to its singular and homogeneous materiality. The project aims to provide a simple, clear readable architecture.
© Jerome Ricolleau
(杰罗姆·里柯莱)
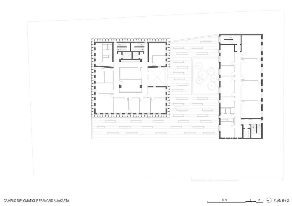
Floor Plan
© Jerome Ricolleau
(杰罗姆·里柯莱)
方案实体有:总理府;经济、军事和文化特派团;法国研究所。这种收集提高了所有服务之间的凝聚力。即使每个实体独立运作,它们都围绕着露台、循环空间、空隙和其他公共空间排列,这些空间将实体聚集在一起。
Programmatic entities are: Chancellery; economic, military and cultural missions; French Institute. This gathering improves cohesion between all the services. Even if each entity operates independently, they are all arranged around patios, circulation space, voids, and other common spaces, that bringing entities together.
© Jerome Ricolleau
(杰罗姆·里柯莱)
通过解决城市、功能和安全问题,该项目被设计为明确表达组织原则。
By solving urban, functional and safety issues, the project was designed as a clear expssion of organization principles.
© Jerome Ricolleau
(杰罗姆·里柯莱)
-两层基座填满所有可建区域。它包括通常向公众开放的空间,作为大使馆控制区,以及法国学院的主要设施(礼堂、图书馆和咖啡馆)。基座上覆盖着火山石,两个大的凹痕指出了两个独立的入口,一个通向大使馆,另一个指向研究所。这些特别强调质量感。
– A two level pedestal fills all the buildable area. It includes spaces often open to the public, as the Embassy controlled zone, and French Institute main facilities (Auditorium, library and café). The pedestal is covered with volcanic stones, and two large indentations point out the both separate entrances, one to Embassy and another to Institute. These particular emphasize the sense of mass.
© Jerome Ricolleau
(杰罗姆·里柯莱)
-放在基座上,两卷书都在上升:一卷是总理府,另一卷是研究所办公室。在物质方面,底座上的暗色和顶部两卷的清晰程度之间有着重要的对比。从安全和可访问性的角度来看,总理府的容量是保护漆和穿孔铝板,这提供阴影,保密性和安全性。
– Placed on the pedestal, two volumes are rising: one of Chancellery and another of Institute offices. About materiality, there is an important contrast between darkness of pedestal volcanic stones, and clearness of the two volumes on top. To be appropriate from the safety and accessibility point of view, the Chancellery volume is protected with a lacquered and perforated aluminum sheet, which provides shadows, confidentiality and security.
© Jerome Ricolleau
(杰罗姆·里柯莱)
Architects Segond-Guyon Architectes
Location Jl. M.H. Thamrin No.10, Menteng, Kota Jakarta Pusat, Daerah Khusus Ibukota Jakarta 10350, Indonesia
Category Cultural Center
Local Architect Atelier 6 International
Area 5600.0 sqm
Project Year 2014
Photographs Jerome Ricolleau

