法国顶级国际商业律师事务所Gide的新总部是巴黎近年来最重要的重建项目之一。该总部位于圣奥古斯丁广场,体现了巴黎“新陈代谢”式的自我重建,同时为以促进集体智慧为目标的企业提供了全新的办公空间。
Pépinière军营建造于十八世纪末期并服务于法国禁卫军。在战后年代,为了满足法国军队日益增长的需求,军营的后翼被拆除,转变为一座办公楼与军营相结合的新建筑。该项目便是由这座历史悠久的军营建筑改造而来。
CREATING A SENSE OF COMMUNITY
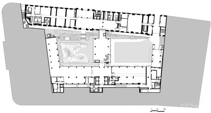
横向重建促进交流与合作
高而窄的军营建筑体现出军队的纵向层级。PCA-STREAM事务所为该项目引入了全新的横向工作和管理方式,通过新的交通系统让使用者可以沿着建筑的长边移动。庭院后方的地面被拓宽至12米。电梯核心筒被集中在同一位置,以方便办公人员每天乘坐。
公共区域所占比例被显著提高,为非正式的会面提供了充足的空间:厨房和宴会空间(每层);配有大尺寸餐桌的现代化餐厅;以及带有嵌入式团体讨论空间的大型图书馆。此外,场地中央还增建了名为“NoPa”的新建筑,作为公司的资源、交流和展示中心。
围绕着庭院的立面完全由玻璃构成,令使用者即使从建筑的两端也可以看到彼此。整个空间的设计旨在促进员工之间的偶遇、互动和知识共享,为法律行业严谨私密的工作氛围赋予了一种范式上的转变。
新的员工办公室仍然保持了专人专用(或者由两至三人共享),但同时采用了透明的隔墙,有些则是可以用来书写的墙板。声学设计旨在保证对话的隐秘性。大部分的办公室都设有双向的内部入口、户外阳台以及露台。
MAXIMIZING PHYSICAL WELL-BEING
除了中央花园、庭院和种有绿植的露台等一系列高品质的户外空间外,办公室还与每层楼的阳台形成连接。两个屋顶花园可以欣赏到蒙马特高地、城市屋顶以及圣奥古斯丁教堂的壮观全景。设置在立面外部的楼梯可通向露台,在促进偶遇的同时也能够鼓励体育锻炼。充满启发性的非正式空间能够提供灵活的工作环境,并完美地适应四季的气候和环境。
EMBODYING THE FRENCH ARTS OF LIVING
Gide公司与PCA-STREAM建筑事务所进行了密切合作,希望能够将公司卓越、创新以及崇尚法式生活美学的价值观充分地展现在室内设计当中。建筑内采用了一系列高贵却不张扬的材料,如Charmot石灰石饰面、蓝色Buxy石灰石和大理石,以及结合了古旧黄铜的金属制品,贯穿室内的木制托架为空间赋予韵律。公共空间借鉴了住宅和酒店的装饰风格,搭配以优雅的窗帘以及量身定制的装饰品和灯具。
RECONNECTING THE CITY TO NATURE
新的Gide公司总部拥有近4500平方米的户外空间,其中一半以上覆盖以绿植。技术性的结构使屋顶能够为芳香植物提供生长环境,由专门从事城市农业的Topager园艺公司负责照料和维护。屋顶花园还能种植可食用作物,虽然产量不多,但在环境方面,则能够显著改善城市生物的多样性并优化雨水管理。中央庭院种植着大量的树木,邀请人们来此休息、午餐、交谈或工作。景观方面主要采用了由La Superstructure设计的穿越绿植的木质平台。
项目名称:LABORDE
建筑师事务所:PCA-STREAM
项目地点:15 rue de Laborde, 75008 Paris – France
总建筑面积:18879m²
关于PCA-STREAM
PCA-STREAM是一家位于巴黎的城市和建筑设计公司。它所承担的任务范围之广,在业界是令人瞩目的。PCA-STREAM汇集了一个由90名具有不同背景和才能的合作者组成的团队:建筑师、城市规划师、工程师、设计师、艺术家、研究人员、编辑等等。它的多学科团队以及成员所承担的各种规模和项目使他们成为从整体角度看待全球进程和问题的专家。

