这是位于台湾省新店89㎡的老屋,屋主为一个年轻女孩以及两只狗狗的家,屋主很年轻也很有爱心,常常为了又救援狗狗花很多时间与精力,这一间房子她也是为了她的两只大狗狗买的,希望他们能有一个舒适的活动空间。
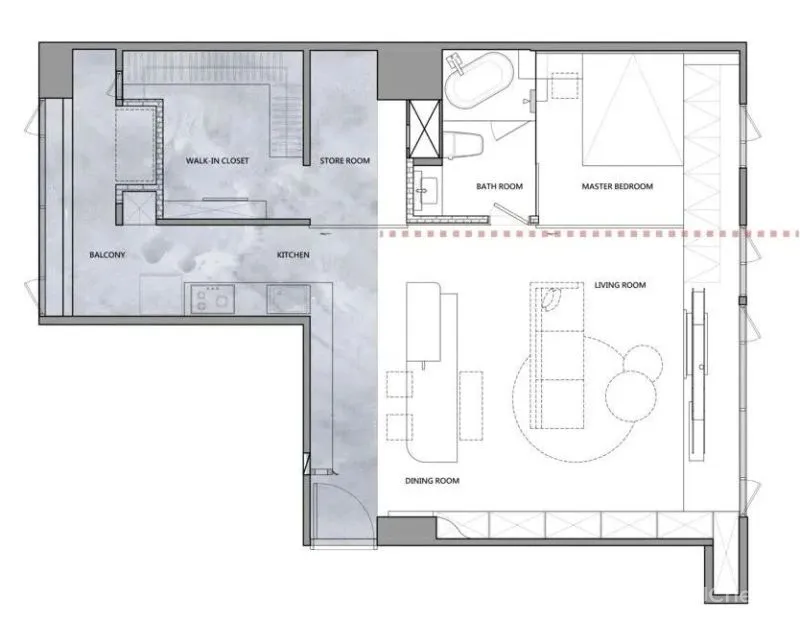
原始屋况是一个标准两大房两厅两卫格局,屋主只希望有一房、一间更衣室和一卫浴就好,所以我们将原有隔间拆除,尽可能让客厅空间变大。
我从入口切一刀划分两个区块也定义两个动线,藉由地砖及色块引导狗狗可以直接进到后方阳台清洗;屋主希望尽可能让卧室小一点;剩下的空间全部留给公共空间,所以我们主卧室用一道大拉门区隔,浴室变成透明玻璃增加穿透感,左边则是更衣室跟大储藏室(可以收纳较多关于狗狗的食物及杂物)。
用两条轴线让空间使用划分清楚,希望空间都是穿透没有阻隔。
打破原有电视墙的框架,用铁件让电视轻巧的在空间中呈现,使电视墙有一种悬浮在空间感觉,它不仅仅是一座展示柜,也是一道端景墙;沙发后面就是中岛兼餐桌,让屋主找朋友来玩都很舒适。而原有窗户不低,所以设计了一整条卧榻,希望让视觉上窗户感觉变大,也因此多了很多收纳空间。
因为老屋原有的缺点就是天花板很低,且梁跟管线也很多,所以天花尽量简单才会让视觉看起来不压迫,用简单的弧形元素把梁修饰掉,搭配LED灯带弱化压迫感。
客厅朝主卧室视角,拉门关上与打开的状态。
屋主平常喜欢下厨也喜欢做轻食,所以外面的中岛对她来说也很重要。
阳台上放置了专门洗狗狗的机器,右侧做了一个内凹空间摆这台机器,省了很多时间,狗狗的毛也比较不会到处飞。
用一道大拉门来界定卧室空间,打开后变成客厅的一部分延伸;而当拉门滑开后整个变成一个大房间,地板选用很防滑的木纹砖及大块石纹砖,也可以让狗狗很轻松的在空间中奔跑。
客厅卧榻延伸到主卧变成床头柜一部分,床头矿物涂料质感也延伸到浴室内;而浴室的置物平台则是由卧室的化妆桌所延伸而至。主卧上方因为管线跟梁都很多,所以尽可能还是希望把天花板拉高;浴室部分让它有两个出入口,卧室内外都可以使用。

