空间名称:虎头山咖啡馆
空间类型:咖啡厅、餐饮空间
空间地址:温州乐清市下山头村铁定溜溜乐园
设计公司:慢珊瑚文旅规划设计
设计团队:徐晶磊、周毅、胡佳、齐俊师、蔡加晖
空间面积:540平方米
空间主材:水泥漆、木材、木地板、金属、玻璃、绿植
摄影版权:瀚默视觉|叶松
项目客户:乐清慢方适文化旅游有限公司
项目位于浙江乐清市下山头村铁定溜溜乐园。在可以观览整个园区的虎头山顶座落着一家朴素又安静的咖啡馆。这里可以包裹一块毛毯,手捧一杯现磨咖啡,远眺着雁荡山的日起日落,感受着大自然的壮丽柔美。设计初衷是希望在简洁安静的环境中融入自然之美。登顶的客人总会在山顶驻足眺望,这是大自然无形的吸引力。
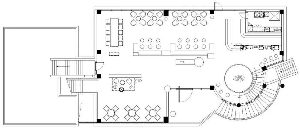
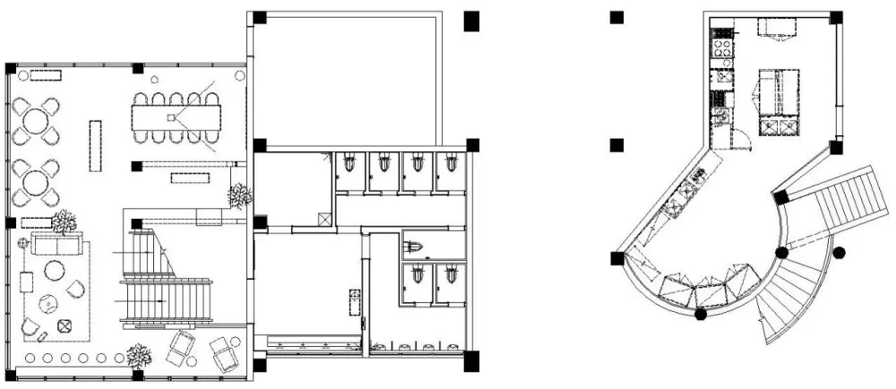
走进馆内,大面积的落地窗给客人以最大的观景感受,拉近人与自然的距离。在吧台点上一杯香醇地道的手磨咖啡,选择自己喜欢的位置,或倚着靠窗吧台、或窝在舒适布艺沙发、亦或呆在室外平台,开始一整天的消闲时光。
水泥漆保持了空间简素的调性,浅色实木地板则给人带来些许温度。角落放置的老木头、老门板、点缀的绿植给空间增添了一丝生机野趣。转角处的抽象画无意间又陷入另一种沉绪。
▼浅色木地板和水泥漆创造简素而温暖的空间
▼靠窗吧台区,远眺雁荡山
▼多种形式的休闲方式,慵懒、放松的午后
整个咖啡馆没有过多的装饰,更多的是咖啡与自然带给人们的精神交融。空间氛围朴直、静溢、自然,好似在老旧的物体外表下,显露出的一种充满岁月感的美,它让人们忘去自我,直至无我境界,只剩下平静以及对大自然的神往。
▼盥洗室,长方形窗洞定格连绵山峦
弧形楼梯环绕造景延伸至二层户外平台,顶部的圆形玻璃天窗使“池”“月”“天”融为一体,建筑曲线的引导中感受空间的意境。
▼户外平台区,黄昏,满目皆是余晖

