OK-Loft是位于莫斯科中心位置的一座住宅,建筑高层的位置让它拥有优越的采光,如今136平米的空间宽敞舒适,设计团队Cartelle Design除了使用现代时髦的风格外,还加入了年轻夫妇喜爱的工业风元素,但是你能想象,这其实是三间小公寓“拼”出的吗?
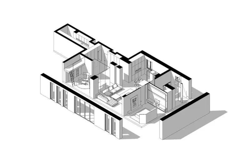
▲这里曾是三间独立的小公寓,不仅面积狭小,格局也十分怪异,年轻的屋主夫妇最终决定同时买下这三间,合并成一个136平米的宽敞空间,他们要求在OK-Loft里,不论是人还是猫,都要居住的舒适惬意。
▲改造中很重要的一个环节就是,设计师在让怪异的格局变得规整起来,从舒适度出发,每一功能区也预留了足够的空间,不论是储物还是使用起来,都完全可以满足。
▲入口深浅不一的木质地板在光线的照射下,显得层次感丰富,而西侧这一长条形的过道,也被改为了衣帽间。
▲过道两侧都尽可能的定制储物区,不论是夫妻两的衣物、鞋子还是包包、饰品都可以被收纳妥当。
▲夫妇俩养了一只猫,这个家的设计原则就是:要让每个人都觉得舒适,当然,这只猫也不例外,它同样享受到了这样的待遇,设计师将衣帽间的最里侧规划为猫厕所,不仅设置了通风系统,更是考虑到猫咪的出入自由,将门板开设出猫脸形状的洞,对于独来独往的猫咪来说,没有比这更幸福的了吧?
▲新空间的南侧墙面拥有多扇窗户,Cartelle Design首先做的就是保证室内的光线充沛,这让硬朗粗犷的工业风,也有更多的发挥空间。
▲由于是三间公寓“拼凑”成的大宅,拆除工作是非常浩大的工程,如何保证安全性、拆除后的美观性都是设计师需要考虑的,结合屋主喜爱的工业风元素,设计师决定保留部分混凝土的天花板横梁与立柱,不仅丰富空间效果,还增加了层高。
▲黑色的媒体墙与工业风搭配的十分和谐,Cartelle Design同时考虑到夫妇要求的舒适度,所以又加入了许多现代化的家具,模块式的沙发采用了浅灰色与蓝色搭配,非常的温馨,不论是色彩还是风格,软装与硬装间都形成了鲜明的对比,对于年轻的屋主来说,这样的个性正是他们想要的。
▲厨房利用黄色的单人椅和地砖的黄色图纹进行了点缀,而这一切只是为了与客厅的黄色猴子边几进行呼应。
▲厨房地面由木质地板改为了深色的砖块,相比之下更容易清洁打理,设计师没有规划独立的餐厅,因为平时家里就屋主夫妇两个人,不需要太大的空间,将餐桌直接与中岛吧台相连,还可以增加区域间的亲密度。
▲设计师将最西侧房屋的部分空间改为了办公区,采用透明玻璃进行两面的围挡,保证了光线的穿梭,也让全新的空间看上去更加通透。
▲很多时候,打动人的就是一些看似不起眼的细节,就像设计师在这张桌子上的构思,他将接线板“隐藏”在桌面内,避免了一堆凌乱的线,并在桌面内安装了无线充电器,保证清爽与整洁。
▲办公区的设计非常的人性化,考虑到工作太晚回房睡觉会打扰另一半,设计师在这里也规划了一间休息室,下层是储物柜,用来收纳书籍等物品,上层的休息室也可以作为客房使用。
▲按照实际需求,设计师只规划了一间卧室,原先最东侧的房屋如今变成了宽敞舒适的私密区,就连门也都与黑色墙面融于一体。
▲卧室的墙面通过艺术漆,刻意粉刷出破旧的斑驳感,搭配混凝土的墙面,有了一种颓废气息,而精致的摆件,现代的家具,又营造出了时髦的氛围,这样的鲜明对比,让空间增色不少。
▲卧室以深色调进行铺垫,通过灯光、装饰品的点缀,保持着神秘且不乏味的氛围。
▲这是室内唯一的一间洗浴室,面积宽敞,设计师特意规划了双人的洗漱池,保证早起时的互不打扰,并做到了完美的四分法,功能区各自独立,干湿分离。
设计/Cartelle Design
摄影/Denis Krasikov

