■ LJ-质感建筑设计专访
全然 全心 全情向往之
WITHIN THE HILL
并将其奉献给街区成为了设计的出发点
BEYOND THE HILL
B-M美颜社所在的位置
因此如何塑造差异化的店面形象便尤为重要
介于原建筑外观及门店周边的条件限制
设计师变换思维方式抛弃常规做法
而选择将空间最大限度开放
商业空间与街区环境之间
可以自然地转换到室内空间
无形中拉近商业空间与顾客的距离
这是质感建筑设计理念上的再次实践
空间爆炸图 P. 26
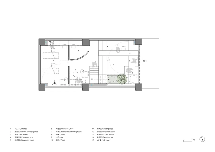
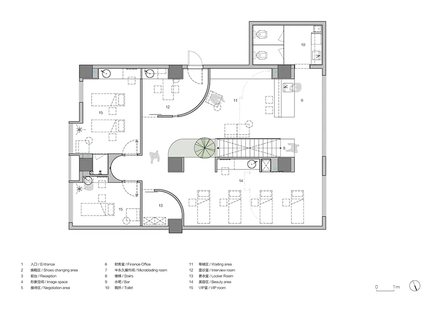
平面图 2 P. 28
质感建筑设计期望通过实践
为商业空间创造更多的可能性
也借此表达在建筑空间上的见解
以及对城市街区面貌的愿景
联合创始人:马宏锋(左)-马学鑫(右)
PADSTUDIO质感建筑设计
主创及设计团队:马学鑫 马宏锋 马佳涛


有点意思