设计机构:南昌LEAST设计工作室
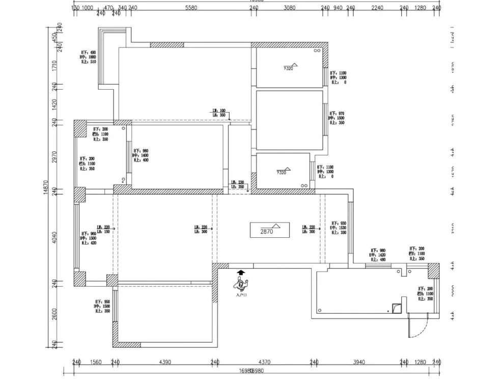
房屋格局:4房2厅2卫
项目面积:160平方米
这是一个军人家庭,男主人是个性格刚毅的部队军官,想法比较传统保守,
同时有很好的涵养,十分尊重爱人和设计师。女主人是个拥有法式浪漫主义情怀的文艺少女,自身品味很出圈,喜欢中古家具。他们孕育有一个女儿,各方面非常优秀,钢琴舞蹈都很出挑,所以把空间都释放出来,给女儿尽情展示自己的风采。
 
 
 
 
 
 
 
 
 
 
 
 
 
 
 
 
 
 
 
 
 
 
 
 
将客厅这个大空间完全释放出来,女主人弹钢琴,同时有足够大的空间给女儿练习芭蕾,
 
 
 
 
 
 
 
 
 
 
 
 
 
 
 
 
 
 
 
 
厨房是女主人最在满意的区域,复古的花瓣砖,橱柜门板的调色,复古造型的烤箱,
无不体现女主人对法式浪漫的极限追求与执着。
 
 
 
 
 
 
 
 
 
 
 
 
 
 
 
 
 
 
 
 
 
 
 
 
 
 
 
 
 
 
 
 
 
 
 
 
 
 
 
 
 
 
 
 
拍摄这套作品是正恰是一年圣诞
祝我爱的人和爱我的人们圣诞快乐
 
 
 
 
 
 
 
 
 
 


