Estudio Penha为Natura在圣保罗的新总部的接待而开发,该项目体现了其幸福的本质,并表达了Natura品牌的维度,考虑到了当代巴西的图标。一个正在建设中的国家,但显示出身份,力量和蓬勃发展的灵魂,与自然的交汇点。
该项目以一种联觉的方式进行阐述,允许氛围、视觉、纹理、声音和气味传播品牌的思想和价值。为此,我们探讨了建筑中的三个主要概念:线条、镜子和时间。
 
 
 
 
 
 
 
 
这句话表达了一切的开始:它是一个简单的元素,但变化无常,舞蹈和灵活。虚构或材料。从线条开始,运动开始,从线条中产生的创造成为产品;生命的线条,思想,存在。以窗帘为代表的线条组合在一起,形成了更复杂的情节,发展成为计划,成为表达。
镜子反射出每一张脸和每一种欲望,不同的肤色和每一种美的特性。象征意义上,它是纯洁和真理。在我们的建筑中,它是每个人内心深处的一个入口,激发好奇心,允许自我欣赏和自我认识,即使只有短暂的一刻,认可与每个个体所表达的美之间的联系。
 
 
 
 
 
 
 
 
 
 
 
 
将时间物化到建筑元素中是非常重要的。通过灯光和影像,我们将我们生活的运动和速度物化,讲述和记录品牌价值,以此来激励我们辉煌的未来。关于时间,也有必要记住,为了建设未来,我们必须寻找我们的根,我们的情感记忆和归属感。这里的过去不是用过去的时间来象征的,而是用思想和理想来象征的,是不合时宜的。古典现代主义家具设计的灵感,带来了一个以大胆为标志的时代的优雅和简约。
所有这些元素都覆盖并融合在一起,创造了捉迷藏游戏。它们之间建立关系,产生意义和新的可能性。由一串串的线条组成的屏幕,在这个平面上的光线形成了一个“电影院”,向路人广播信息、图像和想法。一个具有强烈概念的挑衅性的项目,轻但不是一次性的。这是一个充满音乐、气味和质感的感官项目,充满了意义,通过好奇的外观,抓住了这个将Natura和巴西结合在一起的灵魂,为品牌创造了一个自我和原创的形象。
 
 
 
 
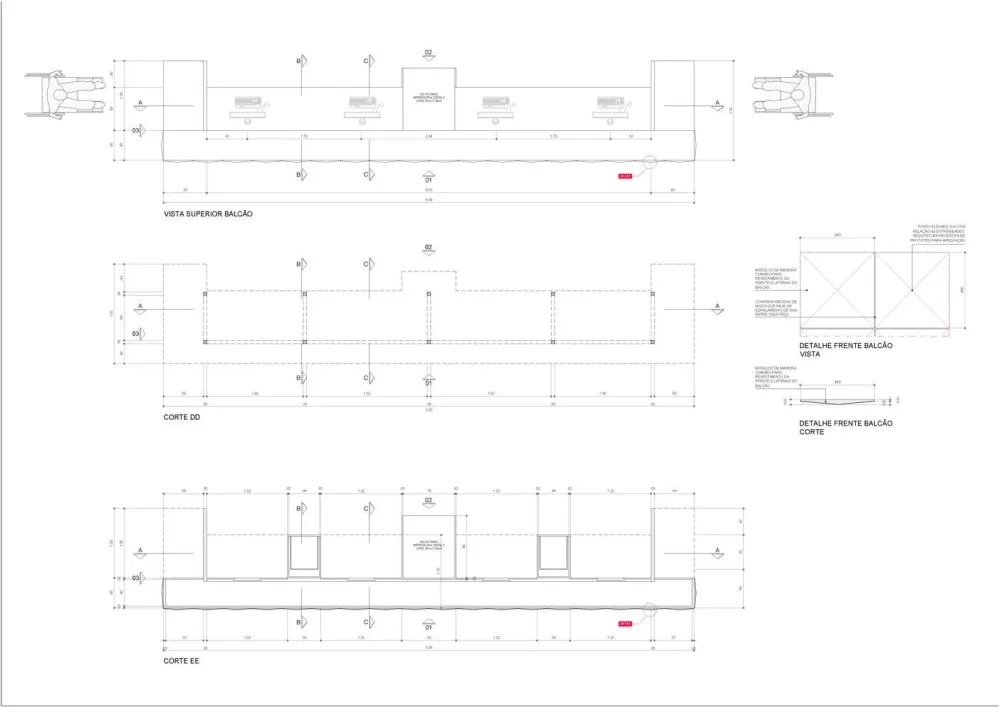
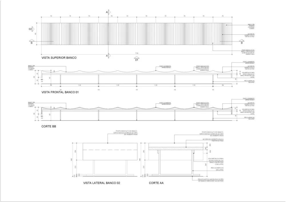
▼平面图
 
 
 
 
 
 
 
 
 
 
 
 
Architects Estúdio Penha
Location São Paulo, São Paulo State, Brazil
Category Offices Interiors
Project team Vitor Penha, Verônica Molina, Ricardo Souza
Area 504.0 m2
Project Year 2017
Photographs Maíra Acayaba Manufacturers Adérito Preto, Clatt, Firgal, Dpot, Uniflex


