不同时期材料和结构的结合 ©Hirvilammi architects
由于经济问题,这栋位于Seinäjoki镇边的建筑无法如期成为Törnavä Manor的示范型畜棚。同样的问题也使周边市政的发展趋于停滞。建筑最终由Kaleva保险公司完成,首先被用作呢绒工厂,之后被芬兰国防军关闭,消失在公众视野之中。今天,这座畜棚重新成为了一个文化艺术中心,由数个实体合作运营。
▼项目外观©Hirvilammi architects
基于不同时期的不同需要,这栋建筑经历了零碎而理性的发展。在1893年到1930年间,建筑被抬高并加长,以容纳更多功能。没有任何一段历史时期是建筑真正的起源,因为每十年都拥有属于自己的故事,无法简单地将建筑还原到某个特定时期。尽管这座畜棚是Seinäjoki城市景观的重要组成部分,但其内部却鲜为人知。对于设计师来说,这种公众认知与信息缺乏之间的矛盾激发了他们的想象力,为项目的改造带来灵感。
▼从不同方向看向建筑,每个时期拥有不同的故事 ©Hirvilammi architects
修复工作需要一直寻找平衡,校验并重新诠释原本的建筑。负责任的建筑介入必须提供一些方式,发明创造一些新的事物,同时保护历史的痕迹。对本项目来说,设计师选择进行了一种现象学上的尝试。基地很近,使得建筑师可以经常到现场记录建筑不同时期的材料和层次,从而彻底将其剖解为一种叙事,运用到新的建筑表达中。
▼不同时期材料和结构的结合 ©Hirvilammi architects
▼材料与结构细部 ©Hirvilammi architects
Kalevan Navetta文化艺术中心是建筑中多种实体的合奏。大厅作为序曲,引入其他空间。昏暗的中央楼梯帮助游客做好心理准备,迎接主要空间之间在氛围、结构和材料上的戏剧性转变,如同一首热闹的乡村交响曲。建筑变成了一场仿佛由民间小提琴家、刨木机和钢琴共同演奏的丰富的感官盛宴。
▼大厅 ©Hirvilammi architects
▼接待台 ©Hirvilammi architects
▼休息区和咖啡厅 ©Hirvilammi architects
▼楼梯间 ©Hirvilammi architects
▼演讲厅 ©Hirvilammi architects
▼展厅 ©Hirvilammi architects
▼办公区 ©Hirvilammi architects
▼总平面图 ©Hirvilammi architects
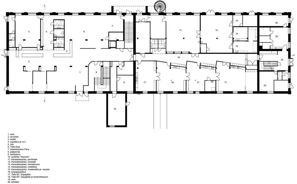
▼一层平面图 ©Hirvilammi architects
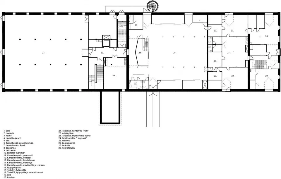
▼二层平面图 ©Hirvilammi architects
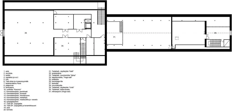
▼三层平面图 ©Hirvilammi architects
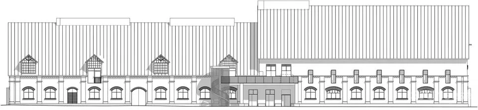
▼立面图 ©Hirvilammi architects
▼剖面图 ©Hirvilammi architects
Project Name: Art and Culture Center Kalevan Navetta Architecture Firm: Hirvilammi Architects Ltd. Website: www.hirvilammi.archi Contact e-mail: teemu@hirvilammi.archi Firm Location: Finland, Seinäjoki Completion Year: 2020 Gross Built Area: 4478 m2 Project location: Seinäjoki, Finland Lead Architects: Teemu Hirvilammi, Anne Kaivo-oja Lead Architects e-mail: teemu@hirvilammi.archi Photo credits: Hirvilammi architects
Design Team: Hirvilammi Architects Ltd. / Teemu Hirvilammi and Anne Kaivo-oja Clients: Pihlacon / Petri Pihlajaniemi Users: Sibelius Academy Seinäjoki Unit Cultural cervices Seinäjoki, Kunsthalle Seinäjoki, Childrens cultural center Louhimo, Seinäjoki Vocational college, Restaurant Äärellä, Taito Etelä-Pohjanmaa, crafts and design school Näppi, Taito Shop Engineering: Ramboll Finland / Structure engineering / Fire engineering, Sähkö Tuominiemi / Electrical, Paloff oy / HVAC Interior design: Teemu Hirvilammi and Anne Kaivo-oja, Elina Ristimaa, Room2, (Taito Shop)

