这套公寓坐落于摩尔多瓦的首都基希讷乌
由意大利室内设计师 Valeria Mahu 亲力打造
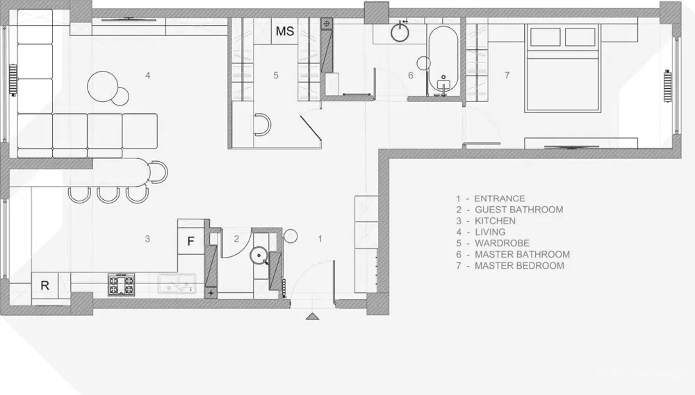
面积共 86㎡,一室一厅的布局
应户主要求,设计师运用复古颜色搭配黑白主调
创造出了个性十足的室内空间
 
 
玄关一侧是复古绿色软垫换鞋区域
上方设有隐藏式灯光槽,呈现柔光质感
旁边的黑色置物架与白色鞋柜墙面形成对照
 
 
 
 
另一侧的墙上挂有拱门式全身镜
复古红色墙面与绿色区域
 
 
面向玄关的衣帽间墙面为透明玻璃材质
墙体虚实结合,相互映衬
 
 
圆形化妆镜悬挂于具有立体纹理的复古蓝墙面上
镜面背后隐藏式光源散发柔和光线
下方是大理石材质台面和深色木纹抽屉
地面则配置复古红软垫矮凳
 
 
 
 
白色纹理的大理石台面延伸至敞开式衣柜
侧面还设有隔板,放置各种围巾、帽子
 
 
 
 
客厅铺设大面浅色木质地板
有效缓解了暗色调的沉闷氛围
 
 
绒布的组合沙发由红绿黑三色拼凑
 
 
 
 
电视两侧分别设有简洁的黑框收纳架
 
 
厨房与起居室通过半面墙轻微隔开
L 型厨房墙面布满白色收纳柜
与中间的深色厨房操作面形成对比
 
 
黑色餐厅吧台位于厨房与起居室中间
搭配经典的复古红色高脚椅
 
 
背景墙由白色和灰色立体纹理墙面共同构成
黑色床头面板背后设隐藏式灯槽
灯光亮起时会给室内带来温和协调的氛围
 
 
 
 
卧室内设有精致的黑色床头圆筒吊灯
以及简洁的黑色木纹床头柜
 
 
 
 
下方收纳抽屉与床头面板高度一致
视觉上与墙面形成一个整体
 
 
电视背景墙由玻璃镜面和白色墙面组成
镜面在视觉上延伸了卧室的纵深空间
令整体氛围更加高端大气
同时电视上方还设有线条简洁的条形灯
 
 
 
 
浴室由白色大理石饰面和复古红墙面组成
 
 
洗漱台与浴缸连成一体呈 L 型
下方为连续的深黑色收纳柜
整体设计与卧室的衣柜相统一
 
 
 
 
马桶区与洗漱区通过一片玻璃面轻微隔断
黑色敞开型收纳架位于马桶区一侧
 
 
次卫由高级黑面板、深色立体石材饰面
黑色个性长条形灯饰散发大范围的温和光线
令紧凑的次卫布局更加敞亮
 
 
 
 
地址:摩尔多瓦基希讷乌
设计:Valeria Mahu
工作室: Francesco Rota Studio


