项目名称:上海虹庐湾售楼处
项目业主:香港置地、万科
业主团队:李勇、郑巍、熊嘉妮、杨舒雯、潘芷萱
设计团队:曾凌韬、刘洋、陈晓麟、李鹏宇、杨璐帆
上海虹庐湾售楼处坐落于国际化生态创新创业园区的南虹桥,生态与商业区块的新型社区激活了设计师对于空间形象的灵感。从现代人对生活品质需求及充实精神世界的角度出发,设计师以感官层面作为切入点,分析生活中点滴的感染力。以空间作为载体,打造出定格时光,休闲时尚的生活中心。
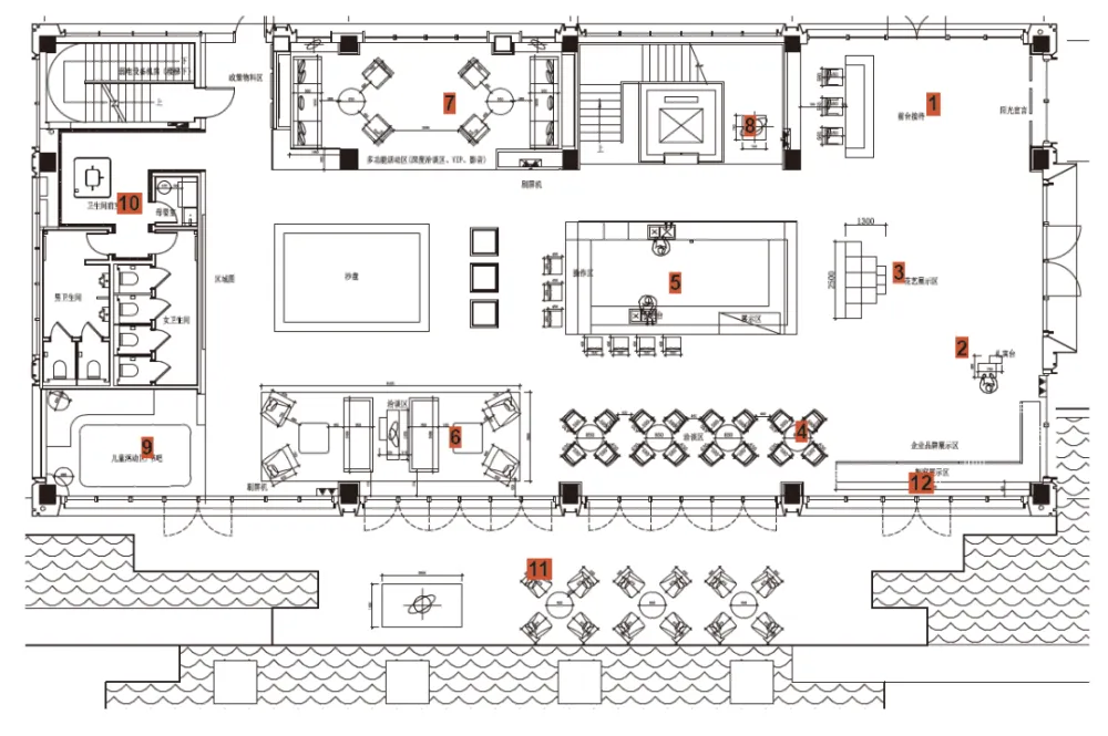
空间平面结构规整,顺应地势,为最大化空间的感染力,去除了多余的隔断和分割,开放空间的连通性,将外部的空气最大程度地纳入室内。室内灵活的动线,牵引人们探索更多空间元素的魅力。中央吧台将交流活动的区域扩大,温度、光影在此汇聚,从结构的角度带给人闲适自由的体验。
色彩感染力调动情绪的共鸣
步入空间大厅,米白色与木色的背景基调将优雅与清新的氛围铺陈。点缀的橙色,点亮了视觉中心,带着一丝香甜、柔和的味道融入主空间。艺术装置的体块参差有序,结合前台背景幕墙的图案雕刻,天然纹理的修饰,丰富了整体视觉上的层次感。
水吧区建立在玻璃吊顶之下,流光溢彩的透明质感,映入万象。规则的体块分割,与整体结构和艺术装置相对,理性的气质给人带来独特享受。杯中橙色的液体似水波流动的弧度,自然之意带动空间的气韵,灵动轻盈。多角度的视觉享受,使观者与空间产生共鸣,切身融入进室内的氛围中。
洽谈区的软装沙发,设计师考量了质地、硬度、温度和重量作为触觉的基本表达形式,糅合皮革、布艺与木质元素的细腻,给予观者品质、精尚的体验。同时通过柔软的质感,平和人们的情绪,将温情,温润的感知渗透人心。
沙盘空间建立在木饰面与金属台面之上,木饰面带有其独特的自然气息,与窗外的绿意呼应,生态城市的意向由此展开。简约的台面,去除形式化的元素,通过其天然的纹理构架层次感。用材的考量平衡了时光留驻的概念,将更深层的理念传递。
一室醇香,享受片刻宁静
咖啡、书屋、香薰,半围合式的功能区,包容一室醇香,在此休憩片刻,抛去生活中的琐碎片段,享受片刻的宁静。天花板的角度,改变了原本规整的空间结构,赋予了空间趣味性。
从嗅觉产生的记忆留驻开始
花艺作为大自然的衍生,逐渐成为现代品质生活中的必需品。空间细节中精准的点缀,并不会掩盖本身的层次和质感,反而修饰了极具魅力的艺术气息。
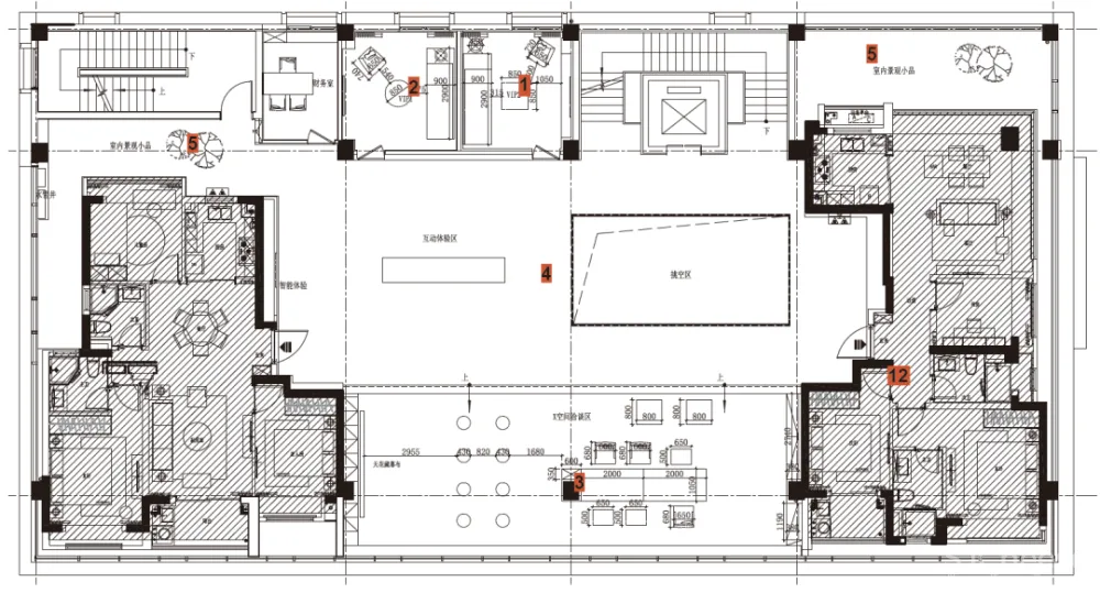
二楼公共空间延续了主空间的温润气质,加入更多趣味性的软装陈设,格纹图案的立体错觉感,从线条与图案中凸显艺术性的表达,在静态的结构中探索流动的活力。
VIP 洽谈室大面积“留白”,将空间的表现力交给大自然书写,玻璃落地窗轻柔地纳入室外空气,大气舒展的配色勾勒净心优雅的气韵。观者在此间聆听,感受人、自然、建筑的细微变化,充实精神空间的交流与互动。
设计师从视、触、味、嗅、听觉五个方面提升空间的可品味性,增加对人情绪的感染力。细节中传达出的气质与温度,使感性书写在理性的构架中,温暖人心,闲适放松。将现代人品味都市时光的休闲生活空间完美演绎。
HWCD是一家国际设计公司,在伦敦、上海以及巴塞罗那有一支紧密配合的设计团队。HWCD设计团队在国际上屡获殊荣,汇集了全世界近700名精英设计师。设计服务专注精品酒店、豪宅定制以及高端住宅设计。团队的优势在于:从项目具体出发,以创意和可行性为基点,进行全面的设计考量。与客户共同探讨项目的特质,了解他们的期许,为客户提供独一无二的设计解决方案。HWCD通过对环境和空间进行深入的分析和研究,和对创新思维以及精湛技艺的不懈追求,致力于给出基于项目本身最智慧的解答。

