“设计的起点往往开始于一个问题,一旦被捕捉到了,事情就开始运转了。” ——卡洛.斯卡帕
https://www.ckcz.cn/
本案女主是一名年轻的美术老师,热情且不拘小节,低调且才华横溢,对于美和色彩有着独特的见解,有一个活泼开朗、才华横溢的小女儿,他们带着对生活和梦想的追逐,搬至此新居。
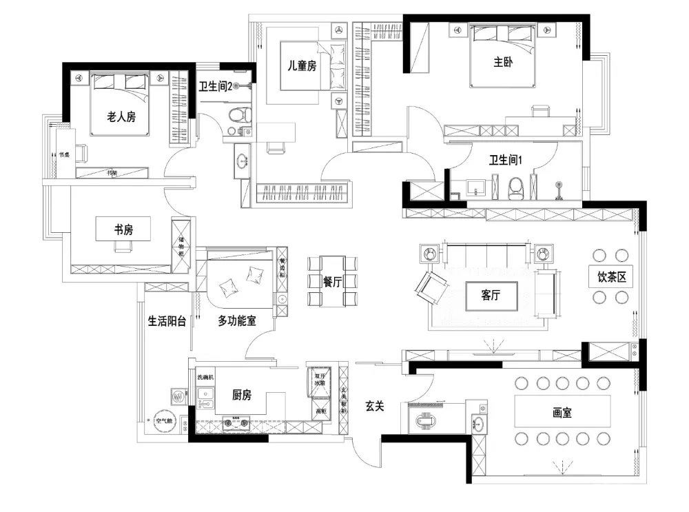
基于之前的住宅问题,储藏功能是女主头疼的一大问题。
其次因为对于美术教育的需求,我在新家添置了一个小画室,并独立于生活起居。
考虑到少了一个房间,我将原本超大的餐厅,再分出一个多功能室,既是孩童娱乐和学习的地方,还可当作客房使用。
这是一个“书香世家”,全家人都热爱读书和学习,大量的书籍和奖杯证书的存放于展示也是其中比较大的问题,于是我设计了更多的储物柜与展示柜,另外增加了独立书房,且各个房间配备了大大的书柜,让学习无处不在!
美学是很抽象的东西,但生活的模样却可以具体到一张舒适的沙发、一盆精心的盆栽上……
整体设计以现代简约风格为主,在空间色彩搭配中我使用了抢眼的孔雀蓝,配以部分橙色家具为点缀,以此凸显女主的艺术身份!
在有限的空间内,构出远势,驰向远思,在丰富的层次中交错延伸,可居可望。
随手取下一本书临窗而坐,伴随窗外随风舞动的植物,在舒适的空间中体验阅读的乐趣!
平面布置图
项目名称:逸园雅居
项目地址:中国·昆明
项目面积:220平方米
项目造价:66万
设计机构:长空创作
设计主创:王春艺
设计团队:刘思唐 周林华 李泉江 蒋应强 靖旭初
项目摄影:靖旭初
项目主材:瓷砖、墙布墙咔、大理石、朗生板
设计时间:2019年8月
竣工时间:2020年10月


😊