这是一个三口之家。男女主人喝茶也懂酒、爱交友、爱旅游,喜好舒适自然的生活;女儿Floria是一名自媒体博主兼 Vintage 服饰店主理人,热爱旧物古着,乐于分享各类美好事物。“我们从各个年代汲取精华,不复制也不跟从,不刻意逆流,只愿随心所欲。”这是业主Floria关于古着穿搭的观点。同样的,在设计师眼中,「Home is be yourself」,所谓风格就是真实地“做自己”,把热爱装进家。
【基本信息】
房屋户型丨4室2厅1厨2卫
设计面积丨178㎡
装修费用丨75w(不含家电)
风格元素丨混搭、自然主义、Vintage复古、Boho波希米亚
材料元素丨橡木、桃木、石岩板、藤、棉麻、牛皮、丝绒、海基布
设计师对应不同区域使用者主体,改变墙面色彩材质、家具、窗帘、地毯等占据视觉大面积的软装元素区分调性;在材料、细节装饰上,则用相同元素串联将自然主义、轻复古、波希米亚等多种风格融合,色调在大家具和小饰品上彼此呼应,避免“混搭”变“混乱”。
客餐、茶室公共区与主卧,以低饱和度大地色系为主,心理体验上让人感觉亲近、自然、无压力;同时融入保加利亚海蓝作为辅助色,避免整体太沉闷。
Floria的小天地延续了自然感色调,但同时尝试了更个性的撞色设计:卧室宝暗云衫绿vs太妃糖橙,书房淡山茱萸粉vs松石绿。共同取自自然的各种色调在不同空间产生共鸣,呈现出的色调比例又让不同空间的氛围各自鲜明。
大件家具的色系结合了硬装基调,在形态的选择上,大多沉稳饱满;在材质肌理的选择上,尊重自然原生态,采用多种材质,如木,藤,皮,棉麻,绒等。所有的择品逻辑并未专程去追寻某一地域,某一风格,而是在业主自我多元风格中寻求一种平衡。
引用Floria的吐槽:之前是又老气又丑KTV式精装修,金属条嵌红木门、皮质软包、粗笨波导线配大理石地面…完全没有入住的欲望。设计师罗丹和小璐通盘梳理整合一家人的生活方式对精装房做改造,现在的家让Floria觉得“又美又舒服,几乎想不起它原先的模样”。
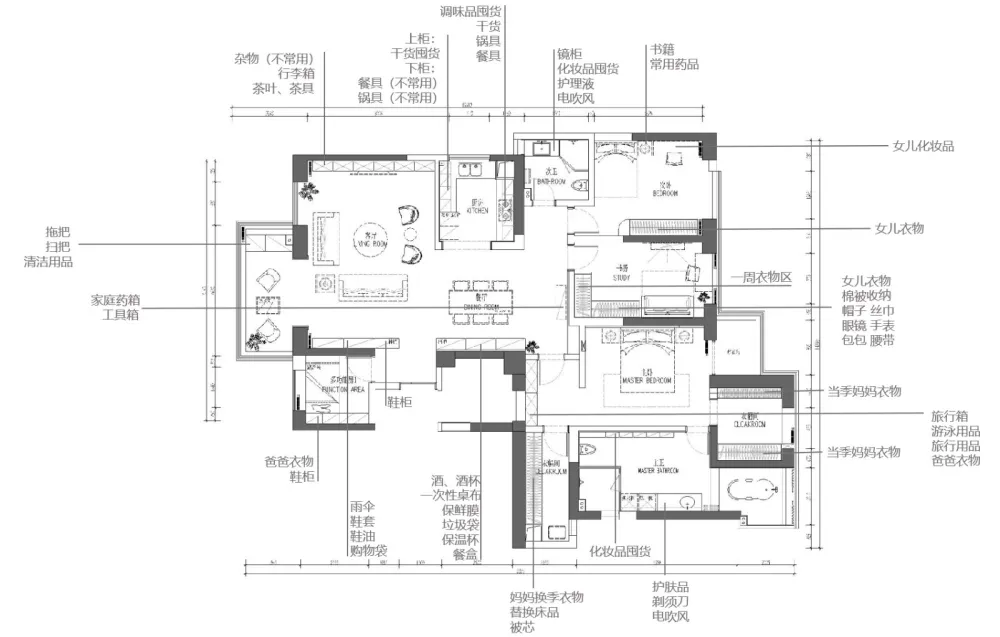
【平面】原精装房基本没有收纳规划。设计师统计出重点的收纳需求:全家100多双鞋子(且仍在增加)、旅行箱、杂物、爸爸的名酒收藏、妈妈的衣饰&护肤品、Floria的日常&古着衣物&丝巾&帽子… → 对应各空间的使用者和习惯,设计了全屋公共储物、鞋服收纳、餐厨储物、卫浴收纳四大模块,尤其是鞋服类的收纳规划(戳下图放大可看详细):
【玄关】~ 鞋、杂物 ~ 整面定制鞋柜和装饰隔断墙合二为一,前后容量合起来相当于6个成品鞋柜。设计师注意到主人家很少高跟鞋,所以柜内层高根据主要鞋类(单鞋、球鞋)设计了130、180mm两种高度,能放更多鞋子;均为活动板,后续有高跟鞋或靴子一样也能存放; ~ 衣服、饰品、床品、杂物 ~ 凡衣柜内均有设计分类存放格,例如长挂衣区、丝巾收纳格等。
【客厅】北欧Norhor牛皮大沙发、美国轻复古United strangers单椅纤细铁艺、里斯本回收木Objectum茶几、中式仿手提灯笼手工吊灯、印尼手工雕刻摆件……粗犷和细腻元素糅合,并把它们和谐融入同个空间。
【客厅】原多层级吊顶拆除改平吊,但特意保留了客餐厅间的吊顶结构用于区分两个区域。长达7m的桃木由墙及顶,串联出空间大气感。
【客厅】墙面桃木和灰色石岩板墙配搭,也丰富造型层次。拆改吊顶时如有空调风口百叶,颜色也需要考虑调整;设计师提前嘱咐师傅拆下来由白色刷为黑色,才能和桃木饰面及黑色钢板底部协调。
【客厅】电视背景墙按压式开合,平时是一面柜体存在感极弱、具有凹凸层次感的装饰墙;实际由大小不一的38个柜格组成,左右两侧均预装活动层板,需要时可拆卸局部层板同时放入4个24寸行李箱。下方留空避免整面落地显闷,插座等置于底部隐形又方便使用。
【餐厅】设计师将餐厅原本右侧墙面的石材、玻璃造型拆除,定制餐边柜+搁板收纳覆盖墙面;瓷砖地铺浅橡木色地板覆盖。
【餐厅】可伸缩餐桌,拉开可达2M多,满足8-10人聚餐;定制柜上方嵌超薄钢制搁板,纤细精致且承重佳,满足长辈收藏名酒需求;下方大容量边柜满足各类干货食品的囤放。
【餐厅】餐厅正对过道墙拆除原硬包,重新设计做三等分方格比例棉麻布艺造型墙,掩盖了电表箱的存在,又使墙面质感更丰富;过道的成品餐边柜进一步为收纳增容,藤编造型和棉麻墙面,整体立面强化自然主义风格。
【阳台】阳台推拉门拆除、和客餐区贯通。原本洗衣池全部拆除,改为放置茶具、零食杂物的收纳柜;家具选搭木质和藤条材料结合圆润线条、包覆感强的形体。
【阳台】花砖元素用到茶桌上,独特又有混搭趣味。
【卧室】Floria对自我风格的定义 : “有柔有刚,气质中性;衷爱Vintage、新旧融合”。设计师希望能为她量身定制出无限接近她审美和态度的空间风格,尤其是卧室这样私密的小天地。讨论后设计师提出“延续大地色系但局部跳色”的思路。
【卧室】法国让-皮埃尔·热内的《天使爱美丽》电影美学中,Amelie的卧室有云杉绿织品、橙黄色灯光、大地色系家具,复古瑰丽,是超现实主义的浓郁浪漫…脑海里的这幅画面色彩记忆,被设计师调度出来,从中找到了灵感色——云杉绿,并从墙面一直蔓延到天鹅绒窗帘。
【卧室】比起单纯刷漆上墙,这面海基布绿墙好处在于有丰富的表面肌理供选择(对于喜欢肌理感视觉和触感的人很合适)。
【卧室】床对面通高大衣柜满足Floria衣物收纳的需求。最外侧开放转角,方便她进屋时就能随手摘掉手饰、项链等小饰品,也可作小小展示台。
【卧室】床头挂画原作是Floria第一眼便相中的荷兰画家莫里茨·埃舍尔创作的超现实主义风格《Other World》,画面有盗梦空间即视感,几何线条又带有Art deco元素。
【卧室】摆件、灯具、镜子、窗帘局部以橙黄色做跳色点睛。壁灯设计为可旋转180°,转向床头为睡前阅读灯,转往梳妆台即为化妆照明灯。
【多功能房】卧室的绿调到了书房化为点缀色,有呼应的统一感,又切换出两种空间情绪。在这间房里,能同时满足「阅读 + 拍摄 + 收纳 + 影音 + 临时客房」 多功能模式:拉上天鹅绒窗帘,按下投影遥控,秒变私人影院。
【多功能房】因为在书房常置景拍摄,所以墙面贴海基布刷淡山茱萸粉,对比白墙作为拍摄背景视觉效果更出彩,和绿调也形成撞色,低饱和度更耐看。
【多功能房】Thonet最经典的14号椅。
【多功能房】书房工作台,曲线元素在椅子、灯具乃至桌子细节棱角都被设计师应用其中。材质由胡桃木质、藤编、黄铜构成,强化古典韵味,特意选择结构纤巧形体,避免材料带来的体量感过重。
【多功能房】
【多功能房】松石绿沙发床貌美又实用,可伸缩变成休闲床使用;Floria放松时最爱靠着沙发,坐在波西米亚风情的平织大地毯上,尽享自在。
【长辈房】“海湾躺在我们身后,滑得像盘子,蓝得令人窒息”,经典希腊三部曲《The Durrells》中的清爽柔和影像美学被设计师连接到主卧的色彩氛围中,目的是希望给到主人在云海深处舒缓进入睡眠的体验。
床侧挂画的图案就是房间家具、床品、灯具、地毯的色彩凝聚。
材料天然,床品也选择透气清爽的亚麻材质。
【卫浴】主卫面积有18㎡,但除了浴室柜却基本没有收纳空间。设计师定制了一排侧面深度200mm收纳窄柜(化妆品、纸巾等杂物)延伸到马桶区变为搁板(方便搁放手机)。
Designed by Liju
设计团队:
理居设计师罗丹 | 家不只是一个摆好物品的空间,它应该是个能够让人安稳地、丰富地继续生活下去的地方。
理居设计师曹璐琳 | 让生活在现代都市的人们得到返璞归真的舒适体验,设计师角色就是连接、平衡都市与自然的一个摆渡者。


点点赞赏,手留余香