Sergey Makhno Architects新作,房子由两个相同的部分组成:就像一对胞胎兄弟,面积5000㎡,这座房子既是自然的延续,也是自然的对立面。工作室的创始人兼建筑师Serhii Makhno说道:“所有人都喜欢欣赏周围的美景,并学会了看里面的美景。”
PROJECT TEAM
Futago在日语中的意思是“双胞胎”,这是对日本建筑,尤其是建筑师安藤忠雄的致敬。
“如果不是因为日本,我不确定自己是否会成为现在这种意义上的乌克兰人。它让我认识到了乌克兰遗产的深度和价值。在我的世界里ーー思想、生命和创造力ーー这两种文化创造了一种不可思议的、不可分割的共生关系。他们有两个心跳。就像我们的双胞胎一样。” serhii makhno 说道。
老实说,这样的项目千载难逢。客户清晰地表达了他们的愿望: 在保留经典之后,获得一个现代化的、极简主义的房子,成为他们家庭生活的一个新阶段。客户让我们做自己的工作,完全不干涉创作过程。
Futago就是这样诞生的。
Futago是我们在乌克兰私人建筑中的突破。该项目的建设历时3年,成为真正的挑战和决定。
这个位置鼓励我们尽一切可能使从窗户看到的景色成为这个项目主要亮点。为了做到这一点,我们挖了3万吨土,并将房屋的两部分都提升到了5米的高度。因此,我们摆脱了地平线上的障碍,充分享受风景。
当窗户变成墙壁,门必须达到近5米高时,奇迹发生了ーー在奥德萨,专门为 futago项目打开了一组双层玻璃窗,每扇重达1吨。
我们建造这个项目是为了超越现有的界限,没有解决不了的问题,没有不能实施的项目。futago就是一个明显的例子,”该工作室的首席工程师olha sobchyshyna表示。
当你走近房子时,你会感觉到巨大的混凝土矩形块悬挂在空中ーー它们的垂直基座隐藏在坚固的围墙后面。
较低的混凝土水平面不仅支撑着上面的控制台,而且还是一个带草坪的露台,还有当代乌克兰艺术家的作品: nazar bilyk 的《周围空间》(space around)、 yegor zigur 的《 atlant 》、 serhii makhnoi 的《 kroli 》。
房子配备了智能房屋系统,有强大的通风系统,包括空气过滤和灰尘收集技术、体温调节、地板和玻璃加热。
地下一层是办公空间ーー车库、技术厨房、洗衣房等。一层是起居室,二层是私人空间。后勤的设计使居民和技术人员的流动不相交。
”这个项目改变了我们和我们的客户。我相信,它还将改变世界对乌克兰住宅建筑的看法,并推动新的建筑成就,”建筑师oleksandr kovpak表示。
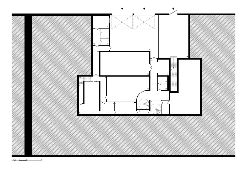
1.杂物间;2.楼梯;3.走廊;4.楼梯;5.冷藏室;6.杂物间;7.走廊;8.工作厨房;9.通风机房; 11.美式酒吧;12.洗手间;13.厕所前庭;14.走廊;15.走廊;16.健身室;17.更衣室;18.入口大厅;19.走廊;20.工作人员洗手间;21.员工淋浴室;22.员工室;23.车库;24.庭院。
40.“暮光之城”卧室;
41.“白天和黑夜”的卧室;
建筑总是在意想不到的地方带来新的含义。
部的装饰仍然在实施过程中,
我们将显示位于主入口左侧的现成的一个。
两者都具有相似的布局,面积为2500平方米。
客厅有4.5米高的全景窗户,可以看到8公里宽的全景。
无可挑剔的白色充当作者设计灵感的画布,就在前面,有一个带台面的蓝色厨房,你可以在这里做饭和用餐,而不会把视线从周围的风景中移开。
混凝土和白色螺旋楼梯从一楼蜿蜒到卧室。
外面的绿色植物引入了房子,
内部和外部之间的界限是模糊的,
客厅变成了风景的一部分。
我们真的想打造一个没有散热器和对流器的干净空间,由于智能通风系统和地板采暖,温度得以保持。
天花板上有一个1.5吨重的灯。
每间卧室都有独立的浴室和更衣室。所有这些都由一条混凝土线组合在一起,但是每种颜色都有其颜色:从焦糖砂到深色铜。
仿石像从房子的墙上渗出来,使房间显得像溢出的焦糖色的沙子。
有一个 serhii makhno制作的陶瓷dido确保屋主不会忘记关掉手机,
房子的每个角落都有一个叫futago的名字。
这个卧室最完美的搭配是混凝土墙,牛奶色,现代乌克兰艺术和全景窗。房间的主要装饰是建筑师Serhii Makhno创作的雕塑“ Day and Night”,作为永恒选择黑白,黑暗与光明的象征。另外一排窗户的视野很好,使得这个房间很特别ーー每个人都能看到自己的景色。
房子的设计使得每个卧室都能看到美丽的风景。
放开所有想法,这样就可以溶解在空间里,变成尘埃,让你自由。
我们的陶瓷雕塑duma值得珍藏,永不放弃。
设计的简约实用的卫生设备,不仅仅是卫生洁具。
如果你有足够的空间来容纳这个解决方案,那么睡眠区和浴室区是最好的组合。
在这个房间里,黑色和铜色阴影占主导地位
天花板上的隐藏灯类似于马斯丹。
美式酒吧位于地下室,在这里,你可以随着Jimi Hendrix的蓝调独舞翩翩起舞,准备好作者的鸡尾酒,忘掉生活,尽情享受。


点点赞赏,手留余香