一个以四合院为背景的隐秘之地:新做与旧况、低调与高端、市井与舒适,这三对有些对立意味的词汇在古老却快速更迭的北京常出现在有关设计与生活的讨论中。
这个建筑自从民国时期,伫立在北京中心前门大栅栏古城区域已经有接近一百年的历史了。这个建筑从民居变为零件工厂,后又变为麻将棋牌室,几经变换,几经异手。现在它将被保护改造为一间地下酒吧俱乐部。曾经的经营者为了迎来更多的客人,将最初的出入口外立面完全拆除了,变成了可以拉动的玻璃门和金属门,它非常违和地存在于这条古老的区域和胡同中。
当我接到这个案子时,我敏感地发现了这个不洽,同时让我警觉的是,在开向胡同的建筑立面上自我且主观地设置形式,都缺少原因和动机,而且很难获得环境区域的接纳。为了解决这个问题,我到当地的档案馆,找到了这个建筑最初建设的资料、照片和少量图纸,了解了它最初的样子。
已经消失的立面是一个典型的民国时期的双层多拱形立面,由石块砌筑而成。石块材质现已无法找到,所以我使用现浇混凝土筑成新的拱形立面,使用材质和形状来对应历史,同时根据材料特性调整形式和比例,控制其粗糙程度和时代感。
在混凝土凝固后,对浇筑混凝土的模板进行清洗和整理,将其拼装到一层立面上面的露台上。使双层多拱的历史画面通过现代的设计及建造后得以重现。模板的使用减少了二层露台的荷载,这对拥有近百年年龄的砌块结构的“危楼”是非常必要的。一二层的混凝土、模板纹理互相对应,各层之间的立面像印刷或拷贝过一样,由工人进行手工的精准复制,混凝土和木板共同呈现出和谐的气质。
在这庞大的胡同区域中,这栋楼是稀少的零星的拥有二层的建筑之一。同时,由于这个建筑深入北京中心的前门胡同地区的腹地,车辆很难进入,运送建筑材料非常困难,节省使用建材,做到一材多用,也是聪明、环保的处理方式。在胡同很远的地方,就可瞥见它的二层露台,和在上面活动的人们。
建筑的出入口立面稍微凸出街道,为了减少天际线的突兀感和露台矩形角落的尖锐感,我使用了木材和综合材料包围出半环形的箱型栏杆,内置环形灯,白天从胡同中可以看到栏杆灯箱对于凸出的建筑和露台轮廓的温柔过渡,夜晚,可以看到黑色天空中的曲线光晕,它照亮了街道也照亮了露台,为深灰色的胡同中增添了超现实的标志和趣味。
进入入口大门,穿过小型的玻璃玄关,就是酒吧的散座大堂,混凝土拱形做法由外立面延续至内部,行成室内的拱形环廊形象。室内的材料全部使用对应民国时代的石砖、混凝土及木材,在现场进行手工加工,设计建设过程中避免使用与地域及历史时代不相符的现代工业材料和处理方式。
整体将来到此处的人们带回到历史的最初那一刻、那一处。在近一百年中,这个项目经历了多次的辗转和不同的人的使用,每有新人到来,都对墙和地面进行了其个体主观意志的改变或覆盖,如涂漆或铺垫,我将这些覆盖和涂饰进行去除和清洗,对空间和材料进行“卸妆”,恢复它们的本来面貌。作为这个建筑的改造建筑师,我更是这个项目的考古人和修复者。我对现场进行着小心翼翼的挖掘和梳理,使用不着痕迹方式以及现代材料和工艺,对无法恢复的“漏洞”进行填补。
使用者的感受也受到了很大的关注,贯穿大堂室内南北的吧台将工调酒区和散座区进行分隔,七个的散座分别设置了吧台上和吧台下的点状舞台氛围照明,并可独立开关和调节,同时分别配置了独立的USB、引路地灯以及独立音响等配套设施,每个散座的独立空间大,光线和声音因为合适的间距而互不影响,这使每一个客人都获得了“头等舱”般的感受。
大堂中的空调、设备、灯具、管线等现代设备和电器被隐藏在墙体、吊顶、吧台中,客人的视线范围内都不会出现现代设备和电器的违和闯入,我称这种控制原则为“迪士尼”般的“大气圈”设计,目的是让客人在体验时进入完整、自洽且闭环的时间与空间体验,包括产品和氛围的整体设置,被“当下”所包围,梦境的“剧场”中不被出戏。
经过散客大堂,需穿过长长的走廊,走廊两侧是经过盐水清洗的清水砖墙,沿着引路地灯前进,穿过隐蔽的玻璃门,空间豁然开朗,就到了真正的四合院落。
静谧、私密的北京四合院落,隐秘在这个长廊后面。从拱形出入口到达院落的空间流线,消解为大小且长短不一的多个序列段落,流动的空间让这个过程流畅且不易被察觉。
这隐喻了酒吧的真正定位:中国、北京中心前门胡同区域中腹地的秘密酒馆,一个以四合院为背景的隐秘之地。“四合院”这个词汇有被四周包围且具有向心性的私密场所之意,也有被东南西北四面房屋围合的一块方形土地之意,除了SiHe拼音之外,我使用“QUAD”这个词,从环形包围及数字四,与建筑的空间布局对应,有信有达有雅。
这个独立的院落,南北有两个独立的酒吧包间与大面积的卫生间,西面是邻居平房的无窗山墙、东侧是修复抬高后的山墙(镜像了西墙的山墙)。除了四周的建筑围合之外,只见地面和天空,保证了完全的安全和私密,也突出了这个场所的精神,即人与环境、人与人、人与自我的主要关系,获得这样有力量的纯粹性难度很大,需要在设计过程中对于不必要的形式的内容的屏蔽,使客人的注意力聚焦在材质最本真的颜色和材质上。
在设计过程中,保持退后的沉默,控制整体环境和氛围的和谐,不做过度的设计和表达,是我一直在努力做的事情。北京自然气候多变,我在院落中一隅,设置了壁炉,在上空中用线性灯槽连接了东西山墙。
晚间,晃动的火焰,映衬夜空中飘荡的光芒,它与酒吧出入口以及吧台的拱内灯槽发出的光芒同步并均匀变色,温柔地照亮了院落,温度与照度同时抵达人心,让人留下难以忘记的在这个特殊地域的呼吸时刻。
前文提到的走廊有一个分支路线,上台阶即可到达这个建筑的二层,向南侧转身,就来到了独立的大包间。保留这个建筑的二层非常困难,在改建和修复这个建筑时,它是一个危楼。当时的木质地板和二层屋顶已经风化,不得不进行全面拆除,老的砌体墙已经歪曲。
我重新使用钢结构进行加固和地板搭建,并参考古建考证过的制数和尺寸进行精确的比例把控,在其中进行空调、水电、雨水、灯具的隐藏设置,用木材对钢结构进行包裹并重建屋顶。歪曲的墙体轮廓被多层次、多段落材质变换过渡、消解了。同时,我努力隐藏了设计的痕迹,让使用者的注意力可以聚集在二层包间的玻璃幕墙外的自然环境与坡状屋顶上,让使用者可以感受并相信,这就是近一百年前的样子,而又惊叹于现代生活的便捷与舒适。
在楼梯处向北转身,就来到了前文提到的露台上。露台与二层包间有两个出入口相连,行成了室内外的环形连接。站在这个露台上,看到一排排平行的南北向延续的平房的坡状屋顶,像一层层的海浪推波向露台涌来,而站在浪中的,是在屋顶上攀爬玩耍的生活在此的少年们。这是没有改变的近一百年前的情景。
在露台上也看得到古代的前门城楼、现在的中国人民大会堂、还有即将建成的500多米高的CBD建筑,让人感到有一点超现实、有一点奇怪、有一点想象力、有一点魅力。在露台上驻足观看或聊天的客人,也成为了行走在前门胡同中的游客眼中的风景,像是站在四合院屋顶上的拿着酒杯歌唱的话剧演员。
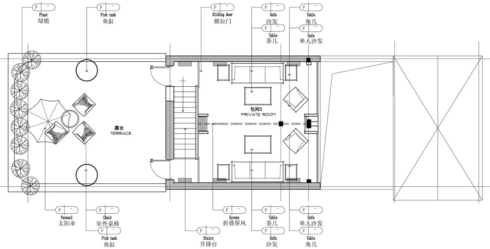
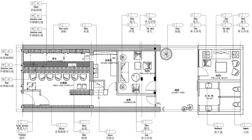
一层平面图
二层平面图
剖立面图
项目描述由建筑师赵楠提供
项目名称:四合
项目地址:北京,中国
项目类型:建筑设计、室内设计
项目状态:已完成
主持建筑师:赵楠
设计人:赵楠、张娜、侯泽利、戴盛国
设计开始:2018年03月
设计结束:2018年05月
施工开始:2018年07月
施工结束2018年11月
建筑面积:220平米
实际使用面积:180平米
深化设计及监理:雅思睿设计研究室
实施及施工:桉瑞塔建造实验室
摄影:朱文乔
视频:杨波

