美好心情 从一杯 咖 啡 COFFEE 开始
COFFEE-LIFE
/ 有生活 • 有态度 /
现如今,我们生活在都市之中眼望高楼林立、车水马龙,淹没在无形的电子信号之中。目标明确,讲究速度,追求效率,慌慌张张,匆匆忙忙时间一晃而过。仿佛在奋力生活的我们却来不及陪伴,来不及相识,来不及停下脚步欣赏沿途的风景,化身独立隐藏的自我,被钢筋水泥包裹,独立于世。
好的设计不仅是发现解决需求,更是对需求的良性引导,以及生活方式的引领,本案设计是针对这样的城市背景,对未来生活描绘出全新的向往。
品 TEXTURE 质
本案为绿地铂瑞公馆公寓公区设计,根据年轻的居住群体,以年轻态的喜好风格、生活方式为设计准则,将匆匆而过的大堂变为一道令人驻足的风景,立意为当代青年建立自在舒适、丰富活力的公寓社区。
设计师是观察者,从独特的角度旁观记录着生活;也是创造者,将设计理念投注到时代的潮流中,将镜头定位在现实的生活里,用丰富的设计语言在时代中赋予纯粹的情感,完美融合,引人思考。
原本功能普通无常的入户大堂以咖啡吧的方式呈现于众。空间采用现代极简的设计手法,整体空间开阔明亮,利用纵横交错的线条及不同质感层次丰富多变的灰白对比营造出年轻时尚的空间氛围,一抹黄色点亮空间活力。没有过分的渲染设计手法,没有塑造虚化的外表,宁静自在,舒适惬意,在抵家的瞬间咖啡的香气漫溢,满面扑来,心情得以放松。
REST AREA / 休息场所
设计师利用灰色不争的高级感营造超脱外界不断地喧嚣,宠辱不惊,宛若洗净铅华般淡然不争的空间氛围,空间以大面积的灰色作为基底,以色彩的力量塑造空间气质,沉稳轻柔,蕴含大千世界,将其化为平静。
一抹蓝色,仿若梵高的星空,毕加索的忧郁,克莱因的纯萃一一浮现眼前。忧郁而治愈,冷静、神秘、平和。而一抹亮丽的黄色如阳光一样和煦明亮,轻盈柔软,积极温暖,活力风情。强烈的冷暖对比碰撞点亮整个灰色空间的色彩,不规则的形状形象的替当代年轻的态度与个性发声,一个年轻自在的互动空间浑然天成。无需刻意,在这里遇见… …
BAR COUNTER / 吧台
“少即是多”,整体空间整齐开阔,没有繁杂的空间结构,过度的造型装饰,每一个设计点都是尤为重要的存在。以细腻的质感层次转化为多层次的设计语言,表达出丰富的设计情感,打造出开放式互动交流的绝佳场所,帮助一个个年轻的个体打开交流屏障,使愉悦的社交沟通窸窣平常。
为塑造青年热爱的空间,在处理空间及陈列的相互关系中,采用当代年轻态的主流审美,深刻地将现代主义精神贯彻其中,当精简到不能再精简的绝对境界,每一个看似简单的细节都源自于生活的智慧,散发艺术的魅力。承载着其蕴含的丰富内涵及美学态度,展现出对生活不同观念和憧憬的思考。
ELEVATOR ROOM / 电梯间
在这里,一杯咖啡,余香环绕 遇见好友,邂逅四季 意气相投,相谈甚欢 刻画出生活的模样 … …
设计精髓常常体现在所有的细微之处,不仅仅只在是空间关系,而是从每一个细微之处将舒适,柔软,细腻表现得淋漓尽致。每一处角落都是精选之下点亮空间的一抹色彩,简繁有序,节奏明晰,设计与审美的表达自如营构一体,实现个性化空间景象的演绎,满足不同生活的志趣追求。
ELEVATOR ROOM / 电梯间
FLOOR ELEVATOR ROOM / 楼层电梯间
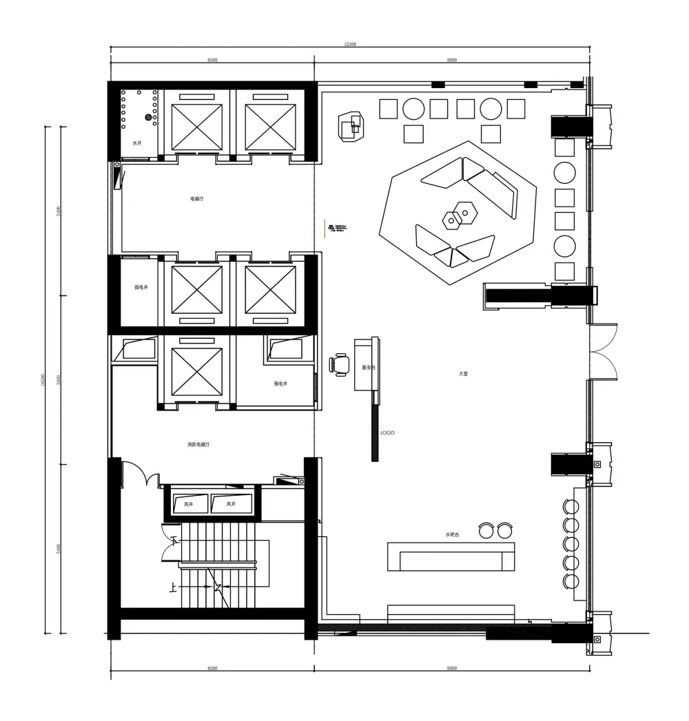
平面布置图 FLOOR PLAN
项目 概况 PRJECT OVERVIEW
项目名称:绿地铂瑞公馆 委托机构:绿地集团西北事业部 项目地址:陕西 咸阳 项目面积:220m² 完成时间:2020年11月 室内设计:上海贝素建筑室内设计有限公司 软装陈设:厦门远景居装饰设计有限公司 摄 影::LSSP-罗生制片

