乌克兰敖德萨——平面与现代:Kult工作室在不断增长的市场中加强了致力于男性修饰的空间的审美转变。乌克兰室内设计和建筑事务所Sivak+Partners被简要介绍给敖德萨中心理发店一个独特的空间处理,可以容纳未来的扩展。
至关重要的是,这个概念要避免所有的刻板印象:没有发型海报、凌乱的展示或裸露的砖墙。首席建筑师西瓦克(Dmitriy Sivak)说,过去七年里,阁楼风格在乌克兰得到了广泛传播。“咖啡馆、餐馆、办公室和酒店开始变得相似,理发店也开始相互模仿。客户希望室内设计能给人一种阳刚的感觉,但又不像如今城市里流行的陈词滥调。”
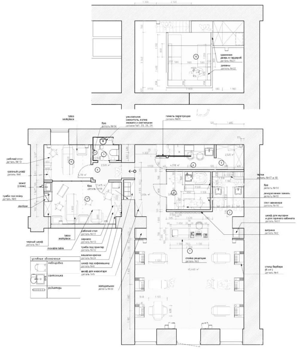
Sivak+Partners面临一些挑战。首先,该项目必须在短短3个月内从概念到创作。而且,由于该空间位于该市地标德里巴索夫斯卡亚街(Deribasovskaya Street)附近的一栋老建筑内,也有后勤方面的考虑。
设计师必须在材料选择上有策略:例如,现有的木地板不能支撑任何沉重的材料——甚至瓷砖也不能。但是,由于时间紧迫,解决方案也必须相对简单。在对几十个样品进行分类后,研究小组在装饰灰泥上着陆,灰泥覆盖了室内的灰色色调。同时,头顶的几何照明突出了不锈钢和大理石灯具。
这一做法弥补了原有的室内空间缺乏放松空间的缺陷,设计了一个夹层,也容纳了一个额外的技术房间。理发店最终将包括一个纹身店和一个男女通用的足疗区。
我们试图从概念中去掉所有不必要的细节,创造纯粹的极简主义,并将焦点从室内转移到工作人员身上,因为真正的专业人士在那里工作。
planner:Cyrill Verbych
Photo:Anton Garets
Time:2019

