一处在成都的家庭第二居所,身在广州的业主委托ace团队为其打造一处轻松安静的家庭休憩团聚的居所。轻盈与沉稳的联结是居者气质的体现,浪漫复古的空间曲调在其中温柔延展。
在本案中,空间的体块与楼层之间,试图寻找一种趣味的自由组合,在本体内构建人的自由尺度。一个个随处休憩、静处的角落,如同心灵的乐园,它们是记忆的片段,是时间的影像,也是生活的剪影。
在空间尺度中,设计师希望塑造一些可开可合的向内精神领地,为使用者创建一个宁静、舒适的场所,以居者的身体感受为核心,建立人与空间、人与人之间的情感联系。
Connection and interaction
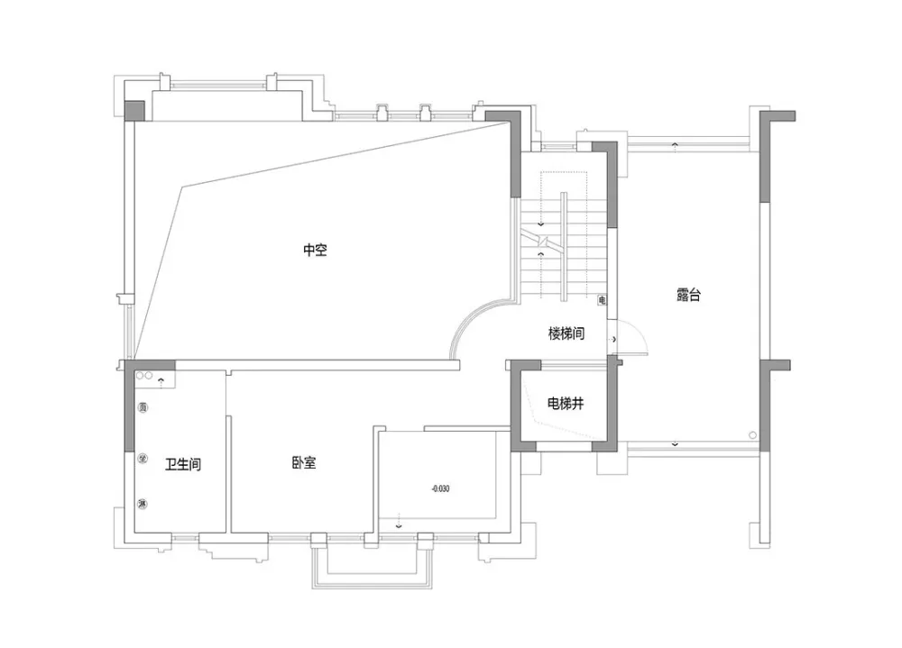
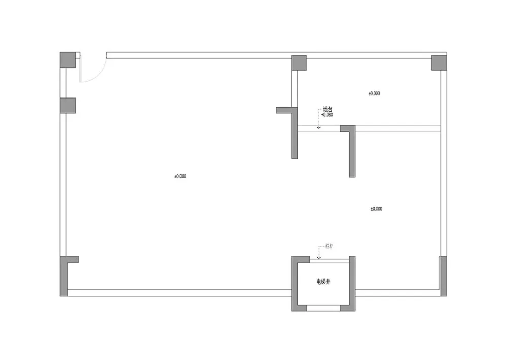
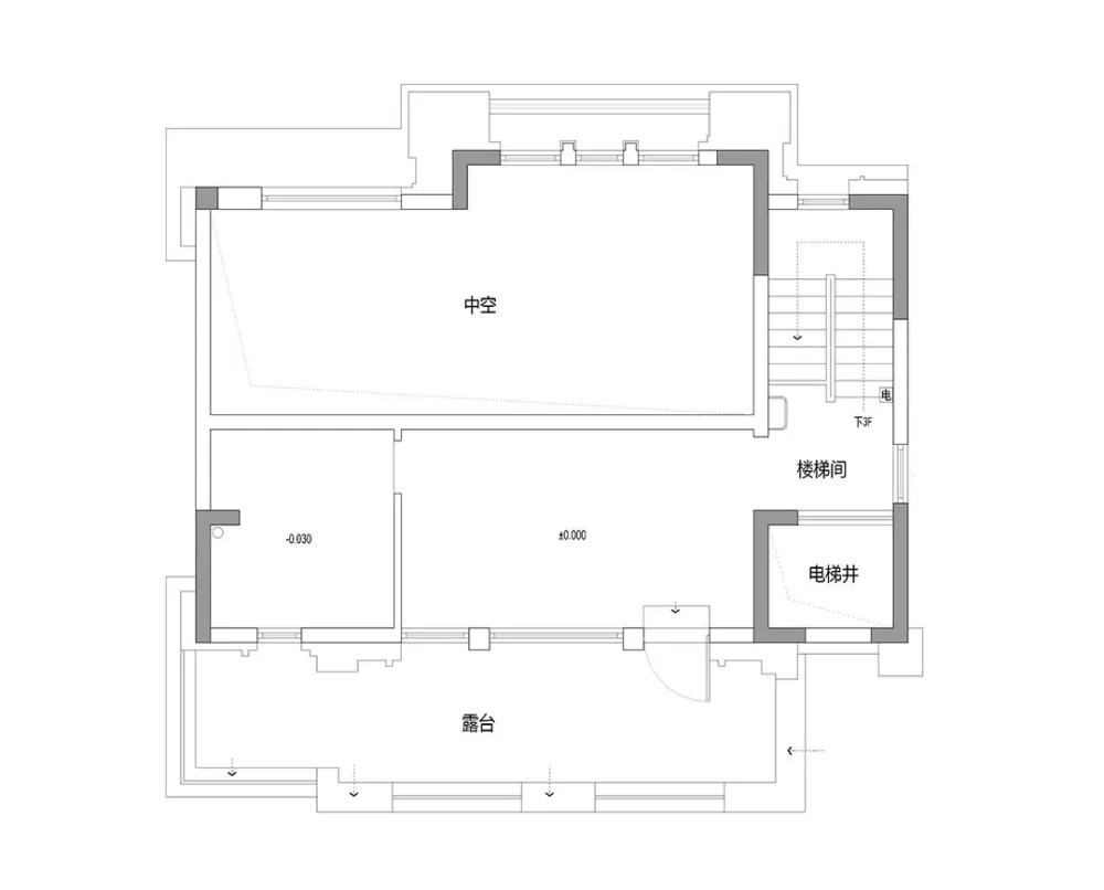
项目原本是一个五层别墅,一层到三层之间及负一层和一层之间原本都是空的框架。
设计师根据业主的需求,重新梳理了空间结构,还增添了夹层和挑高层,创建了楼层之间、空间之间的互动窗口,为建筑增加了可互动的设计视角。
楼梯作为一个关系的联结体,它不止是空间格局、楼层之间的连接,也是家庭内部关系的互动。
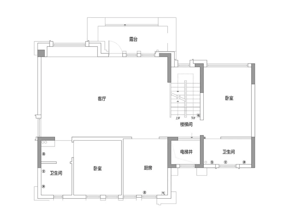
一二层都为公共空间,整体设计体现了动静相宜的思辨,一层主要为餐厨空间,营造自由自主的社交空间,二层是主客厅区域,划分为会客厅与茶区,静谧的休闲,抒写隐逸氛围。
在素净的空间中,木制饰面的拼贴在空间嵌入一个别致的开放盒子空间
,让家成为快乐的源泉。
这个有着独特肌理的休闲空间,为简洁的大空间中增加一道舒适的暖调,成为空间优雅的独特构成。
Create interesting perspectives
在本案设计中,设计师打破了一些常规的空间布局,灵活巧妙创建了一些趣味的视角,消除了常规的方正格局的局限性,以此丰富了人与空间的关系互动。
在一楼入口处放置了一个方形的体块,构成了一个功能空间,用于入门换鞋和储存一些小物件。三层会客厅与二层客厅的上方相连。使得两个空间相互独立却又建立了联系。
设计师根据各区域的不同属性进行格局划分,以个性界定这些不同的区域,在增加空间的趣味度之外,每个空间中的风格与变化又有着自然的承接与连续性,不同楼层之间是自由通透而不失和谐的整体。
Nature and Memory
在空间中采用了许多带有记忆的物件,这些记忆而延伸至空间,使生活空间内部描绘出具有情感温度的图像。
这是一份来自设计对生活的理解与诠释,并向居者传递一份舒适、平静的心境,令人放松、愉悦。
于干净简练的空间之中,这种自然色调的微妙变化将空间的柔性点亮,是静谧空间盎然的生机与美,而空间中不时出现的暗红,则让原本素雅的空间增添一抹深邃的质感,木的润,白的净与红的深沉为整个空间环境带来富有层次的体验。
空间营造着住宅自身的气质,当光线在空间的沉稳中落成一份明亮,便是对这份自然气质相辅相成的滋养。
业主与家人生活的点滴散落于空间中与温暖的光相融,创造了空间中流淌的时间,于一片静美的时光漫溯之中沉淀出美与柔的力量。
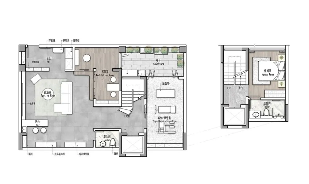
△负一层、新建夹层平面图
项目地点 | 中国 成都
项目面积 | 500㎡
设计单位 | 成都ACE谢辉室内设计
服务方式 | 设计、施工、主材代购、软装设计及落地
项目管理 | 王琦琅、杨帅
设计团队 | 谢辉、王琦琅、杨帅、赵素冰
设计时间 | 2019.05
完工时间 | 2020.08
项目摄影 | 视方摄影-翱翔
部分品牌 | arper、Minotti、Poltrona Frau、Natuzzi Italia、Foscarini、flos、Hermes、-Tradition、Stellar Works、 U 、Cucine、Kohler、GROHE、TOTO、诺玛洛、千树家具
ACE设计总监及创始人
ACE DESIGN由谢辉女士于2010年成立,致力于打造有居住者自身气质的高品质生活空间.19年的住宅设计经验让ACE在思考和实践中打磨形成了“健康住宅”的理念,“健康,优雅,温暖”是ACE赋予空间的气质;内部践行 “一切以结果和客户的满意度为导向”的价值观,并以此打造了一套完善的服务流程体系;ACE认为设计源于日常的积累和对生活的感悟,设计创造价值,服务决定落地,而正确的行业价值观与兴趣和热爱会让ACE在这条路上走的更远,让更多的业主享受到设计的价值!
ACE DESIGN was established in 2010 by Ms. Hui Xie , dedicated to creating a high-quality living space with the occupants own temperament. ACE to burnish and form the concept of healthy housing in its thinking and practice. Health,Elegance, Warmth is the temperament that ACE gives to the space; ACE believes that the design comes from daily accumulation and perception of life, design creates value, and service determines the landing.The correct industry values、interests and love will make ACE go further on this road and allow more owners to enjoy the value of design!

