孩子的梦境:2019年5月28日Wutopia Lab在大连设计的fairyland森云间亲子餐厅正式运行。森云间是百造与fairyland联合推出的共同品牌。所以在餐厅可以看到百造的课程和教具,业主希望寓教于乐,让孩子们在游戏中学到知识,这基本是中国第一家学习型的亲子餐厅了。
女儿
有一天早上堂堂用绘画描绘她在白云里自由玩耍的梦境。我想把这个美好的梦境建造成真实所在,让更多的孩子们可以一起分享这美好事物,为他们打造一个仙境。Fairyland森云间亲子餐厅的外观就是层层涟漪。我们把铝板按不同的孔径和冲孔率打孔形成一个一个涟漪的,这些涟漪相互交织在一起,环环相扣,这是梦境的真实面目。孩子们好奇而欢快,雀跃地穿过涟漪进入一个不真实但又很真实的世界。
前厅是光之森林围合的圆形空间,森林由1000根亚克力圆管组成的,它能模拟直射的阳光穿过茂密的树叶形成的光线,产生朦朦胧胧的抽象的森林感受。通过镜面墙的反射,让孩子们在丰富多姿光之森林中漫步。
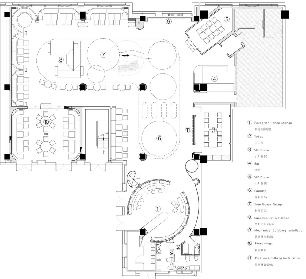
仙境中心是白云乡,这就是孩子们的梦想之地。孩子们在亚克力的白云海洋中自由玩耍嬉戏,或在天空,或在水上,或在地上。白云也藏着红色树屋,小木屋,滑滑梯,海洋球池和小绵羊们。白云乡的中心是云海里的旋转木马。围绕着白云乡是灰色就餐区。
金色城堡
白云乡转角正对它的是金色城堡。辉煌的城堡,仿佛一切都从沉寂中复苏了。华丽的烛台,摇曳的烛火,温暖的壁炉,银光闪闪的餐具。放声大笑,享受美食。此外在一个不起眼的小角落。隐藏一个白色美术馆。和欢快的城堡有一些不一样,这里是静谧隐私的用餐,轻声浅笑。
Shall we dance?
孩子们,你的人生不会无人见证,因为我们会为你见证。在仙境里,每个孩子都是主角,我们为他们打造了一个舞台。红色的天鹅绒帷幕缓缓拉开,我们仿佛看到一个古老的回忆,灯泡招牌一闪一闪,古旧的木地板,漂亮壁纸和水晶花枝灯。涟漪在远处也呼应地一闪一闪,未来与过去直接交汇在一起,用餐和表演都可以,孩子们,the stage is yours!
白日梦:棉花糖/宇宙飞行
卫生间是孩子们的白日梦。女孩的白日梦中云片灯和镜子就是最爱的棉花糖。男孩的白日梦是宇航员与星空为伴探索未知。
项目名称:Lolly-Laputan儿童餐厅
设计方:Wutopia Lab
联系邮箱:project1@wutopia.work
建成时间: 2019年5月
主持建筑师: 闵而尼,俞挺
项目建筑师: 濮圣睿
设计团队:李明帅,刘嵩,蒋雪琴
项目地址:大连,中国
建筑面积:580㎡
摄影版权:CreatAR Images
设计咨询:上瑞元筑设计顾问有限公司
灯光顾问:无锡市涣承照明电器有限公司
业主:Fairyland森云间亲子餐厅、百造学堂

