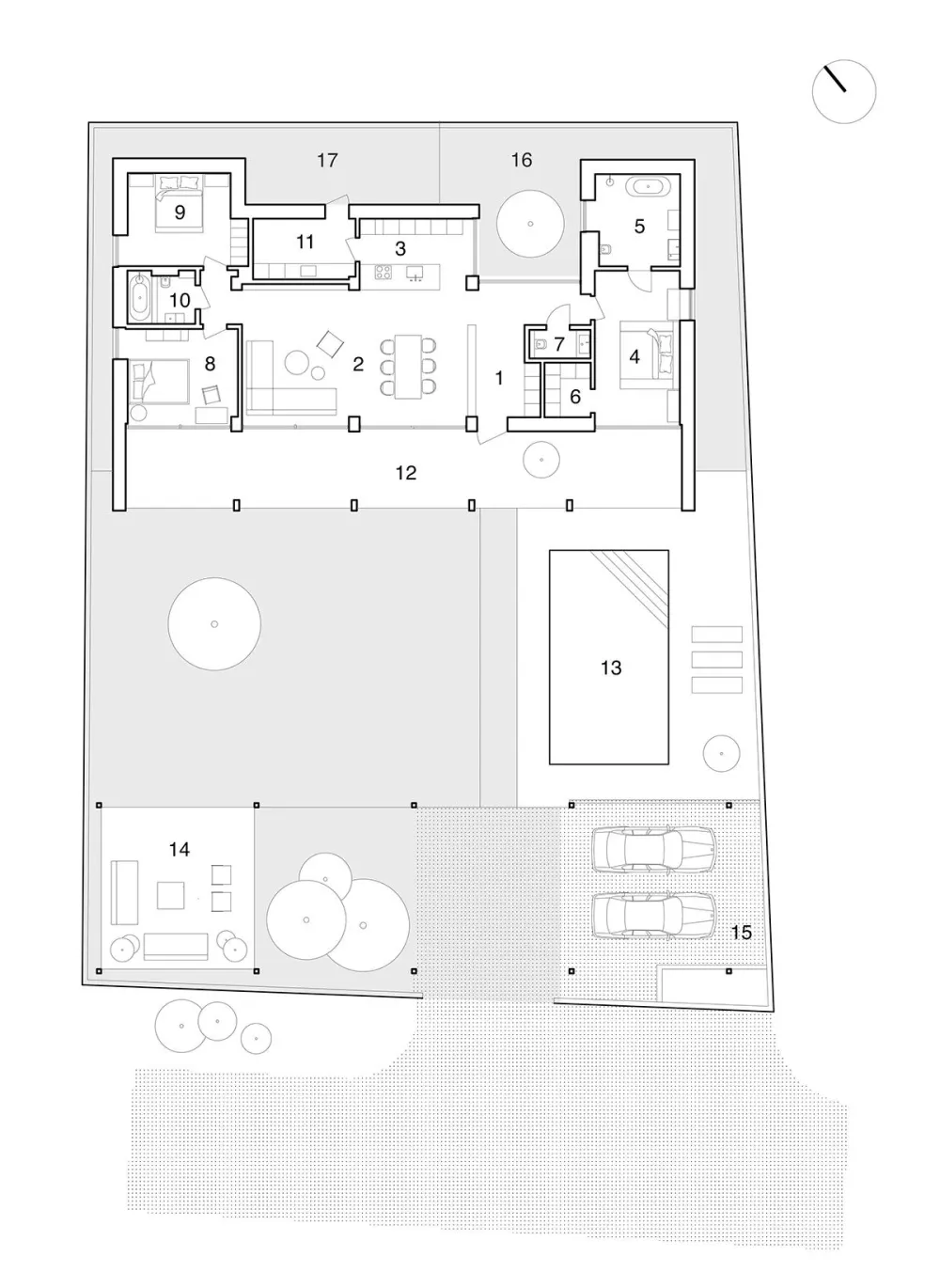
Serhii Hotvianskyi新作,这所房子位于不同大小的建筑物之间,场地800㎡左右。房主想要一间三居室的房子,里面有一个停车场,一个公用设施,一个室外游泳池,一个带壁炉的客厅和一个大露台。
为了容纳许多不同功能的区域,而不是使场地杂乱无章,把所有重要房间的窗户都朝南,把房子移到了场地的边界。这样做的问题是房子被栅栏的三侧挤压,这意味着窗户只能在一侧。为了解决这个问题,在房子后面安装了一个小天井,它的窗户照亮了走廊、厨房和浴室。在我们的首次家庭旅行中,巨大的落地窗将高耸的豪华客厅的黑暗墙壁打破了。丰富的木纹凸显了房间的垂直比例,色彩匹配的窗帘在边框周围柔和地落下。现代沙发和宽大的矩形茶几填充了大面积的灰色地毯,在开放式布局中营造出一个舒适的小岛。
一棵盆景树生长在庭院的中央,当你走进屋子的时候,它会立刻吸引你的眼球。在站点的两个主要部分(房屋和站点前面的框架)之间,有一块草坪和一个小型室外游泳池。
这房子有一个不寻常的屋顶,形状为字母V。
在北侧,屋顶升起并打开天空视野,在南侧,由雨和阳光形成顶篷,并朝着场地开放。
这种设计可以创建一个充满光线的空间,但同时又使居民躲避炎热的夏日阳光。
房子的中心是一间工作室,包括起居室,餐厅和可通往露台的走廊。
工作室上方是中央横梁,其中包含空调管道。厨房位于一个小的壁龛,由天井和技术室组成,从厨房和街道都可以进入。
在厨房和杂物室,天花板下的后墙外面有一扇窗户。
为了防止内墙挡住窗户,
没有让它们到达天花板,而是在两者之间的间隙上了玻璃。
看电视的时候,你可以看到天空。
室内的配色方案是基于自然材料的颜色组合:
木头和石头以及几种黑色的点缀。
主卧室的浴室有高高的天花板,这样就可以在这里安装两扇窗户: 一扇在东侧,另一扇可以俯瞰西侧的天井。
,它可以遮挡来自窗户的光线,在墙上创造一个光影的动态图像。
卧室和浴室之间的墙没有延伸到天花板,让东方的阳光通过墙顶的玻璃进入卧室。
如果需要遮挡阳光,天花板下安装了卷帘。
儿童房屋包括两间卧室和一间浴室。降低儿童浴室的天花板,以容纳空调的室内机。其中一间儿童房位于工作室的轴线上,面朝南。这是一个六岁女孩的房间,这是房子里唯一出现颜色的房间。
第三间卧室为客卧,但是在建造房屋时,另一个孩子在家庭中出生,这个房间变成了托儿所。
因此,在该儿童房的设计中将找不到与儿童房相关的元素。


现在这个浮躁的世界,能细心整理一些东西发上来的越来越少了。要么就是敷衍的图片,要么就是枯燥的文字。之后就是AI生成的预制菜类的打包便捷快餐了。感谢楼主的分享,让我能在大智能无人化来临之前,看到同类发出的项目。有幸与您互动,缘分
很干净,这种简约风真不错