Van Staeyen Interieur Architecten事务所在安特卫普的一处房屋翻新中使用了内建家具和明亮的颜色,创造了乐趣和功能。工作室创始人Johan Van Staeyen最初被要求重新考虑房子的顶层;为了避免孩子们之间的争吵,这家人给了他们同样大小的房间。
Van Staeyen说:“通过令人费解、改造、增加储物空间、改造浴室和安装中央操场,我们成功了。”但是,通过这样做,房子的所有违约都变得清晰起来。走廊、中心等地方都不适合这个家庭想要的生活方式。
范斯塔延(Van Staeyen)的任务是在整个联排别墅中采用类似的方法,他决定尽可能保留在上次翻修中保留下来的许多原有功能,包括天花板造型和镶木地板。厕所——包括一个覆盖着层压黄铜的小空间——和带有层压白色门面的内置储物柜被添加在主要生活区之间的通道中。
建筑师解释说:“几乎整个房子都被震动了。”“地板被拆除,墙壁被替换,支撑墙也被拆除。因此,大窗户被更换和扩大。
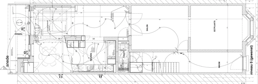
一楼包括一个带有内置存储设备的门厅,以及一个连接的客厅和沙龙。这一层的后面部分是最彻底的重新配置,移除支撑墙,打开空间,创建一条通往花园的更清晰的路径。
后面的部分包括一个小厕所,一个厨房和餐厅。墙壁上的造型通过添加更多的细节来强调,同时绿色漆和配套的PU地板被添加到餐厅区域。“它和橡木地板很相配,”范·斯塔耶恩说。“它让食物看起来更美味,给居民们带来了大大的微笑。”
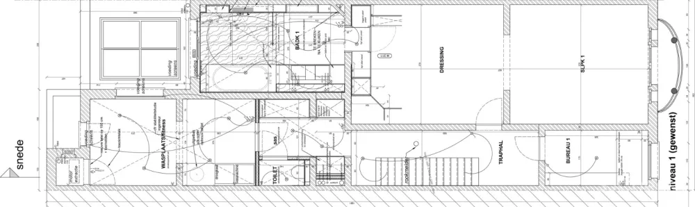
一楼有一间小办公室和一间主卧室,内有一间大更衣室和一间配套的浴室,内有漆粉色的储物间、橡木拼花地板,以及可丽安(Corian)和大理石表面。另外还有独立的卫生间、公用设施和洗衣区。最后,顶层还有一间小办公室和三间儿童卧室,门是亮黄色的,储物间是白色层叠的。它们被安排在一个大游戏室周围。
这一层的浴室铺着白色的方形瓷砖,有几何形状的镜子、绿色的水龙头和门上的绿色框架。“房子变得有趣多了,因为生活应该是有趣的,”Van Staeyen说,“这是一个好心情开始和结束一天的地方……甚至连洗手间的门看起来都像是通往天堂的金门。”
Van Staeyen的作品以大胆的块状色彩为代表。其他的例子还包括安特卫普大教堂前教堂内的咖啡吧,服务区内有孔雀蓝色的墙壁。
设计:Van Staeyen
时间:2019年
位置:安特卫普,比利时

