人的想象力可以使粗糙的结构语言
形式的诗意就象绿叶与树木,
花朵与植物,肌肉与骨头一样不可缺少。
设计应考虑人的需求和情感,应与自然一样地去创造,只有当一切都是局部对整体如同整体对局部一样时,才能更好地从建筑本身去诠释人、空间和文化的关系。
PURE DESIGN一直善于从建筑本身中寻求解答的方法。龙湖揽境销售中心,似自然存在一样,与基地的自然环境相协调,借以山林、层峦、民族等人文,呈现“形式的诗意”。沉浸式的布局手法,克制又艺术的现代语言,与当地多民族原生性及善礼文化等形成对话,构思并创造了新空间趣味。
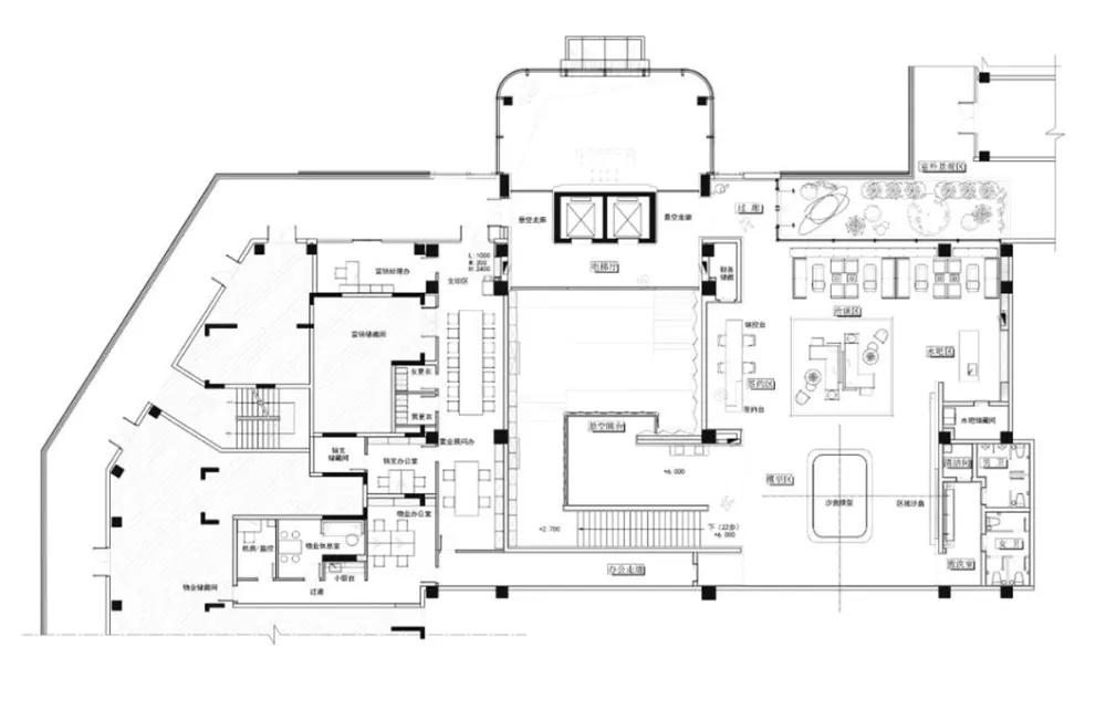
入口建筑是一个玻璃盒子,接待前台置前,呈现以礼式,无论形式还是体量都占据视觉焦点的背景墙,设计最终体现到空间立面造型上。
不同体量的三角形元素,提取自当地苗族图腾,经统一简化提炼后组成现代符号与语言,为接待前厅预演了一场现代又人文的步入式体验。
建筑之所以被称为科学性艺术,是因为其令人着迷的结构,呈现空间关系、呈现思想,这是一种无形而有力的设计语言。本案突破商业固化思维,阶梯文化空间的形态就是一种大胆的尝试。
阶梯文化空间提供一个探寻了解苗族人文的空间场景,彰显天然气息和艺术魅力。浅色的橡木色氛围,竖向建筑序列感的强化,突出下沉式的设计的同时,也在增添空间的神秘感。
在这样一个阶梯空间中,下沉式的沉浸式体验及大量书架与书籍的元素叠加,与城市、山林、树木、天空形成自然的对话。
纯粹单一的立面造型,特别在二层空间增设了部分挑台空间,与一层空间互为联系。人在空间行走,形式的诗意激发人的探索欲,随着视角的推移,与人的参演视角建立情感,制造空间惊喜。
径直上二层空间,经过廊道,户外花园建立起了进入室内的第一道风景,并藉由玻璃幕墙作为介质,将自然生态的场景引入室内,整个空间洋溢着自然的气息。
整个内部,眼及之处,平面的展开与空间的情绪,都与花园内外混为一体。如同人的生命一样,一处花园几乎成为了室内的心脏地,感悟蕴藏在四季之中的神秘力量,体会自然固有的旋律和节奏。
沙盘区与洽谈区,设计借丰富的结构与细节,糅合光影呈现空间现代的本质。错落有致的格子天花自成主角,使空间向外伸展,上下穿插,从而产生新的空间效果。
整个二层空间,净心般的平行式线条有利于采光,与立面穿透式美学形成统一,有光进来的地方,为空间增添了更为生动的生命力。
项目名称:贵阳龙湖揽镜售楼处
设计材料:斯铂灰、蒙古黑、一品白衫、星白、木饰面、深色防火板、蜡染壁毯等
深朴悦设计(PURE DESIGN)(原朴悦设计),总部设于深圳,上海设立分公司。专注于精品室内设计,为国内外高端客户提供一体化的室内设计及软装定制服务,业务涉及酒店会所、营销中心、豪华别墅、精装样板间等设计领域。
经过几年来的发展,公司已拥有完善、先进的合伙人制度及设计管理制度,凭借稳定的团队、专业的执行,将设计创意与项目实践相结合,为客户提供高品质的服务保障。公司一直放眼国际视野、立足中国本土,在保持自我理念的同时,严谨、智慧地成就客户。目前已与华润、保利、万科、中海、龙湖,新希望等一线开发商达成长期、稳定的合作关系。


好看