“正是诗意首先使人进入大地,使人属于大地,并因此使人进入居住。”
It is poetry that first makes man enter the earth, makes man belong to the earth, and therefore makes man enter to dwell.
— Martin Heidegger
项目位于古老文明的发祥地中原郑州,但实属交通便利的新兴空港片区,距离新郑城市中心30分钟车程、郑州主城50分钟车程。未来片区规划城际交通网发达,是未来5-10年新兴人居潜力价值地块。矩阵纵横作为郑州旭辉空港项目的室内设计方,承东方的静谧空灵,启当代的简约利落,以隽永传承城市文明的魅力,用当代设计手法来诠释这座城市未来人居生活永不停息的创造力。
The project is located in zhengzhou, the birthplace of ancient civilization, but it is a new airport area with convenient transportation. It is 30 minutes drive from the city center of Xinzheng and 50 minutes drive from the main city of Zhengzhou. The planned intercity transportation network in the future area is developed, which is the value parcel of the potential of new human settlements in the next 5-10 years. As the interior designer of Zhengzhou Xuhui Airport project, matrix vertical and horizontal inherits the quiet and empty spirit of the East, inspires the simplicity and cleanness of the contemporary era, inherits the charm of urban civilization with meaningful inheritance, and interpts the never-ending creativity of the citys future human settlement life with contemporary design techniques.
秉承面向未来人居的设计,我们从北欧神话中的“彩虹桥”中启发灵感,设计以旖旎绚丽的“彩虹”为主要元素,不仅是自然的现象、西方的神话、也象征空间从现实抵达未来的“传承纽带”。在古都气息的映衬下,依托着自然的亲和在缝隙中寻求突破,延续着城市不灭的创造力与想象力轨迹奔涌向着现代的幕下。这样的城市气质启迪着室内设计在空间中用设计的语汇谱写城市中的自然与人文这部最值得吟唱的幻想诗章。
Adhering to the future of human settlements design, we from the Nordic mythology in the rainbow bridge inspiration, the design to the beautiful and gorgeous rainbow as the main element, not only the natural phenomenon, the myth of the West, but also a symbol of space from reality to the future inheritance link. Under the background of the atmosphere of ancient capital, relying on the affinity of nature to seek breakthrough in the gap, continuing the citys eternal creativity and imagination track surging towards the modern curtain. Such urban temperament inspires interior design to compose the most worthy fantasy poem of nature and humanity in the city with the language of design in the space.
面向丰富的色彩,视觉传递给大脑更多元的感受。彩色幻彩玻璃在日光的穿透下给空间带来丰富的色彩,纯粹干净的白色让彩色在空间内的展示发挥到最大限度又不繁琐,展现光影流转下的彩虹国度。在郑州航空港区,一片未来城市规划发展中的新兴之地,旭辉将社区融合的概念带入……
In the face of rich color, vision transmits more diverse feelings to the brain. The colored magic glass brings rich colors to the space under the penetration of sunlight. The pure and clean white makes the color display in the space play to the maximum without triplex, showing the rainbow nation under the light and shadow flow. In Zhengzhou Air Port area, a new place for future urban planning and development, Xuhui brings the concept of community integration into…
以“彩虹”为诗,萦绕在各主要空间的飘带状装置,是设计师以光为笔、梦幻为墨,用最纯粹的元素,通过大量立体构成,表达“传承绵延”的空间礼序,寄情一座华夏文明发源地的记忆艺术馆。除却“彩虹”元素外,同时选取木色与白色作为补充色,自然的“木”与东方的“留白”不仅是一种令人放松的符号,在它安静时候去触摸感受到那来自天地岁月留下的纹理,实质上是岁月变迁留下的无声脉络,这也是城市文脉的一种诉说。当光影交织于表面,疏落的缝隙间、树影的灵动间都流传着关于这座城市的故事一个个。
With rainbow as the poem, the floating belt installation lingering in the main space is the purest element of the designer, with light as the pen and dream as the ink, through a large number of three-dimensional composition, to expss the spatial sequence of inheritance and continuity, to convey the feeling of a memory art museum in the birthplace of The Chinese summer civilization. Element, but the rainbow and choose color and white as a supplement, the nature of the wood and white space of the east is not only a relaxing symbols, and touch feel that come from the heavens and the earth when it is quiet texture of years left, left silent context is essentially the years change, this is also a telling of the urban context. When light and shadow interweave on the surface, the story about this city is spad among the gaps and trees.
接待前厅的设计从初始就以张弛有度的“彩虹”桥迎接八方来客,以旖旎绚丽的“虹”辉映整面的书墙,打造一个飘散灵动的瞬间,令人如置奇幻之境。洽谈区大面积玻璃幕墙引入充裕的自然光,让室内外皆能通览整个空间,净且静。临窗一侧放置白色沙发组合,错落有致的摆放方式引导光线的变换,为室内增加一道别样的清新与自然。另一侧则是沙盘与LED展示墙的有机结合,在绵延的“彩虹”下,萦绕着开启未来的神奇氛围。彩虹版的格栅是展示区与水吧的交界点,一组悬垂的霓虹艺术装置球让整个空间如落九天银河,在不同的星球间漫步观赏。咖啡体验区空间以自然色为主基调辅以少许的彩虹色,开放性的空间氛围加深人与人之间的内在联系,让一切都变得简单明了。
Reception hall design from the initial relaxation of the degree of rainbow bridge to meet visitors from all directions, with the charming gorgeous rainbow reflect the whole book wall, to create a flowing clever moment, such as buy a fantasy of the world. The large glass curtain wall of the negotiation area introduces abundant natural light, allowing both inside and outside to have a full view of the whole space, clean and quiet. Face a window a side places combination of white sofa, strewn at random the transformation that the way that have send guides the light, for indoor the pure and fresh that adds another kind and nature. On the other side is the organic combination of sand table and LED display wall, under the continuous rainbow, lingering magic atmosphere to open the future. The rainbow version of the grille is the junction point between the exhibition area and the water bar. A group of dangling neon art installation balls allow the whole space to wander among different planets like the Milky Way. The space in the coffee experience area is based on natural color and supplemented by a little rainbow color. The open space atmosphere deepens the internal connection between people and makes everything simple and clear.
整个项目的软装设计理念以互动性、艺术性和记忆性为设计主导思想,从立意到空间装置、家具、艺术品运用,都全力打造一处属于未来年轻人的居住幻梦,也是当下古都的新打卡地。装置表现光与投影的轨迹,叠影重合,无论是旭辉企业IP小熊的置入还是入口处的文化买手店理念,都是设计为企业所创造的全新艺术价值的呈现。
The soft decoration design concept of the whole project takes interaction, artistry and memory as the main design ideas. From conception to the application of space installation, furniture and art works, it tries its best to create a residential dream belonging to the future young people, and it is also a new place for the current ancient capital to play CARDS. The installation shows the track of light and projection and overlapped shadows. Both the IP Bear placement of Xuhui enterprise and the concept of cultural buyers store at the entrance are the psentation of the brand new artistic value created by the design for the enterprise.
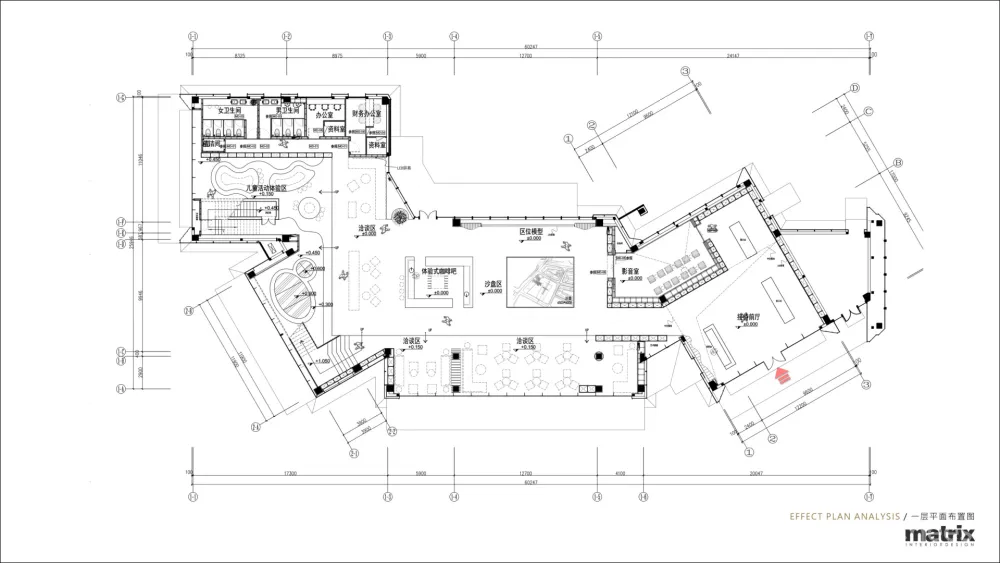
F1s floor plan
项目名称 | 郑州旭辉空港时代售楼处
Project name | zhengzhou xuhui airport times sales office
硬装设计 | 矩阵纵横
| matrix design is hard mounted
软装设计 | 矩阵鸣翠
Soft installation design | matrix ming-cui
项目性质 | 销售中心
完成时间 | 2020年09月
Complication Date | September 2020

