西班牙语“Els Terrats”意为“屋顶”,也有延伸“Terrace”(阳台)的意味。在这不超过60平米的小空间内,却有着几乎一样大的前后阳台;前阳台可俯视优美的庭园,后阳台更能远眺巴塞罗那圣山蒙特塞拉特(La Mussara)。完工于 20 世纪的建筑主体,至今依然保持良好;这窄小的顶楼小公寓过去是作为门房的居所,提供给管理员或清洁工休憩使用,直到门房过世,这空间才返还小区,并成为楼下住户的使用空间。而对屋主来说,这间小公寓不只是用来扩充居住范畴,更是打造一个独立空间的绝佳机会。


设计团队LoCa Studio明确指出了空间的用途,除了要独立于原有住家之外,更要能成为阅读、午睡、举办派对,还能享受大自然的一处世外桃源。因此在设计之初,设计团队便决定打开前后阳台,让西班牙一年四季的蓝天与阳光,伴随着自然山景和庭院景致,拥抱这处遗世独立的绝佳空间。


打开大门再串连阳台,成为设计的第一步。前后门设置了大型落地窗户,确保引进充足的自然光;阳台与室内的楼地板,也特地拿掉落差、设计成相同的高度,消弭室内外的明确界线,最后更以相同的材质铺设路面范围,并以少量的墙减少视觉阻碍。让前阳台、室内、后阳台一路连通,眼睛能毫无阻碍地看「穿」前后绿意。木作的厚实感与清新的白色成为空间的主色系,营造和缓自然的度假气息,让置身其中的人们能自在的享受生活与自然。


整体的设计保有原始建筑结构,以木作和石膏作为主材质,搭配特色铁件、磁砖与布料,注入个性与柔软的质地。特别的是,设计师特地保留庭院的围墙,却打开入口处的天花板,设计成露天式淋浴间,让屋主能自在地沐浴在天幕下,同时让眼睛浸润在绿意满满的山峦庭园中,打造出独一无二的渡假小屋,座落在这车水马龙的水泥丛林中。不管是阅读、小憩,或是邀请三五好友 Party 聚会,这幢楼顶公寓无疑是都市里的一方美丽净土。





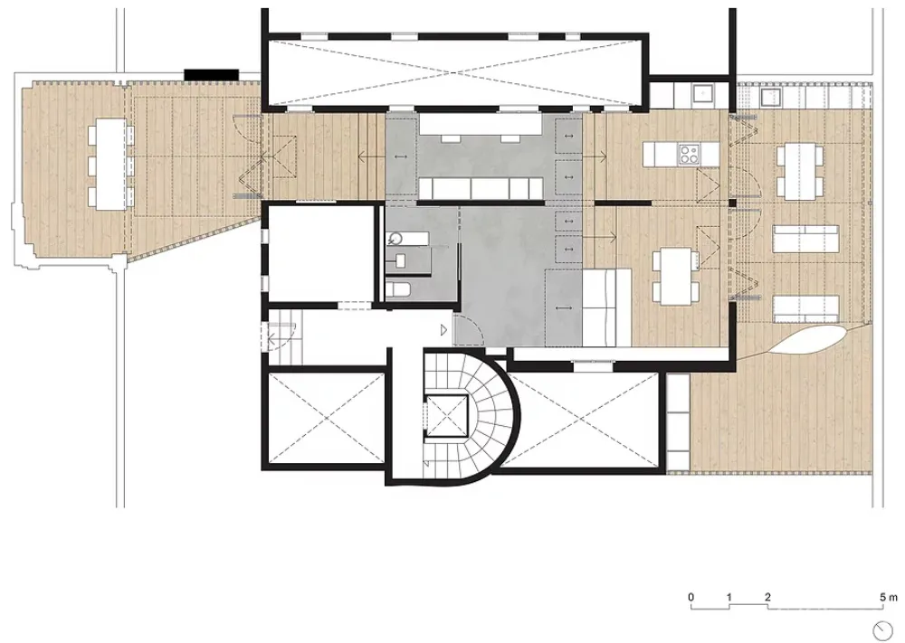
∇ 平面图 plan

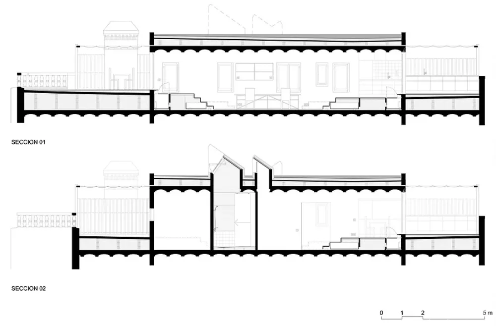
∇ 剖面图 section

主要项目信息
项目名称:ELS TERRATS
项目地点:西班牙巴塞罗那
项目类型:住宅空间/顶楼公寓
项目面积:60+60㎡
完成时间:2018
设计公司:LoCa Studio
合作者:Maria Lucia Cicero & Aina Alemany
摄影: Pol Viladoms

