近期3个不错的最新民宿设计案例
01-稻田里的极简民宿 / 千墨民宿
02.七十年代旧石灰厂,改造成极简民宿 / 风吟谷民宿
03.一栋农村民宅改造成精品民宿 / 迪士尼睡眠研究所民宿
千墨(HOUSE OF MO)位于上海浦东川沙新镇,临近迪士尼度假区,周边建筑多为上世纪七八十年代所建,几经变迁,整个镇子呈现混乱与无序的状态。
第一次勘察场地,门前巨大的稻田占据了整个视野,田边水杉的竖向线条与稻田所形成的几何感呈现出塞尚般的画面。建筑所占据的独特地理位置给这个场地提供了一个很好的景观支撑。 原建筑为4幢上世纪80现代居民楼,砖体预制板结构,外加东西各一幢两层瓦房,原有的宅基地限定出了建筑的红线范围,也使整个建筑边界框定在了长条形的体积内。
设计之初,希望最终矗立在稻田尽头的不单单只是个民宿,而是带有某种精神性感知的建筑物。因此摒弃了传统民宿的固有概念,选用带有凝聚性力量的黑色作为建筑的主基调,极简的建筑形态与周边混乱的建筑肌理形成对立美学,以守望者的姿态出现在稻田尽头,打开一种全新的日常体验。
▼简洁的黑色建筑立于稻田之上
考虑到原有建筑结构的脆弱性和混乱的表皮肌理,决定从建造这一思考逻辑出发,对建筑进行由结构至形体的整体改建。强化结构保证建筑稳定性,简化形体,以纯粹回应眼前的这片稻田。
▼建筑由简洁的体块组成
作为主体的长条形建筑体,在4m*9m的开间模度下,强化地基,增加钢筋混凝土立柱作为结构支撑,同时依据南北方位界定出辅助空间与使用空间两大区域,将房间按4m的柱间距模度在南面依次排开,给入住者提供最佳的景观支持。
▼玻璃立面提供良好的景观视角
餐厅部分沿用整体的黑色基调,在8m*8m的建筑红线内,利用对角拉出整个屋面的受力结构体,使整个屋面呈现悬浮感,斜面的处理也弱化了由于尺度限制所带来的空间局促感,在视觉上形成多维度的空间纵深感。
将辅助空间作为整个建筑的通道路径,串联起各个功能区,受制于场地条件,通道呈现狭长的形态,设计上,以纯白色柔和光线不足带来的幽闭感,二层部分使用了挑高处理,增加空间的层次,顶面狭长的天窗将自然光线引入通道,给行走的路径带来一份不确定的惊喜。
作为主体的住宿空间,采用模块化设计方式,在节约成本的同时方便施工管理,17个房间共分5个模块处理,用极简的手法与建筑形成统一关系。
▼落地窗前的浴缸可以欣赏室外全景
项目名称:千墨·(HOUSE OF MO) 设计公司:偏离设计 项目摄影:邵炜亮 设计撰文:小岛
七十年代旧石灰厂,改造成极简民宿
关于风吟谷民宿,它的故事要从尺镀团队第一次驱车前往岳麓区莲花镇说起。第一眼看到它所处的场地状况与建筑的原始形态时候,惊喜的同时亦伴随着压力。惊喜是因为场地视野开阔,周边环绕着天然水塘与茂密山林,使得建筑能够拥抱自然,氛围清幽适逸。压力则是源于如何在建筑与环境之间找到平衡点,使二者能够和谐并存。
建筑的原始状态,是七八十年代的旧石灰厂房,因常年废弃,早已杂草遍布。本案业主亚当从英国留学归来,向往自由,热爱生活,在谈及民宿的改造理念时,与尺镀一拍即合,给予了设计团队充分的发挥空间。
在设计之中,使项目既拥有自身的特点,又能够做到不动声色地融合环境,这是一个设计师对项目的最大尊重。因此尺镀改造的策略是:尊重原场地环境,疏通原场地交通关系,使用原生态材料,营造质朴且具备品质感的空间体验。
庭院里矗立着一颗高大樟树,树干挺拔,枝叶葱茏,而一侧素白的帷幔微微飘动,空间被自然的隔开,通透之间,又不乏私密感。最少的设计与干预,在静谧的场地间,留下一方内向空间,让行走的旅者,在走向内心深处之时,停下来,感受内心最细腻的地方。
▼庭院中矗立着一棵樟树
建筑的一侧是一个斜角,其余部分则方正规整。考虑到整体设计美感与平衡感,设计团队在建筑斜角的对侧增设了一个与之平行的墙体作为入口,而新增入口与场地的景观设计、交通流线环环相扣。当旅人沿小径慢慢走近风吟谷,先是沿途的风景小扣心扉,而微斜的入口设计给予了空间一种神秘感,吸引着人进入。
改造后的风吟谷,与以往的模样已经分隔开来。简单的木色,素白的墙面,大片的落地窗在阳光下泛着温暖的色彩,使空间视觉更具穿透性与连贯性。
▼外观细部,采用素色墙面
身处室内,可观绿野阑珊,晨昏雾霭,听雨亲吻草地的轻响,让人的心慢慢静下来,凝视着远方,仿佛感受到了时间的温度,熨帖而温暖。这种开放又与院外相隔,保障了内部空间的私密性,同时也是对传统民居内向性审美的一种延续与激活。
开阔的空间与视野能为住宿者提供更舒适的空间感受。原建筑内部结构虽方正规整,但内部隔墙较多,将空间分割成若干个小空间,使得建筑少了开阔之感。基于这一点,设计团队将内部重复的隔墙去除,使空间的进深增加。
风吟谷的一楼客房便充分利用了空间进深,每一间的客房均拥有小小院落,使住宿者产生宿中宿的空间感受,增加了入住体验的层次性和丰富性,仿佛自己在风吟谷中拥有自己的一个安居之院。
▼一层客房设有院落,与建筑庭院相通
▼花园和客房之间的休息区
沿楼梯拾阶而上,是一个视野极佳的观景平台。在这里,可以触碰到树木葱郁的枝叶。这种低调、朴素的美,显示在地面与围栏的色彩搭配,协同休闲桌椅,一切浑然天成。或是好友聚谈,或是取景留念,这里是最佳的选择。
风吟谷共有8间客房,在命名之时也有着相应的思考与情怀,每一间房都是用心之作,便以”心”作部首来命名,有着诸如愈、悠、恋…等客房名称。都是心上之物,希望把最好的呈现给客人,也希望住宿者不吝惜物之情。
▼纯粹的欣赏山野风光的空间
从室外到室内,极简、质朴的设计风格一直延续其间。没有多余的装饰,空间中砖砌而成的坐台与层板,自然而协调。既有原作之物,自然亦有外采物件,它们有着各自的特性、功用与气质,但也共同拥有着淡雅从容的色彩,方能互相包容,于这一方之间互相陪伴,细数时光。为了呈现纯粹的山野美景,提供一个远离喧嚣、休憩心灵的平和之地,建筑立面被充分释放出来,远近景致尽收眼底。
▼细部,极简的风格体现在各个角落
美景与美食,是旅行之中必不可少的元素。除却住宿外,风吟谷也适配了餐饮空间。与客房大面积素白的墙面相比,餐厅则更注重朴质与生态之美,毕竟,乡野之味需要停留细品。原木与水泥等室外材料延伸进来,以玻璃幕墙围合,可以在品尝美味的同时,将自然风光尽收眼底。
由于近水的缘故,餐厅仿佛悬浮在水面上。透过窗,可以看到沿河两岸连山皆深碧一色。静水流深,心灵也随之开阔,将杂事繁物抛却,享受当下的愉悦时光。
空间设计满溢着“野”生趣味,与自然环境的相辅相成。在这里,人文与自然天衣无缝的衔接起来, 给予住宿者一种心灵上的释放与关怀。
项目名称:风吟谷 设计方:湖南尺镀美学装饰工程设计有限公司 项目设计-完成年份:2019-2020 主创:郭春蓉 设计团队:尺镀美学设计团队 项目地址:湖南省长沙市岳麓区莲花镇桐木村 建筑面积:600㎡ 摄影版权:尺镀美学
03.迪士尼睡眠研究所民宿
一栋农村民宅改造成精品民宿
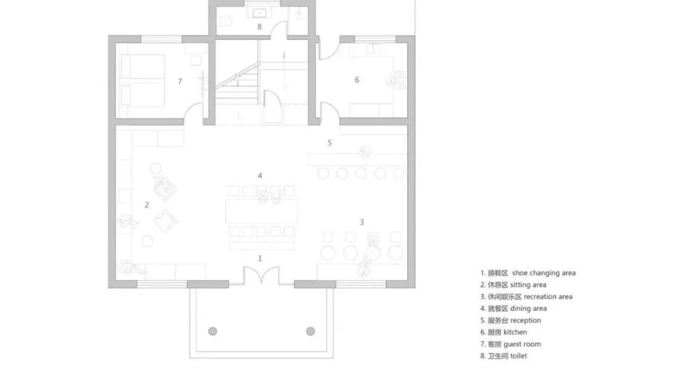
项目位于上海浦东迪士尼附近的一个村庄内,是睡眠研究所民宿的迪士尼店。业主委托多么工作室将一栋农村民宅改造成一个拥有10间客房的精品民宿。
▼室内空间概览 ©林山
我们认为每个来迪士尼的成年人心中都有一个童话梦,因此我们意图打造一个成年人的童话空间,温暖、纯粹、不同于外面的世界、可以让人暂时忘记自己身处何方,这也许就是成年人的童话世界。整个项目为三层建筑加两间平房和一个大院子构成,总建筑面积450㎡,原本作为民宅居住使用,一层为客厅厨房和一间卧室,二三层均为四室一厅两卫房型。我们改造时保留了一楼的原有布局,将二三层改为九间拥有独立卫生间的客房。
▼成年人的童话空间 ©林山
民宿一层为接待大厅,设计初期我们先让施工对现场进行拆旧,来恢复空间原始的面貌。当拆掉原本的石膏板吊顶露出建筑本身混凝土楼板的那一刻,我们确定顶部已不需要再做过多装饰了。裸露的清水混凝土顶棚和温暖的木质家具呈现出的是温和质朴的原始气息。入口的欢迎鞋架、休息区的展示架子以及餐区的吧台,挑选了半透的材质,当光线穿透过其间,空间随之变得更加轻盈。在鞋架和展示架上,设计师精心设计了组装节点,从画图、打板、生产,直到亲手组装,在帮助业主减少成本的同时也完成了一次有趣的设计实践。
二层和三层为客房区,我们针对不同的房间做了不同的设计,打破常规的格局。或是在空间里建造高低错落的体块,或是弯曲的顶面,或是坡顶,一方面是用于遮蔽水电经过的管线,同时也是为了将建筑感注入室内,把每个房间营造成一个小世界。每当进入不同的房间就好像进入不同的童话故事里,而故事的主角将会是入住的每一位客人。
▼三层带阳台的套房 ©林山
▼坡屋顶隐藏管线 ©林山
▼二层双卧室套房 ©林山
▼不同的房间营造不同的童话世界 ©林山
本项目在降低造价的基础上,对材料使用、施工手法进行了深入的研究,完成了一次低成本的建造实践。比起雕栏玉砌,我们更渴望营造一个素颜质朴的空间,让人卸下防备感,自然地在空间内体验和感受。成年人的童话世界,褪去了浮华的装饰,留下的是质朴的本真。
▼一层平面图 ©多么工作室
▼二层平面图 ©多么工作室
▼三层平面图 ©多么工作室
项目名称:睡眠研究所民宿,上海 设计方:多么工作室 主创及设计团队:王维、盛乐 建筑面积:450㎡ 摄影版权:林山


现在这个浮躁的世界,能细心整理一些东西发上来的越来越少了。要么就是敷衍的图片,要么就是枯燥的文字。之后就是AI生成的预制菜类的打包便捷快餐了。感谢楼主的分享,让我能在大智能无人化来临之前,看到同类发出的项目。有幸与您互动,缘分。