Minimalist design
至简的设计是什么样的?我想,要有纯白的色彩、清晰有力的线条、简洁的肌理,置身其中感到平静却又极富张力。
日本的 Shinichi Ogawa – Associates 建筑事务所就十分擅长创造这样的空间,创始人小川晋一善于通过改变空间的维度和比例,而使简约的空间更加灵动。
他们最新的 3 个作品就很好的诠释了事务所的设计风格,将素雅、纯粹的美感展露的淋漓尽致。
EMIL NAKIJIN
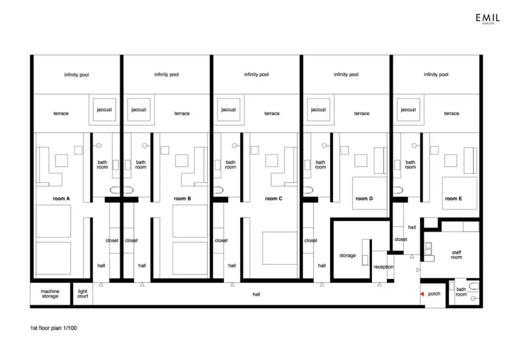
EMIL NAKIJIN 位于日本冲绳,是一个只拥有 5 间客房的极简豪华酒店,位于海拔 126m 的地方,可以俯瞰绝美的自然风格。
整个建筑是一个狭长的长方形体块,从外侧只能看到封闭的白色外墙。
到了晚上底部灯带亮起,氛围感十足。
内部总面积有 309㎡,被五等分成 5 个房间,酒店平面图▼
进入客房后,视觉就开阔起来,室内所有的饰面、家具都选用一致的色调,达到空间的一致性。
灯光也被隐去,藏于天花板、背景板以及茶几之中,营造出舒缓的氛围。
内部和外部用不锈钢推拉玻璃门连接,形成一个开放的连续空间,让室内可以享有充足的自然光线。
每间客房的露台都包含一个露天浴缸和一个无边泳池。
清晰有力的线条虽简单,却给人强烈的建筑美感。
两侧的墙壁如同画框,将大海和悬崖呈现在眼前,让人心旷神怡。
THE GARDEN 也是一家酒店,位于日本的山梨县,共有三层,面积为 921㎡。
简洁的白色外墙仅用发光的酒店名字作为装饰。
底部边缘的射灯也起到了一定的修饰作用。
酒店内有一个开放式的公共空间,通过大型的玻璃落地窗,可以清楚的欣赏到富士山的美景。
没有任何多余的软装,经典的黑色沙发,与白色的空间十分融洽。
休息大堂与走廊也用玻璃分隔,黑色的天花板让走廊更显深邃。
客房外的走廊则是纯净的黑白空间,光影的效果十分动人。
房间内依旧是简约的白色布局,各个角落都可以欣赏到山景。
向外延伸的屋檐避免了阳光的直射,保障了良好的居住体验。
极简的布局与窗外的富士山相映成趣。
卫生间的镜子长度覆盖了整个纵向空间,灯光的加持让空间更有连贯性。
方形的浴缸设在最外侧,打开玻璃门仿佛就身处室外,与自然景观零距离接触。
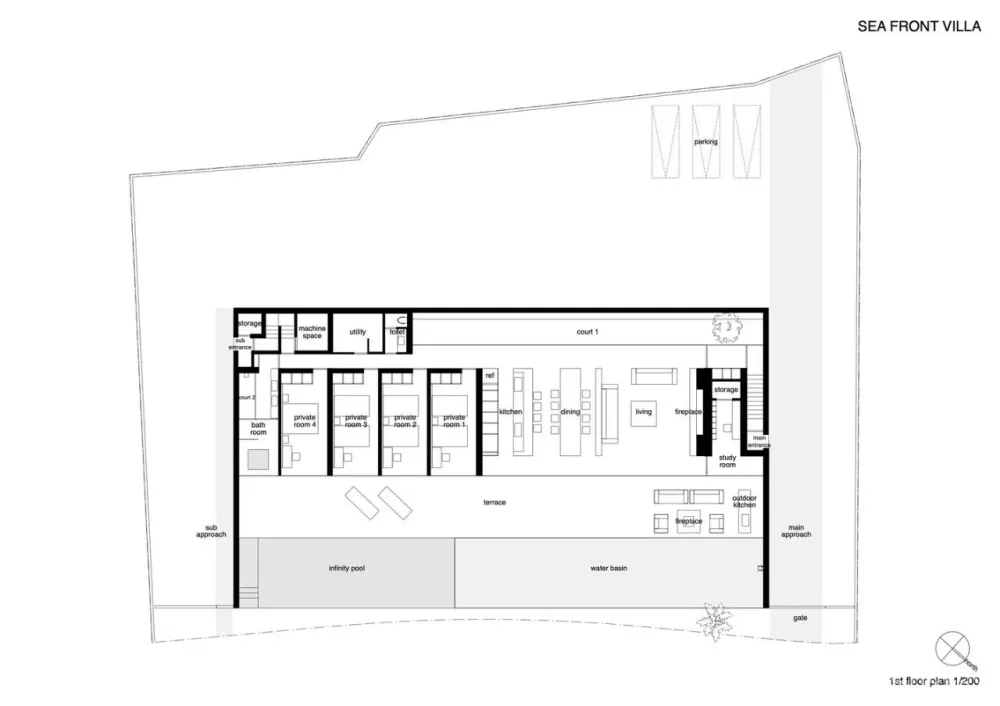
SEA FRONT VILLA
SEA FRONT VILLA 是一幢单层海滨别墅,面积为 258㎡。
起居室,餐厅,厨房,卧室,浴室和书房,每个房间都拥有落地窗,无缝连接露台、泳池以及开阔的海景。
由于建筑和大海之间还有一条道路,所以建筑师将整体抬高了 2.5m,确保了住户的隐私。
屋内几乎都是间接照明,创造出纯净而柔和的氛围。
白色的家具与建筑融为一体,浅木色的地板也给人质朴、简约的感觉。
屋檐也起到了遮挡阳光的作用。
泳池横贯户外空间,渲染出极致的空间感。
水流通过墙面的凹糟流出,晶莹的弧线打破了直线的规整,更显灵动。
水槽的造型也是一种对路易斯·巴拉甘的致敬。

