格外注重空间的细节及品质,在材质的选择上,设计师使用大面积的雅士白地坪铺面,配以白色亮面烤漆以及米白色壁布呈现出纯净安宁之感。
李玮珉设计的作品从来没有相同的形式却有相同的语法和修辞,这一切虽然都带有强烈的“李玮珉” 式符号与表达方式,但落实到每一个具体的作品上时,才能感受到他在用一种低调的方式去创造不一样的生活方式
李玮珉在设计之初,便深刻洞察这样一群好人的真正需求,他明白,塔尖人群所追求的空间设计,不单纯是风格、奢侈品牌之类浮于表面的问题,大家谈及更多的话题却是功能空间不经意呈现的惊喜与生活方式的延续。
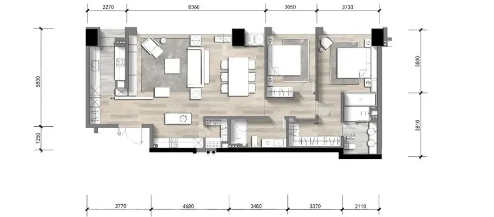
02:B-158㎡两室两厅两卫
地理位置优越,所有主要空间均临建筑幕墙,可远眺户外风光。
入户映入眼帘的是极具细节变化的金属屏风,做工精细考究,厨房也巧妙的设计在移门背后。
正如李玮珉所说:“好的空间甚至让人感觉不到设计的存在”。
这种源于内心的满足与自信,也是居住者最本真的样子。
空间设计大师李玮珉,深悟去繁存精是永恒的经典,空间的整体色调简约内敛。
大胆运用名贵石材与金属包边的结合,时尚沉稳亦历久弥新;打破传统隔断、柜体等设计,于不经意间发现生活的别有洞天;将门与空间造型、情感互动结合,随意之间却颇具匠心体现……没有任何多余的一笔,每一个欢喜都来得刚刚好
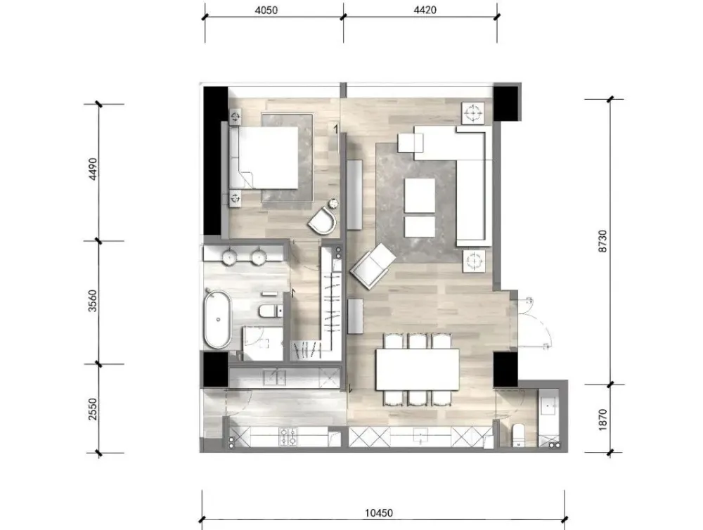
03:C-155㎡两室两厅两卫
整体风格仍是以LMWA所坚持的极简,低调奢华,但同时进一步升华为各具鲜明个性的空间。
步入户内,阳光透过定制的特殊金属网屏风,漫漫洒落整个餐厅同时半隐半透着客厅空间。
同时,奥斯卡绿石材作为主材从客厅延续至餐厅、卧室,相映成趣,使得整个空间内处处掩映着温润的玉石色,身心愉悦!
李玮珉认为,中国华商·交子公馆,是他见过的,图纸还原度最高的项目之一。
而在这样一个复杂的实现过程中,却是既不过多加入开发商的主观意志,给居住者造成一种被设计的压迫感和侵略感,也不偷工减料,执着于对每一道工序的严格把关与挑战工艺的极限。
从入口玄关到客厅,均以深灰色水磨石以及黑色木饰面作为主要材质,深灰色的给人以成熟稳重的心理感受,鲜明的空间划分在视野聚焦处相融。
客厅石材背景墙打破重组,镶嵌金属壁炉以及穿透的开孔架,以保证客厅的独立性与完整性。
组合形式茶几更为灵动可变,并以艺术家许峰的雕塑作品《守望者》作为点缀。
中国华商·交子公馆,空间设计不在于刻意装饰,空间规划以人为本,追求空间舒适度,符合现代精英人群的高级品味,最大化还原设计师李玮珉以国际化眼光与生活美学完美融合的标杆作品
项目名称:成都–中国华商金融中心
硬装单位:李玮珉建筑师事务所 上海越界建筑设计咨询有限公司
软装单位:深圳雯华设计顾问有限公司
设计参与:颜冲、李潇雅、况仕祺
软装设计:谈永琴、薛静、颜慧、封林彤、孙芳、赵建稳
施工团队:李智(上海市建筑装饰工程集团有限公司)
设计负责:王诗雯 设计参与:卢婕婷、周东娜、方素玲、许艺华
摄影团队:岑修賢、陈彦铭、张骑麟

