如今的生活让我们快速忘却过去的韵味,还记得旧时小卖部那股独有的柴米油盐味吗?老宅有它独特的味道,即使现代人住在高层住宅,却与其他人共用电梯,享受着同样的小区立面。只要经济足够支撑,许多人都不愿意卖掉曾经生活过的老宅,它仍是那个让人魂牵梦萦的地方。
该老宅位于太行山深处,改造前,这个院子几乎陷入一片混乱之中。院中的主要建筑物包括一处秘密地窖和三座房舍,它们分别建于20世纪之初,之中和之末。院子的女主人曾经与祖父母生活在一起,在这里度过了童年。
改造前房舍之间的庭院空地,被用作菜园。角落里都种着蔬菜,棚架上种植着藤类瓜果。初次到访虽面貌破败,但满院子的绿植令人眼前一亮。
庭院旧墙朝向狭窄的胡同
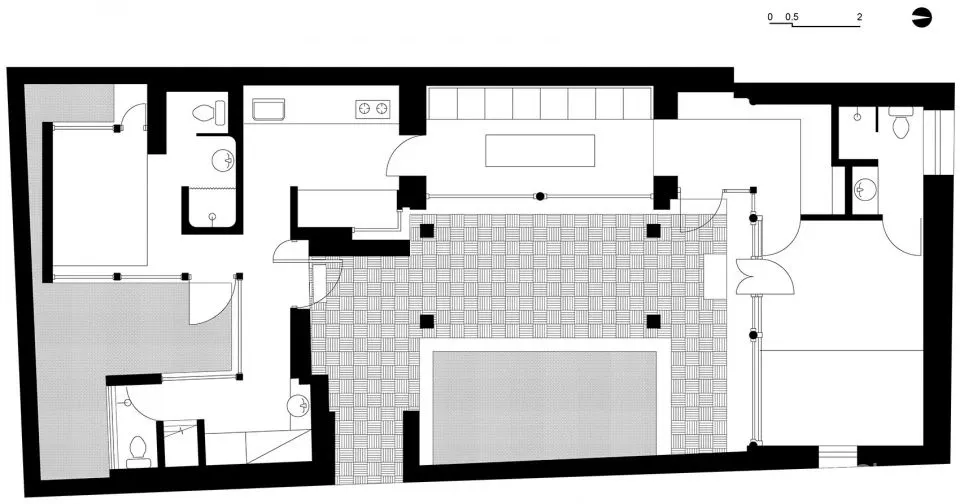
进入院子之前需要穿过一条不到2米宽的胡同。院子自身宽9米长20米。南北两进院子里挤满了大大小小的房舍和构筑物。较大的北院西厢房进深只有2米4。院子最小空间不到1米。在院子内流动,仿佛穿行在一系列互不相连的过道之中。
虽然略显破败,但因其所携带过去印记,被主人视若珍宝。因此,改造尽量保持已有建筑的面貌,颜色,材料特征和空间形态,使主人在新的生活中能重拾记忆。
回到“故园”,这是设计师的出发点。满园的植物,随着四季变换,这个小生态环境带来着“五味”体验。
餐厅玻璃反射着庭院的景象
设计中三座房舍及地窖被保留。新建建筑插入其中,扮演连接原有建筑的角色,并且增大使用面积。原先独立分离的保留建筑,变成了相互联系的整体。
设计把卧室布置在院子与公共生活干扰小的两个尽端,中间与院子紧密相连的大型“过道”留给公共空间。改造就是一个重新连接的过程。
最古老的百年地窖也被搭设了一个新的通道,通过厨房背后沙发下的暗门,直通地下。这个被荒废了几十年的地窖再次被利用起来,可以当作酒窖,孩子们的密室或者食品储存小屋。
带有砖供和角落照明的地窖
以“过道”联系不同的生活场景
“过道”里的餐厅占据了2米4宽的原西厢房。固定沙发在靠西的墙体。一整面镜子铺满沙发靠背与上方搁架之间的墙面。
通过镜子反映空间,视线上造成极宽敞的错觉,2米4变成了18米。朝向院子的靠东立面用落地玻璃将其完全敞开,餐厅左右两侧都极大放宽了过道感受。
餐厅和镜子上反射的庭院景象造景
从种满植物的庭院望向餐厅
从剖面上看,南北向长条状的院子仿佛以“过道”为中心相对称。地面层次上东西边界更高,中间更低。利用被拆除废置的旧木构当作柱子,将3cm的方钢焊接成一个小型的双层垳架。
由于藤蔓与叶片充满两层方钢之间,可以隐蔽细小的结构。而空悬的瓜果和叶片以及内陷的地面塑形了一个似被包裹的秘密花园。
新建的“过道”连接部被厨房,小客厅以及公共走廊占据。如同整个院子所带来的“混乱”气息,设计希望更暧昧的对待新与旧的关系。新建的墙体,屋顶往往在可以对应的部分被切开。暴露出背后的旧结构和构建。
他们的材质,色泽和新建部分光滑,整齐的界面交错呈现。有些部分打开的孔洞背后,隐藏的空间被揭露。那些阴翳的角落展示着独特的魅力。新旧体块呈现交错局面新中有旧,旧中有新。
入口处,过道分隔出不同的庭院
新卧室延续老宅原本的无序感
天花板上的开口揭示出原本隐藏的结构
尽端的几间卧室依然呈现丰富的无序感,依靠其所占据的空间自身特征,产生不同的体验。
照明系统的辅助结构由拆除的旧门扇制成
北房是女主曾经爷爷奶奶的家。改造维持尺度,材料,形态上的原貌,通过增设的门窗以及帘幕系统来调节室内的保温性能。利用院中拆除的旧门扇当作照明系统的辅助结构。
位于两个小院子之间的卧室
南房卧室和洗手间通过既有的庭院石墙分隔
南房被放置在两个小院子之间,浴室中的天光,几个界面完全打开。人们如同身处“花园”。
阁楼东面的窗户朝向胡同
东侧原有柴房内,通过植入钢结构把屋面托起来,房子被抬高,小阁楼里可容纳第三间卧室。因为屋面高度超出原来院墙,小阁楼可以向墙外开窗采光通风。探出头的阁楼成为院子对外新的形象。夜幕降临时,阁楼内的灯光也为胡同提供了照明。
在“花园”与“故园”之间拿捏,在过道之家中,设计师面临的是一个极丰富的语境。他们试图在其中建立某种联系,但同时最终发现,对这种纷乱和非理性的拥抱也能带来独特感受。
阁楼西面的窗户朝向庭院
通过增设过道,强化易被忽略的过道作用。使得老宅重拾生气,老宅各个空间都通过它们联系起来也分隔开来。同时,新旧进行合理性地去留,我们至少可以体验到两种生活情趣。加之,设计师将原本混乱感基调保留,这并不会让我们觉得这是一个全新的住宅而已。
项目名称:过道之家 – 大有19 设计方:察社办公室 项目设计 – 完成年份:2019 – 2020 主创及设计团队:成直,宋瑞铭 项目地址:北京门头沟区军响乡19号 建筑面积:117平方米 摄影版权:成直,朱雨蒙 结构顾问:高雪梅 / 灯光顾问:闵月波 客户:大有 19 – 刘菲 品牌:东方静然建筑装饰材料有限公司–混凝土磨石地坪 东方港国际木业(北京)有限公司–俄罗斯伊利姆松木胶合板 北京光森林照明科技有限公司 – 文高照明灯具

