SP住宅位于Salir do Porto小村庄的市区,距离迷人的Sao Martinho do Porto海湾2公里。它位于城市区域和南部果园之间的边缘。
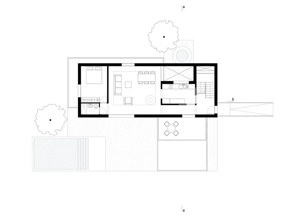
该项目的场地分布在一个坡地上,高差为3米。我们的主要意图是保持地形不变,通过将房子分为两层,从而分为四个体量(一个在上层,三个在下层)来解决这个问题。根据较低体量的形状和位置,两个外部生活区包括南侧的游泳池和北侧的一个预先存在的工匠井。


为了保持坡度,需要有一个独特的入口,通过一座桥解决了这个问题,这座桥提供了从街道直接通往上层的通道。这是房子的主要楼层,客厅和厨房通过露台与景观相连。

在低层,卧室、第二客厅和车库在室内外生活空间之间创造了一种亲密的关系。这种关系在房子的另外两个区域得到强调,两个天顶灯照亮了主楼梯和北天井。




















位置:葡萄牙 年份:2018 摄影师:Gonçalo Duarte Pacheco
版权声明:本文内容由用户自行发布上传或投稿由设计芝士代为发布,版权归原作者所有,设计芝士不拥有其著作权,亦不承担相应法律责任。如果您发现本站中有涉嫌抄袭或侵权的内容,请点此提交工单进行举报,一经查实,本站将立刻删除涉嫌侵权内容。


谢谢分享