EKH Childrens Hospital
常规的医院环境对于每一个成年人来说几乎都是可怕的存在,更别提孩子们了,冷冰冰的灯光、毫无生气的色调,加上挥散不去的消毒水味,每次去医院都感觉无比心累。
近年来,世界各地都更加关注儿童医院的设计,让医院不仅可以治疗孩子们的生理疾病,还能更多的关照到孩子们的心里需求。
泰国最近一家全新的“儿童友好型”医院——EKH 儿童医院,由泰国设计事务所 IF-Integrated Field 设计,将“游乐场”的概念注入到设计中,改变了人们对医院的刻板印象。
入口处的巨大螺旋滑梯,让孩子们一进来就可以放松下心情,分散了看病的恐惧 。
一楼设有游泳池,外立面开有半圆形的窗户,构成了弧线型的梦幻空间。
拱形窗户在水中形成梦幻的倒影。云朵装饰在天蓝色的背景中,让人倍感轻松。
二楼还有专门的休息室,透过这里可以看到泳池内的情况。
对于生病的孩子来说,富有趣味的内饰才是关键,拱形门框让看病成为一场趣味探险,消除了孩子与医生间的隔阂。
医院的一楼和二楼都有儿童游戏区域,原本对于家长和孩子来说十分难熬的候诊时间,便可以在这里悠闲的度过。
温暖的木材、夸张的巨大灯光以及墙上的绘画营造出童话般的场所。
座位的摆放也没有规律可言,更加符合孩子们跳脱的天性。
当然医院内也有专门的等候空间,不同于以往医院中冷冰冰的不锈钢座椅,柔软的触感、弯曲的造型都十分人性化。
高度合适的室内配件为孩子们创造了更加自如、便捷的活动空间。
用餐空间的墙壁装点着圆形窗户,再搭配绿色的座位,洋溢着勃勃生机。
走廊采用了间接照明,而不是往常见到的刺眼的荧光灯,有助于缓解儿童患者的紧张情绪。
除了公共空间颇具趣味,EKH 儿童医院的病房也是不按常理出牌。
房间用动物的名称命名,以鲸鱼、乌龟、狮子和兔子为主题的房间,都有与之对应的灯具装饰在天花板上,到了晚上,还可以起到夜灯的作用。
墙壁以及电视背景墙都安装了灯带,营造出柔和的氛围。
粉红色、蓝色、黄色构成了孩子们的病房,比如鲸鱼就是象征着大海的蓝色。柔和的色调也给了孩子们想象的空间。
医院的卫生间也被设计成不同的颜色,水槽和小便池设置在拱形的墙面中。
设施根据孩子们的身高设计,以方便不同年龄的孩子使用。
从孩子的角度出发,将游乐场设计从各个方面纳入规划,儿童医院就成为了有趣而温暖的地方。
△标准病房A/C平面图
△标准病房B/D平面图
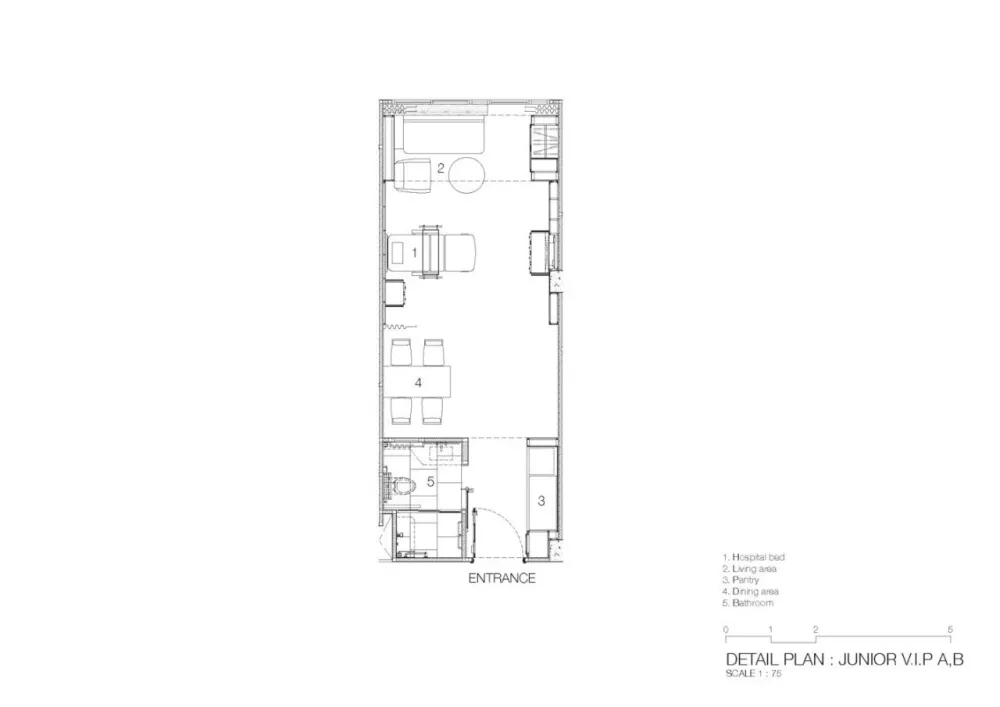
△初级VIP病房A/B平面图
△VIP病房A/C平面图
△VIP病房B/D平面图


设计有创意,这样小朋友不会害怕看医生了