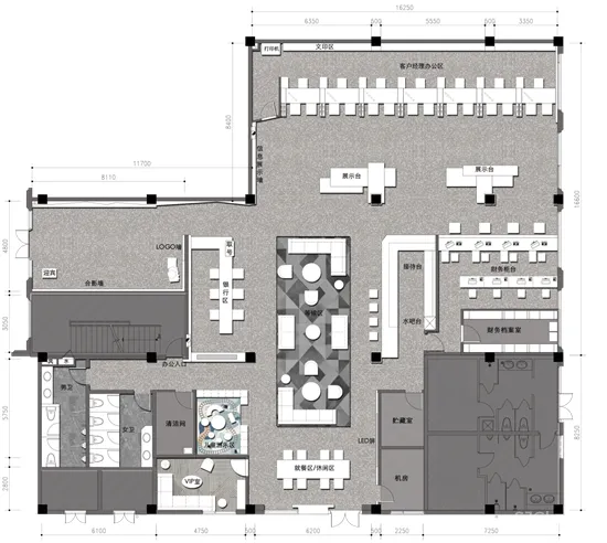
项目名称| 无锡万科信成道签约中心
项目面积| 465平方米
设计公司| 上海域正装饰设计有限公司
软装设计团队| 赵艳 高春华 白雪芳
硬装设计团队| 王政 肖俊 王凯华 刘颂 顾超
竣工时间| 2020年6月20日
| 灰柚木饰面、黑钛拉丝不锈钢、浅灰水磨石、玉兰白人造石、白色哑光烤漆板
摄影团队| 莱普斯摄影空间
项目名称| 无锡万科信成道签约中心
项目面积| 465平方米
设计公司| 上海域正装饰设计有限公司
软装设计团队| 赵艳 高春华 白雪芳
硬装设计团队| 王政 肖俊 王凯华 刘颂 顾超
竣工时间| 2020年6月20日
| 灰柚木饰面、黑钛拉丝不锈钢、浅灰水磨石、玉兰白人造石、白色哑光烤漆板
摄影团队| 莱普斯摄影空间
之前
