Hankook Technoplex
最近,Foster Partners 在韩国完工了一个全新的总部大楼项目——
韩泰科技大楼,并投入使用。
韩泰是韩国最大、世界第 7 大的轮胎制造公司,这次 Foster partners 为它设计了位于首尔的总部大楼,外观看上去就像是一个透明的玻璃盒子 ▼
负责该项目的是伊万·琼斯(Iwan Jones),他已经在 Foster Partners 工作了 30 年,是专门负责韩泰与 McLaren Technology Group 等公司项目的设计师 ▼
伊万·琼斯(Iwan Jones)
这栋大楼反映了品牌国际化的发展方向,也体现了公司在工程方面的精湛技术,创造了平等、开放、灵活的办公空间 ▼
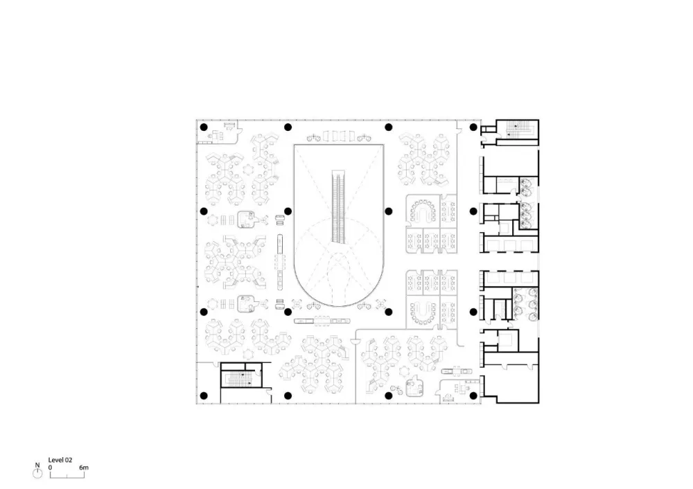
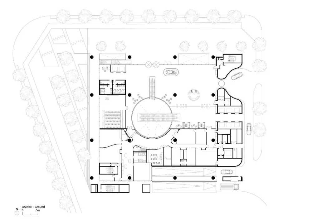
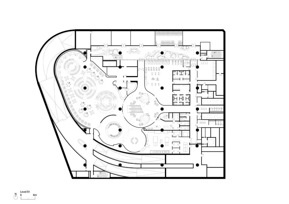
这栋大楼共有 10 层,包括了办公室、辅助设施以及一个附有 175 个座位的礼堂商务中心,整个室内空间围绕着中庭盘旋而上,形成了不同层高的空间,贯穿整栋建筑 ▼
下面让我们从建筑外观到室内,来看看这栋楼的设计是怎样的。
大楼的室内空间以明亮的白色和氛围为主,在进入中庭之前的楼梯处,会看到一个环形的装置 ▼
这个独特的艺术装置叫做「数码叶序」,由 Jason Bruges Studio 专门为这栋楼大所设计,当你乘坐电梯前往接待处的时候,会先沉浸在这个空间艺术之中 ▼
这个装置表面采用了不同色彩的反光材料,当阳光从中庭的玻璃天井洒在上面之后,你可以体验到光影颜色的变化 ▼
仔细看接待台背后的墙面,这是由同一个事务所设计的 3 个媒体艺术装置,叫做「活力脚步」,这些细小的光源会不断移动,让周边的空间氛围更加活泼 ▼
建筑内不同功能的空间,都通过中庭相互联系了起来 ▼
刚才也看到了,办公楼是围绕着中庭来进行空间的设置,在中庭的上方是一处圆形的玻璃天井 ▼
整个室内的空间得益于玻璃里面和玻璃天井,显得十分明亮 ▼
相信你也注意到了每层楼的吊顶上布满了圆形的灯,这应该是响应了轮胎公司的品牌,才这样设计的 ▼
这样的设计感觉挺「魔性」的,到底好不好看,就见仁见智了 ▼
但能肯定的是,这些灯具上的环形灯带,能为室内空间提供柔和而舒适的照明效果 ▼
在中庭的两侧则是一些被树木划分的零散分布的休息空间,这些空间可以供非正式会面和短休息使用 ▼
整个空间采用了温暖的材料,再加上自然光的照明,让整个空间舒适而积极 ▼
办公区域是整栋大楼最主要的空间,主要采用了灵活的开放式布局。在下面这个开放的办公区中,还能看到独特的有机形状的办公桌,可以方便不同团队之间的协作 ▼
这里有一个细节,在工作区域的外立面上可以看到百叶更加密集,这些百叶可以通过智能人工照明系统调节,对光照形成更加严格的控制 ▼
建筑外立面的设计,是为了优化对自然光的利用,可以看到立面上的玻璃百叶,以不同的密度包裹着建筑,以控制室内光照的强弱 ▼
玻璃立面的百叶细节 ▼
光影的变化是室内空间非常重要的特征之一,办公区域在这样的环境下显得更加灵活明亮 ▼
除此之外,也有封闭式的会议空间,可以供正式的会议使用,巨大的圆形灯光在这里散发出柔和的灯光 ▼
在一些地方还能看到矮矮胖胖的圆柱形墙面,灯光同样柔和而舒适 ▼
专门为会议空间和礼堂设计的座椅,绿、黄两色让空间更加充满生机 ▼
在如此开放而宽阔的空间中,随处都成为了员工们之间的社交场所,方便交流沟通,也让办公环境显得更加平等,打破了传统的层级壁垒 ▼
员工食堂同样采用了圆环的设计,吊顶上的采用了木质的环形灯 ▼
另外也有一个屋顶花园和景观露台,可以看到不受遮拦的城市风光,为公司活动提供了一个独一无二的场所 ▼
这栋办公大楼通过丰富的体块,形成了不同楼层间的视觉联系,让在这里办公的员工们除了能享受到丰沛的自然光照外,还能更方便的相互交流,让工作环境不再沉闷。

