悬浮山岩在阳光的沐浴下
在这个宇宙的中心,高学历高技术高追求的科技精英们正在用一行行的代码影响着时代的发展,作为设计师我们无法改变996,但是我们可以创造一个酷炫的办公空间,让办公回归酷的属性。因此我们将科幻造园植入办公空间,营造一个前所未见的异次元办公空间,在这个空间所有的功能都与造景结合,给使用者一个场景感极强的沉浸式科幻办公体验。
我们将这个场景设定为关于平行时空的穿越故事以此来致敬汲取灵感的《2001:太空漫游》,以走入异次元空间的每一帧画面串连每一个重要的空间:
▼视频 ©DAGA大观建筑
2020年,一个发亮的盒子穿越平行宇宙从夜空降临,消失在北京市海淀区西二旗大街39号楼…
他披着普通建筑的外衣,无意中打开他的大门,穿过微缩的黑洞隧道,就闯入了异次元空间。在这里空间似乎是无限的,一切可能会发生的事情必然会发生,就此我们开始一场异次元空间之旅。
隧道之门打开,失落文明的遗迹中露出异次元之眼。你在注视着他,他也在注视着你,无限的延长,不断的掉落,穿越宇宙的中央站。
1:4:9 的精准比例,可想而知在地球之外,早就有外星智慧生命,这面尘封已久的孤寂山谷和钻石切割的黄金穿梭梯坚不可摧,创造者十分强大。
▼站在平行宇宙的中心点
真空是我们的采光中庭,中庭的每一个楼层都可以注视孤寂山谷和黄金穿梭梯,而黄金穿梭梯在真空之中担当着运输的工作,可以到达你想去的任何地方。
正式入驻此空间站,异次元接待的工作人员将带给你一个前所未有的服务感受及体验。正如智慧大脑的储藏库一般,里面内置的内存条在考量人类健康问题与空间环境的关系并更具有针对性调整适宜人类的环境系统。
▼真空之外注视异次元接待站
异次元空间里神奇的房间,不断上演着关于穿越文明会议,你可以坐在原地等待什么事发生,也可以打开舱门,走到外面去向周围的现实挑战。
▼秘密的会议在不断地上演
异次元空间的能量补给中枢。圆的造型模拟异次元之眼,在无形中给予内置储存能量。
▼异次元空间水吧补给站
在这个异次元空间的隐蔽的角落,散布着关于穿越文明秘密的信息,破译这些信息就有可能发现异次元的秘密。
▼眼前的一切都有可能是虚幻
▼异次元空间的定居者也需要发朋友圈
脱离地心引力而漂浮存在的异次元空间悬浮山岩使人强烈的感觉到周围的景色会突然消失。
▼电梯厅景观反射与镜像
▼悬浮山岩在阳光的沐浴下
如何定义自己以及他人便为此旅程的一大设计要素,我们把空间的使用者定义为未知时空的漫步者,他们既是使用者又是探索者,极尽可能提供能令他们消化一切障碍和不良情绪的环境,让办公回归于酷的属性,每天的工作都成为一项新发现。
▼建筑剖面图 ©DAGA大观建筑
▼特殊要素物件图 ©DAGA大观建筑
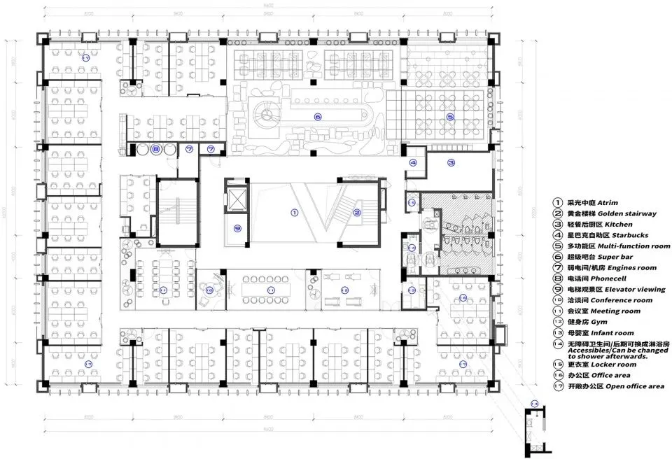
▼一层平面图 ©DAGA大观建筑
▼二三层平面图 ©DAGA大观建筑
▼四层平面图 ©DAGA大观建筑
项目名称:金茂资本 上地J SPACE 设计公司:北京大观建筑设计 项目地址:北京市海淀区西二旗大街39号 设计公司:DAGA Architects大观建筑设计 设计团队:任晓伟、许云飞、尹爱黎、余小雨、张志婷、曾怡君 项目面积:4427㎡ 项目摄影:刘羽、闫瑞琪


?
挺有想法的 感觉不错 继续加油 期待