项目名称 | 武汉「国采公寓T2」
设计执行 | 刘飞、路明、王蕾
创新速度与产业聚集决定了城市更新的可能。
是产城融合综合体——国采中心的重要组成部分,项目位于最具活力的武汉光谷。
作为一个以产城融合超级综合体为规划逻辑的项目,国采中心采用了功能混合、生态绿色、多元开放构建了设计方法,也确定了这里空间的韧性和居民生活的趋势。
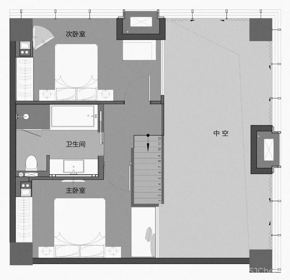
公寓共三种户型,均为LOFT 建筑结构。
设计团队的任务是创造一个舒适的开放空间,有足够的面积完成对生活的收纳、获得自然光及满足对休憩与休闲的功能需要。
据空间特点,设计团队设想和求证住客对小尺度空间面临的心理窘迫,三种户型的设计考虑了不同肖像住户的需求,以耐用的复合材料、可移动的元素和精确的收纳布局,确保住客即便是短暂的逗留,亦有舒服的空间和功能。
为了避免打破LOFT公寓所拥有的视觉流畅和宽阔的布局,设计团队对各户型的交通流线设置减少纯粹的通道面积,增加了空间流动性,模糊传统意义上的分区边界。又于限制空间的生活收纳的需要,克制了粗暴的大面积墙体柜的使用,强调按需储存、随手储存和小型分布式储物空间。
鉴于仅4.3m的有限的层高,需避免过多的依赖顶部照明,设计采用了吊灯、壁灯、落地灯与天花的线形漫摄灯槽,同期满足了立体的照明和按需关启的功能。
公寓内部宽敞、视野开阔、布局灵活。设计表达了对建筑空间的理解,也与感性的人居环境实现了完美融合。
ADF后象设计师事务所
ADF后象设计师事务所
与合伙人于2006年在武汉创立。经过多年的发展,公司聚集了大批优秀的专业设计师,为不同项目提供最具国际视野和可持续发展的综合创意设计方案。
ADF致力于对商业形态与设计价值的交融理解和解构重塑,致力于与客户密切合作,为每个项目寻求高效、创新、可持续发展的全面解决方案,激励运营效率,促进商业开发策略的成功并传承文脉。
植根于可持续发展,ADF的合伙人机制和创意设计平台发挥着重要的功能,使得我们能以多维角度研判和开展工作。
ADF拥有室内设计、商业策划、规划与建筑、陈设及产品设计、营造及商业餐饮系统「 全面设计 」机构等专业板块,形成一个学院式的工作环境,这些不同的板块使我们能应对不同的项目,而紧密的配合度使得ADF成为一家尤其擅长解决专业性强、学科交叉复杂项目的综合创意设计服务商。
代表作 | Select Cases
BIGHOUSE当代艺术中心

