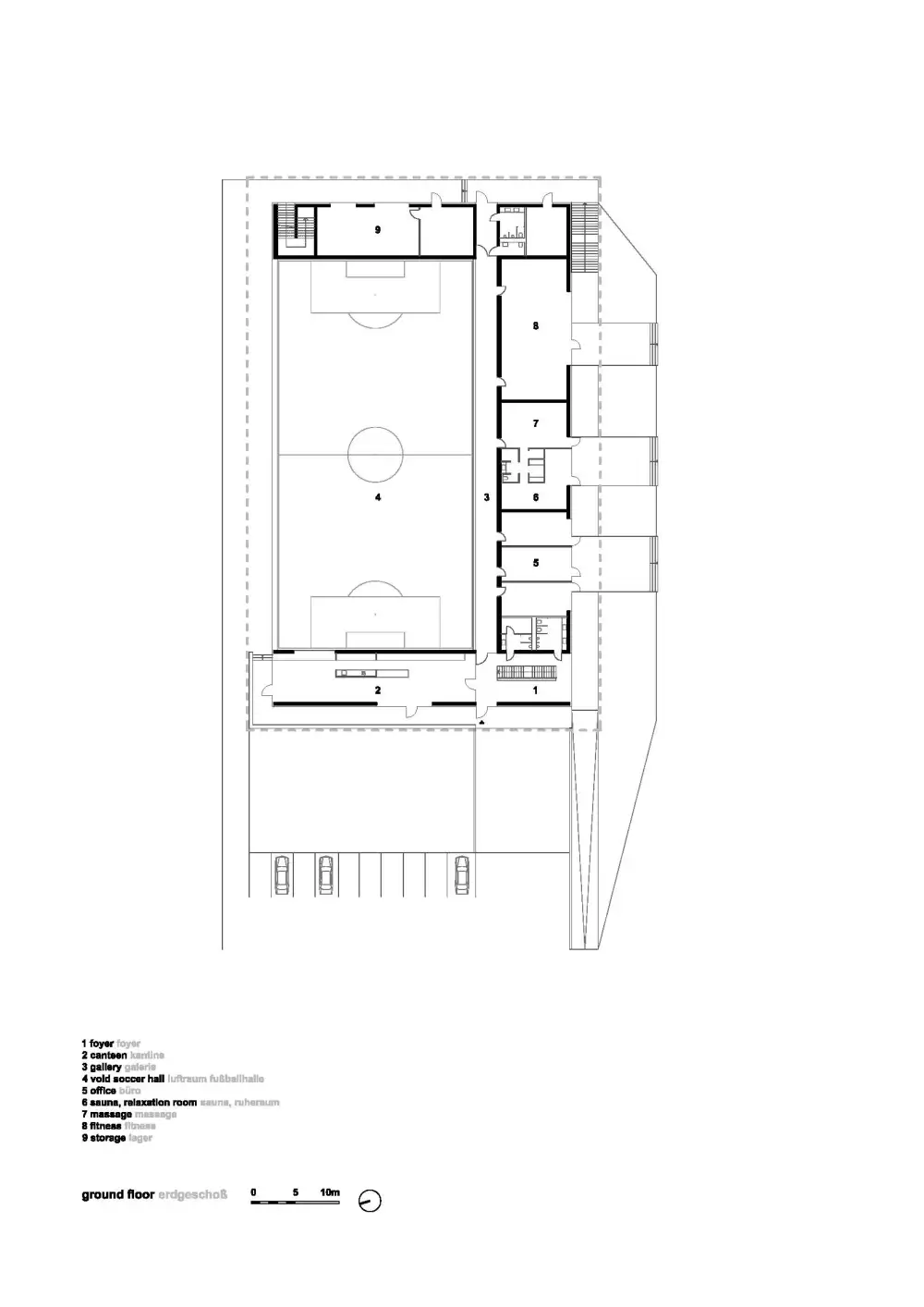
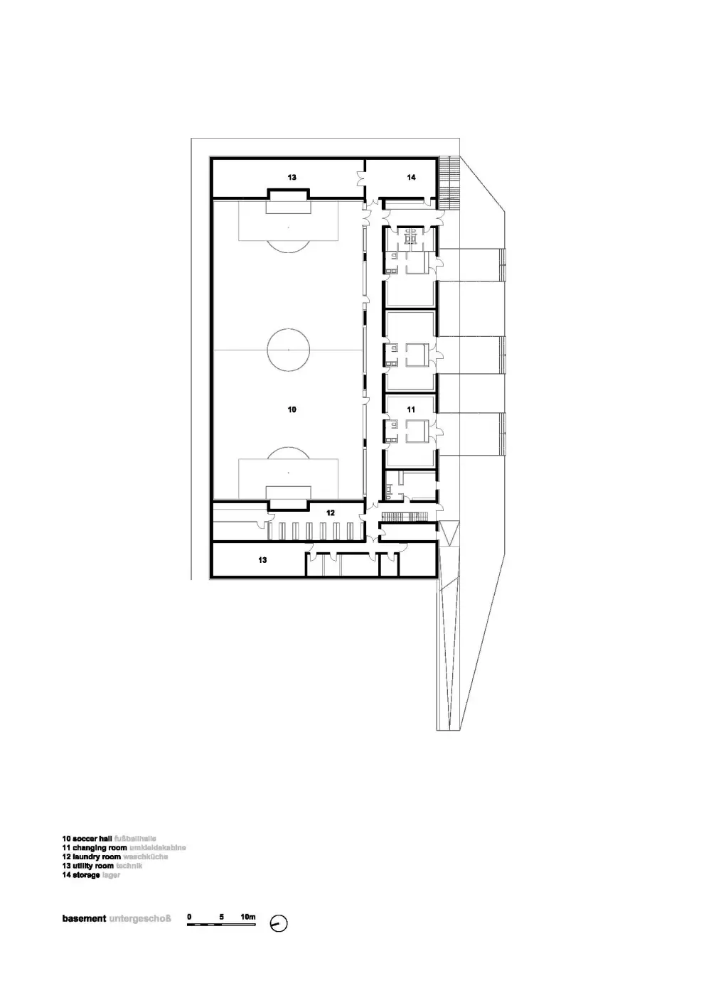
奥地利维也纳最传统的足球俱乐部之一-奥地利维也纳少年队的学院训练场,紧邻“弗兰兹·霍尔体育场”,包括一个训练馆和三个草皮球场,建筑预算非常紧张,施工时间限制在6个月内,移交日期是严格要求的,以便获得完成。奥地利足球联盟的执照。维也纳建筑条例规定最高建筑高度为4.5米,因此训练大厅内要求的7,0米高度造成了一个不可避免的后果:整个建筑物必须降低到地面以下一半以下。为了帮助长期再融资建设预算,足球广告牌的原则已经被改变了:一个有横梁和护栏高度的大屋顶。2.0米是主要的设计元素。赞助商可以在广受欢迎的Laaerbergstra上宣传并展示他们对初级团队的支持。屋顶悬挑向四面延伸几米,为入口和梯田形成了一个宽敞的、耐天气的周边。在东侧,存储空间上的紧凑屋顶建筑被用作屋顶露台,教练和游客可以清楚地看到加热的人工场地。训练厅是建筑物的中心,享有无眩光的北光。另一边是非常紧凑和高效的布局-自助餐厅、办公室、健身房、按摩和储藏室。底层的通道就像通向沉陷的运动场的走廊。办公室和健身房所需的紧急逃生通道是在一系列的露台上安排的。运动用人工草地地板和桦木胶合板防撞墙提供理想的氛围和一个集中训练的平台,没有分心。低温墙加热比传统的空气加热。人工草皮被输送到循环区,而循环区作为暖化前的缓冲地带。所有变化的地区都有自然日光和直接进入外界,即使它们位于地下室。这是由于宽坡道加倍作为运载工具和理想的冲刺训练区。从2.500平方米屋顶表面雨水收集在12万大。这是可能的,因为广泛的坡道,双倍作为一种运载工具和理想的冲刺训练区。从2.500平方米屋顶表面雨水收集在12万大。升水箱和灌溉水。整个建筑都是由地区暖气供应的。














Firm Franz Architekten
Type Hospitality + Sport › Stadium
YEAR 2010
keywordsarchitecture, architecture news, interiors, interior design, portfolio, spec, brands, marketplace, products fk austria wien - soccer training academy, sportshall
关键词建筑,建筑新闻,内饰,室内设计,组合,规格,品牌,市场,产品FK奥地利Wien-足球训练学院,体育
一项体育挑战-奥地利维也纳最传统的足球俱乐部之一-奥地利维也纳少年队的学院训练场。
版权声明:本文内容由用户自行发布上传或投稿由设计芝士代为发布,版权归原作者所有,设计芝士不拥有其著作权,亦不承担相应法律责任。如果您发现本站中有涉嫌抄袭或侵权的内容,请点此提交工单进行举报,一经查实,本站将立刻删除涉嫌侵权内容。

